Maison 167m² à bournezeau

— Bournezeau 85480 —
345 000 €
168 m² / 3 326 m²
6 pièces
jardinascenseur

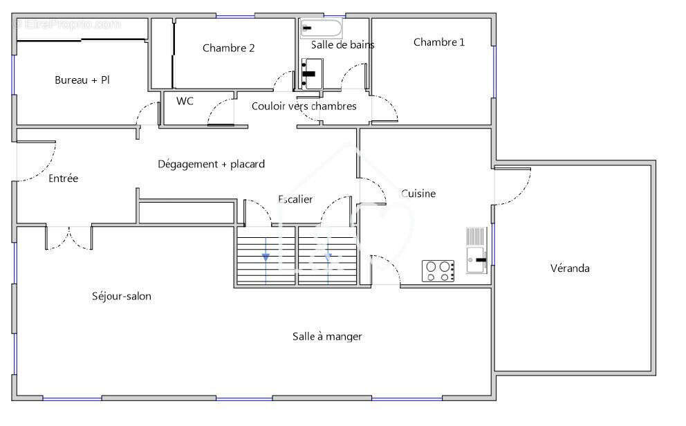
Maison familiale de 167 m² habitables sur terrain constructible de 3326 m² sans vis à vis - 5 chambres - Grand garage indépendant - Piscine - IDEAL POUR PROJET PROFESSIONNEL OU FAMILIAL. A seulement 14 minutes de La Roche-sur-Yon, proche des autoroutes et à 100 mètres des arrêts de bus et de cars scolaires ! Vous rêvez d'espace, de lumière et de possibilités ? Cette maison est bien plus qu'un simple lieu de vie : c'est un véritable projet de vie, alliant confort et potentiel évolutif ! Une maison pensée pour la famille et bien plus encore ! -Surface habitable : 167 m² -Grande pièce de vie de 52 m², baignée de lumière -Cuisine aménagée et équipée de 20 m², -5 chambres, idéales pour une grande famille, un habitat partagé ou un projet de chambres d'hôtes -2 salles de bains dont une avec douche et baignoire -Véranda lumineuse, parfaite pour un coin lecture ou un bureau Un potentiel professionnel rare -Grand garage indépendant de 79 m² : idéal pour un artisan, un bricoleur passionné ou un stockage professionnel -Possibilité d'y installer une activité libérale (professions médicales, paramédicales, bien-être...) -Terrain constructible et divisible, offrant de belles perspectives d'agrandissement ou de revente partielle Prestations et confort -Piscine couverte (qui peut être chauffée) pour en profiter pleinement du printemps à l'automne -Pompe à chaleur + climatisation réversible : confort été/hiver garanti -Panneaux photovoltaïques : pour des économies d'énergie appréciables -Bornes de recharge pour véhicule électrique -Aspiration centralisée -Sous-sol total : praticité au quotidien -Environnement calme et verdoyant sans vis à vis, avec accès facile aux grands axes. Cette maison n'attend plus que vous et votre projet ! Que vous soyez une grande famille, un professionnel en quête d'un lieu de travail agréable, ou un investisseur visionnaire, ce bien rare coche toutes les cases. Contactez-nous dès aujourd'hui pour organiser une visite et découvrir tout son potentiel.
Voir plus

Référence: 940
Honoraires à la charge du vendeur.
DPE
A
B
C
D
E
F
G
GES
A
B
C
D
E
F
G

Prêt immobilier

Vous souhaitez connaître votre capacité d’emprunt et trouver le meilleur crédit immobilier ?
Réaliser une simulation gratuite

Maison à BOURNEZEAU
Maison à BOURNEZEAU
Maison à BOURNEZEAU
Maison à BOURNEZEAU
Maison à BOURNEZEAU
Maison à BOURNEZEAU
Maison à BOURNEZEAU
Maison à BOURNEZEAU
Maison à BOURNEZEAU
Maison à BOURNEZEAU
Maison à BOURNEZEAU
Maison à BOURNEZEAU
Maison à BOURNEZEAU
Ce site est protégé par reCAPTCHA la Politique de confidentialité et les Conditions d’utilisation de Google s’appliquent.
Obtenir un prêt immobilier au meilleur taux ?

En poursuivant votre navigation sans modifier vos paramètres, vous acceptez l'utilisation de cookies susceptibles de réaliser des statistiques de visite. Cliquez ici pour plus d'informations