Bénéficiez des services de nos partenaires locaux soigneusement sélectionnés
pour vous accompagner dans votre parcours d'achat immobilier

Maison 79m² à la ciotat

— La Ciotat 13600 —
490 000 €
79 m² / 30 m²
4 pièces
jardin

Nos partenaires locaux
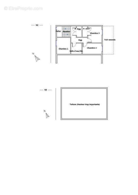
13600 - LA CIOTAT - SUR LES HAUTEUR DE NOTRE DAME DE LA GARDE - MAISON AVEC SOUS-SOL SPACIEUX - 4 PIÈCES - 3 CHAMBRES - 79m2 - GARAGE - PETITE VUE MER - CALME

efficity, l'agence qui estime votre bien en ligne, vous propose cette charmante maison située à La Ciotat, dans le quartier recherché de Notre Dame de la Garde. Cette maison de 4 pièces et 3 chambres offre un cadre de vie paisible, CALME et AGREABLE.

Le rez-de-chaussée se compose d'un salon salle à manger donnant sur une TERRASSE AVEC BARBECUE vue dégagée sur les collines environnantes, d'une cuisine équipée et séparée donnant sur une autre terrasse couverte, un wc indépendant ainsi qu'une salle de douche. A l'étage, vous trouverez trois belles chambres dont 2 avec VUE MER, offrant confort et intimité, ainsi que d'une salle de bain fonctionnelle et un wc. Vous pourrez également profiter d'un PETIT JARDIN ARBORE, idéal pour des moments de détente en plein air.

Pour compléter ce bien elle dispose d'un GARAGE et d'un grand sous-sol pouvant être transformer en studio. Offrant de nombreuses possibilités d'aménagement selon vos besoins. La maison, construite entre 1970 et 1989, bénéficie de plusieurs expositions, assurant une luminosité optimale tout au long de la journée.

Cette maison est le lieu idéal pour profiter pleinement de la vie en bord de mer, tout en étant proche des commodités du quotidien. Ne manquez pas l'opportunité de visiter ce bien d'exception à La Ciotat. Photos meublés virtuellement

Contactez-moi dès maintenant pour convenir d'une visite et découvrir par vous-même tous les atouts de cette maison. Je suis Jessica Impagnatiello, votre conseillère immobilière EffiCity, vous pouvez me joindre au [Coordonnées masquées] ou par mail à [Coordonnées masquées].
Les informations sur les risques auxquels ce bien est exposé sont disponibles sur le site Georisque : georisques. gouv. fr
Jessica Impagnatiello - EI - est Agent Commercial mandataire en immobilier, immatriculé au Registre Spécial des Agents Commerciaux du Tribunal de Commerce de Marseille sous le n°877878397.
Siège social du mandant : effiCity, 48 avenue de Villiers - 75017 PARIS - Société par Actions Simplifiée, société au capital de 132 373,05 euros, immatriculée au RCS Paris 497 617 746 et titulaire de la Carte professionnelle CPI 75[Coordonnées masquées]02 025 - CCI Paris IDF - Caisse de Garantie : GALIAN Assurances 89 rue de la Boétie 75008 Paris
Voir plus

Référence: 190783
Bien en copropriété. Nombre de lots : 200. Charges de copropriété : 111 €.
Honoraires à la charge du vendeur.
Barème des honoraires
DPE
A
B
C
D
E
F
G
GES
A
B
C
D
E
F
G

Prêt immobilier

Vous souhaitez connaître votre capacité d’emprunt et trouver le meilleur crédit immobilier ?
Réaliser une simulation gratuite

Maison à LA CIOTAT
Maison à LA CIOTAT
Maison à LA CIOTAT
Maison à LA CIOTAT
Maison à LA CIOTAT
Maison à LA CIOTAT
Maison à LA CIOTAT
Ce site est protégé par reCAPTCHA la Politique de confidentialité et les Conditions d’utilisation de Google s’appliquent.
Obtenir un prêt immobilier au meilleur taux ?

En poursuivant votre navigation sans modifier vos paramètres, vous acceptez l'utilisation de cookies susceptibles de réaliser des statistiques de visite. Cliquez ici pour plus d'informations