Bénéficiez des services de nos partenaires locaux soigneusement sélectionnés
pour vous accompagner dans votre parcours d'achat immobilier

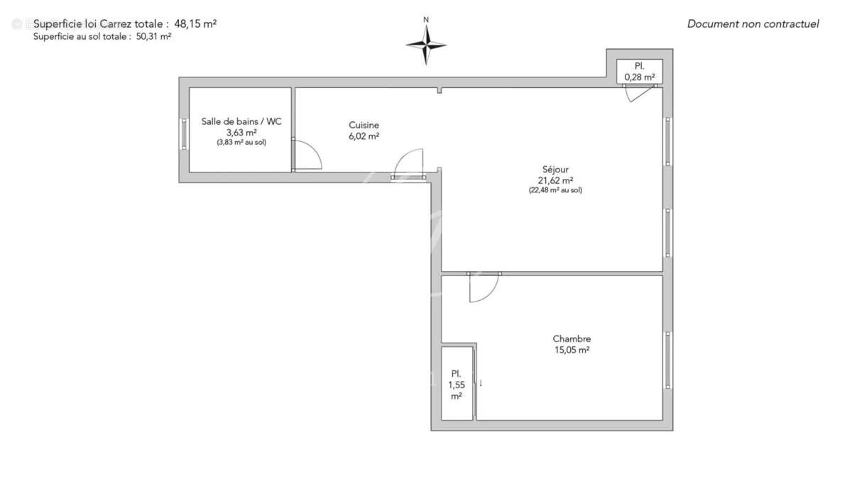
Paris 17e - marché de levis / villiers - appartement à vendre - 2 pièces - 48,15 m² carrez - 1 chambre.

— Paris-17e 75017 —
630 000 €
48 m²
2 pièces

Nos partenaires locaux
A proximité du marché Lévis, cet appartement lumineux et calme de 48,15m² loi Carrez se trouve au deuxième étage d'une copropriété bien entretenue.
Il offre un aménagement optimisé sans perte de place, comprenant une entrée, un séjour salle à manger, une cuisine aménagée, une chambre avec dressing ainsi qu’une salle de douche avec toilettes.
Vous serez séduits par ses volumes, sa luminosité ainsi que par sa proximité immédiate des transports et des commerces.
Un débarras sur le palier complète ce bien.
EXCLUSIVITÉ.
Voir plus

Référence: 2719MONRAF
Barème des honoraires
DPE
A
B
C
D
E
F
G
GES
A
B
C
D
E
F
G

Prêt immobilier

Vous souhaitez connaître votre capacité d’emprunt et trouver le meilleur crédit immobilier ?
Réaliser une simulation gratuite

Appartement à PARIS-17E
Appartement à PARIS-17E
Appartement à PARIS-17E
Appartement à PARIS-17E
Appartement à PARIS-17E
Appartement à PARIS-17E
Appartement à PARIS-17E
Appartement à PARIS-17E
Appartement à PARIS-17E
Appartement à PARIS-17E
Appartement à PARIS-17E
Appartement à PARIS-17E
Appartement à PARIS-17E
Appartement à PARIS-17E
Appartement à PARIS-17E
Appartement à PARIS-17E
Appartement à PARIS-17E
Appartement à PARIS-17E
Appartement à PARIS-17E
Appartement à PARIS-17E
Appartement à PARIS-17E
Ce site est protégé par reCAPTCHA la Politique de confidentialité et les Conditions d’utilisation de Google s’appliquent.
Obtenir un prêt immobilier au meilleur taux ?

En poursuivant votre navigation sans modifier vos paramètres, vous acceptez l'utilisation de cookies susceptibles de réaliser des statistiques de visite. Cliquez ici pour plus d'informations