Pas de parking à Fillieres pour le moment. Découvrez dès maintenant les parkings dans le département Meurthe-et-Moselle.

Terrain 377m² à garches

— Garches 92380 —
580 000 €
377 m²

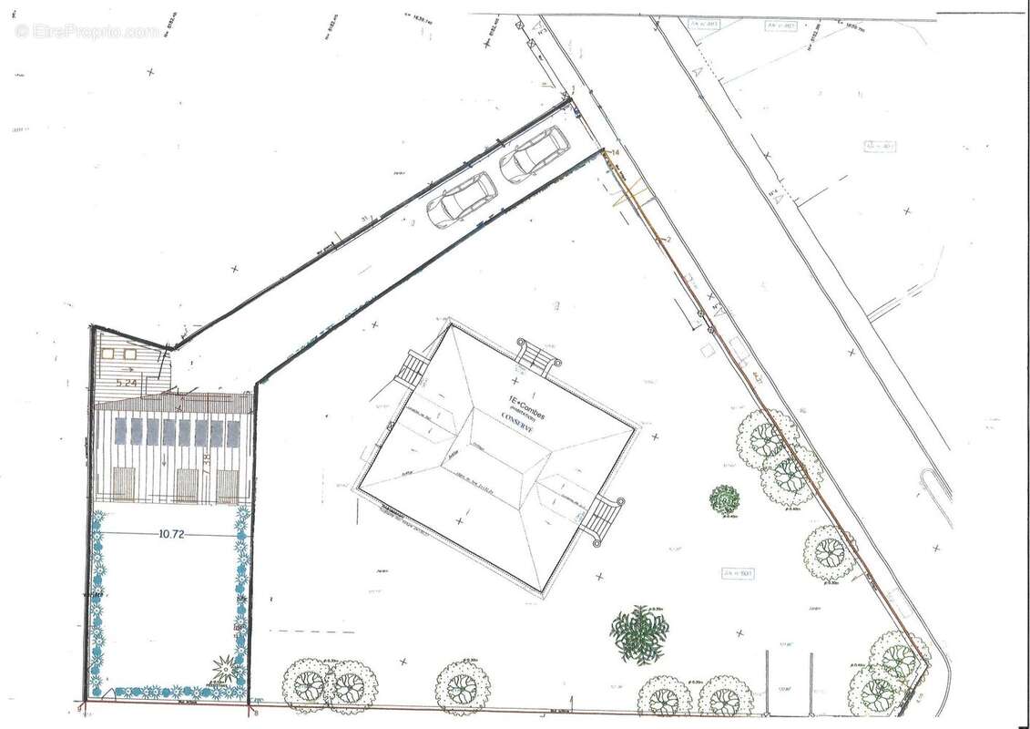
Ultra résidentiel, dans un beau domaine privé, terrain à bâtir parfaitement plat de 377 m² principalement exposé sud et bénéficiant d'une constructibilité importante (permis d'aménager en cours). Il peut accueillir une villa de 150 m² à plus de 200 m² habitables sur deux ou trois niveaux, hors sous-sol. L'environnement est de grande qualité et la gare et les commerces sont à moins de 10 minutes à pied. La ligne L vous mène à Paris Saint Lazare en 25 mn et à la défense en 15 mn. L'accès au parc de Saint-Cloud est à proximité immédiate. Il existe la possibilité de stationner deux ou trois véhicules sur la parcelle, et deux véhicules sur à l'extérieur sur une partie privée.
Pour un budget d'environ 1 100 000 €, ce terrain vous offre la possibilité de bâtir VOTRE maison d'environ 150 m². Il n'attend donc plus que Votre projet. Saisissez cette opportunité unique!
Dossier disponible à l'agence.

Les informations sur les risques auxquels ce bien est exposé sont disponibles sur le site Géorisques : georisques.gouv.fr.

Votre conseiller Agence les Marechaux : Gérant - Renaud DECKER
Voir plus

Référence: VT088-AGENCEMARECHAUX
Honoraires à la charge de l'acquéreur.
Barème des honoraires

Prêt immobilier

Vous souhaitez connaître votre capacité d’emprunt et trouver le meilleur crédit immobilier ?
Réaliser une simulation gratuite

Terrain à GARCHES
Terrain à GARCHES
Terrain à GARCHES
Ce site est protégé par reCAPTCHA la Politique de confidentialité et les Conditions d’utilisation de Google s’appliquent.
Obtenir un prêt immobilier au meilleur taux ?

En poursuivant votre navigation sans modifier vos paramètres, vous acceptez l'utilisation de cookies susceptibles de réaliser des statistiques de visite. Cliquez ici pour plus d'informations