Bénéficiez des services de nos partenaires locaux soigneusement sélectionnés
pour vous accompagner dans votre parcours d'achat immobilier

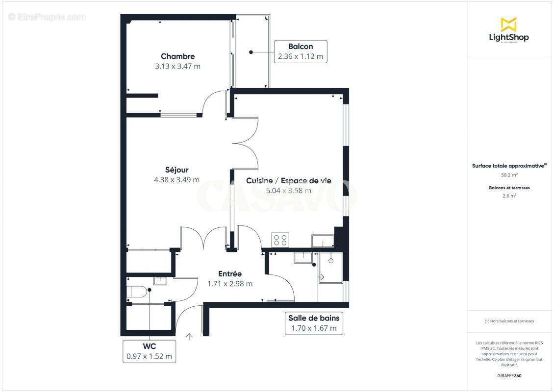
Vente appartement 2 pièces de 58m² - 69006 lyon

— Lyon-6e 69006 —
144 000 €
58 m²
2 pièces
balcon/terrasseascenseur

Nos partenaires locaux
Casavo vous propose à la vente ce charmant appartement T2 de 58 m², entièrement rénové et situé au 2ᵉ étage de la résidence senior les Eumenides, au cœur du très recherché 6ᵉ arrondissement de Lyon.

Ce bien se compose d'un séjour lumineux exposé Sud, d'une grande cuisine équipée; ouverte sur le séjour, d'une chambre spacieuse, d'une salle de bain et WC séparés. Un balcon de 5 m² complète ce bien, idéal pour profiter des beaux jours.

L'appartement bénéficie de prestations de qualité : double vitrage, chauffage individuel électrique, aucun travaux à prévoir, et un environnement calme et sécurisé au sein d'une résidence parfaitement entretenue.

La résidence offre à ses résidents seniors un cadre de vie adapté et confortable, avec de nombreux services : accueil 24h/24, restauration, animations, terrasse arboré, espaces communs conviviaux et présence permanente du personnel.

Le bien est idéalement situé à proximité immédiate du métro Foch, du Parc de la Tête d'Or, ainsi que de tous commerces, transports et commodités.

Idéal résidence principale pour senior ou investissement locatif offrant une rentabilité estimée autour de 8 %.

DPE : D – GES : C

Rentabilité net d'une location classique: 7,7%
Charges de copropriété : 1 200 € / mois
Taxe foncière : 890 € / an

Contactez-nous dès maintenant pour organiser une visite !
Ce bien est commercialisé par Casavo.

Intéressé par ce bien ? Plus d'informations sur le site de Casavo.
Cette annonce attire votre attention ? Notre équipe s'agrandit et nous recherchons des conseillers immobiliers pour rejoindre la team lyonnaise, pour en savoir plus, rendez-vous sur notre site web !
Voir plus

Référence: 49479
Honoraires à la charge du vendeur.
DPE
A
B
C
D
E
F
G
GES
A
B
C
D
E
F
G

Prêt immobilier

Vous souhaitez connaître votre capacité d’emprunt et trouver le meilleur crédit immobilier ?
Réaliser une simulation gratuite

Appartement à LYON-6E
Appartement à LYON-6E
Appartement à LYON-6E
Appartement à LYON-6E
Appartement à LYON-6E
Appartement à LYON-6E
Appartement à LYON-6E
Appartement à LYON-6E
Appartement à LYON-6E
Appartement à LYON-6E
Appartement à LYON-6E
Appartement à LYON-6E
Appartement à LYON-6E
Ce site est protégé par reCAPTCHA la Politique de confidentialité et les Conditions d’utilisation de Google s’appliquent.
Obtenir un prêt immobilier au meilleur taux ?

En poursuivant votre navigation sans modifier vos paramètres, vous acceptez l'utilisation de cookies susceptibles de réaliser des statistiques de visite. Cliquez ici pour plus d'informations