Bénéficiez des services de nos partenaires locaux soigneusement sélectionnés
pour vous accompagner dans votre parcours d'achat immobilier

Toulouse bourrassol cartoucherie appartement 2 pièces 48m²

— Toulouse 31300 —
179 000 €
48 m²
2 pièces
parkingascenseur

Nos partenaires locaux
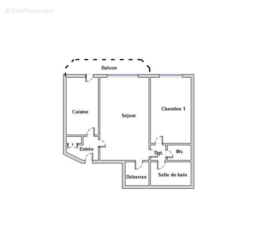
Secteur Bourrassol, rue Rodolose - Toulouse Venez découvrir ce grand appartement T2, libre de toute occupation, situé dans une petite résidence sécurisée avec ascenseur, au calme et proche de toutes les commodités (métro, tram, carrefour Market, station essence, rocade, ICAM) Cet appartement est au premier étage. Il se compose d'une entrée avec placard, une cuisine aménagée et équipée pouvant être ouverte sur le séjour, une buanderie, un coin nuit desservant la salle de bain, la chambre et le wc. Le balcon de 4m² est accessible depuis la cuisine et le séjour. Une place de parking aérienne complète ce bien. Un petit raffraichissement est à prévoir. Idéal primo accédant ou investisseur ! Venez le visiter sans tarder !! Copropriété de 32 lots - dont 16 lots habitation. (Pas de procédure en cours). Charges annuelles : 1360.37 euros.
Voir plus

Référence: 3375
Bien en copropriété. Nombre de lots : 32. Charges de copropriété : 1360 €.
Honoraires à la charge du vendeur.
Barème des honoraires
DPE
A
B
C
D
E
F
G
GES
A
B
C
D
E
F
G

Prêt immobilier

Vous souhaitez connaître votre capacité d’emprunt et trouver le meilleur crédit immobilier ?
Réaliser une simulation gratuite

Appartement à TOULOUSE
Appartement à TOULOUSE
Appartement à TOULOUSE
Appartement à TOULOUSE
Appartement à TOULOUSE
Appartement à TOULOUSE
Appartement à TOULOUSE
Ce site est protégé par reCAPTCHA la Politique de confidentialité et les Conditions d’utilisation de Google s’appliquent.
Obtenir un prêt immobilier au meilleur taux ?

En poursuivant votre navigation sans modifier vos paramètres, vous acceptez l'utilisation de cookies susceptibles de réaliser des statistiques de visite. Cliquez ici pour plus d'informations