Bénéficiez des services de nos partenaires locaux soigneusement sélectionnés
pour vous accompagner dans votre parcours d'achat immobilier

Villiers/legendre

— Paris-17e 75017 —
798 000 €
62 m²
3 pièces
ascenseur

Nos partenaires locaux
Paris 17eme - Rue Legendre
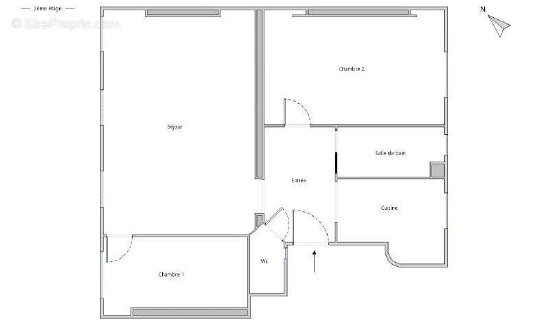
Exclusivité Saint Ferdinand Immobilier. Véritable coup de cœur pour ce magnifique 3/4 pièces de standing. Au 2e étage avec ascenseur d'un immeuble ancien, cet appartement traversant et lumineux bénéficie d'un excellent plan sans perte de place. Il se compose d'une entrée, d'un séjour/salle à manger, d'une cuisine équipée, deux chambres, d'une salle de bains et de toilettes séparées.
Idéalement situé à proximité des transports, des commerces du marché Lévis et des Batignolles.
Une cave et un local vélo complètent ce bien.
Commission d'agence 5% à charge acquéreur. Nombre de lots (NC) aucune procédure
Les informations sur les risques auxquels ce bien est exposé, sont disponibles sur le site Géorisques https://www.georisques.gouv.fr
Voir plus

Référence: 86429660
DPE
A
B
C
D
E
F
G
GES
A
B
C
D
E
F
G

Prêt immobilier

Vous souhaitez connaître votre capacité d’emprunt et trouver le meilleur crédit immobilier ?
Réaliser une simulation gratuite

Appartement à PARIS-17E
Appartement à PARIS-17E
Appartement à PARIS-17E
Appartement à PARIS-17E
Appartement à PARIS-17E
Appartement à PARIS-17E
Appartement à PARIS-17E
Appartement à PARIS-17E
Appartement à PARIS-17E
Appartement à PARIS-17E
Appartement à PARIS-17E
Appartement à PARIS-17E
Appartement à PARIS-17E
Appartement à PARIS-17E
Ce site est protégé par reCAPTCHA la Politique de confidentialité et les Conditions d’utilisation de Google s’appliquent.
Obtenir un prêt immobilier au meilleur taux ?

En poursuivant votre navigation sans modifier vos paramètres, vous acceptez l'utilisation de cookies susceptibles de réaliser des statistiques de visite. Cliquez ici pour plus d'informations