Maison 120m² à sainte-genevieve

— Sainte-Genevieve 60730 —
358 000 €
120 m² / 1 200 m²
7 pièces
parkingbalcon/terrassejardin

Située à Sainte-Geneviève (60730), COCO est une charmante maison dans un environnement paisible et familial, à proximité des commerces, et des écoles. Idéalement localisée, la propriété offre un cadre de vie agréable.

Édifiée sur 1200 m² de jardin verdoyant où tout est pensé pour votre confort. Un sous-sol carrelé et chauffé si besoin de 76 m² avec double garage, buanderie, atelier avec la place pour organiser des fêtes ! Une dépendance de 16 m² pour ranger vos outils de jardin ainsi qu'une cabane assortie d'un portique pour occuper les enfants au grand air.

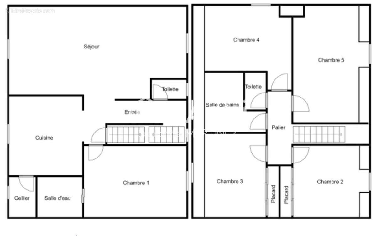
Cette maison de 120 m² offre au RDC une entré, un séjour lumineux de 34 m² env. donnant sur une terrasse de 40 m² env., une cuisine fermée aménagée complétée d'un cellier, une chambre parentale de 16 m² env. avec salle d'eau et un WC séparé. À l'étage, 4 chambres dont deux avec grand placard intégré, une salle de bain et un WC. Un bien soigné, à l'état impeccable et prêt à accueillir une famille dans un cadre chaleureux et convivial.

Les informations sur les risques auxquels ce bien est exposé sont disponibles sur le site Géorisques : www.georisques.gouv.fr
Prix de vente : 358 000 ¤
Honoraires charge vendeur

Contactez votre conseiller SAFTI : Sandrine MARTINEZ, Tél. : [Coordonnées masquées], E-mail : [Coordonnées masquées] - EI - Agent commercial immatriculé au RSAC de Beauvais sous le numéro 938307899.
Informations LOI ALUR :
Honoraires charge vendeur. (gedeon_26118_32143432)
Voir plus

Référence: 1546220
Honoraires à la charge du vendeur.
Barème des honoraires
DPE
A
B
C
D
E
F
G
GES
A
B
C
D
E
F
G

Prêt immobilier

Vous souhaitez connaître votre capacité d’emprunt et trouver le meilleur crédit immobilier ?
Réaliser une simulation gratuite

Photo 1 - Maison à SAINTE-GENEVIEVE
Photo 1
Photo 2 - Maison à SAINTE-GENEVIEVE
Photo 2
Photo 3 - Maison à SAINTE-GENEVIEVE
Photo 3
Photo 4 - Maison à SAINTE-GENEVIEVE
Photo 4
Photo 5 - Maison à SAINTE-GENEVIEVE
Photo 5
Photo 6 - Maison à SAINTE-GENEVIEVE
Photo 6
Photo 7 - Maison à SAINTE-GENEVIEVE
Photo 7
Photo 8 - Maison à SAINTE-GENEVIEVE
Photo 8
Photo 9 - Maison à SAINTE-GENEVIEVE
Photo 9
Ce site est protégé par reCAPTCHA la Politique de confidentialité et les Conditions d’utilisation de Google s’appliquent.
Obtenir un prêt immobilier au meilleur taux ?

En poursuivant votre navigation sans modifier vos paramètres, vous acceptez l'utilisation de cookies susceptibles de réaliser des statistiques de visite. Cliquez ici pour plus d'informations