Bénéficiez des services de nos partenaires locaux soigneusement sélectionnés
pour vous accompagner dans votre parcours d'achat immobilier

Maison récente proche du centre-ville

— Millau 12100 —
239 000 €
94 m² / 419 m²
4 pièces
parkingbalcon/terrassejardin

Nos partenaires locaux
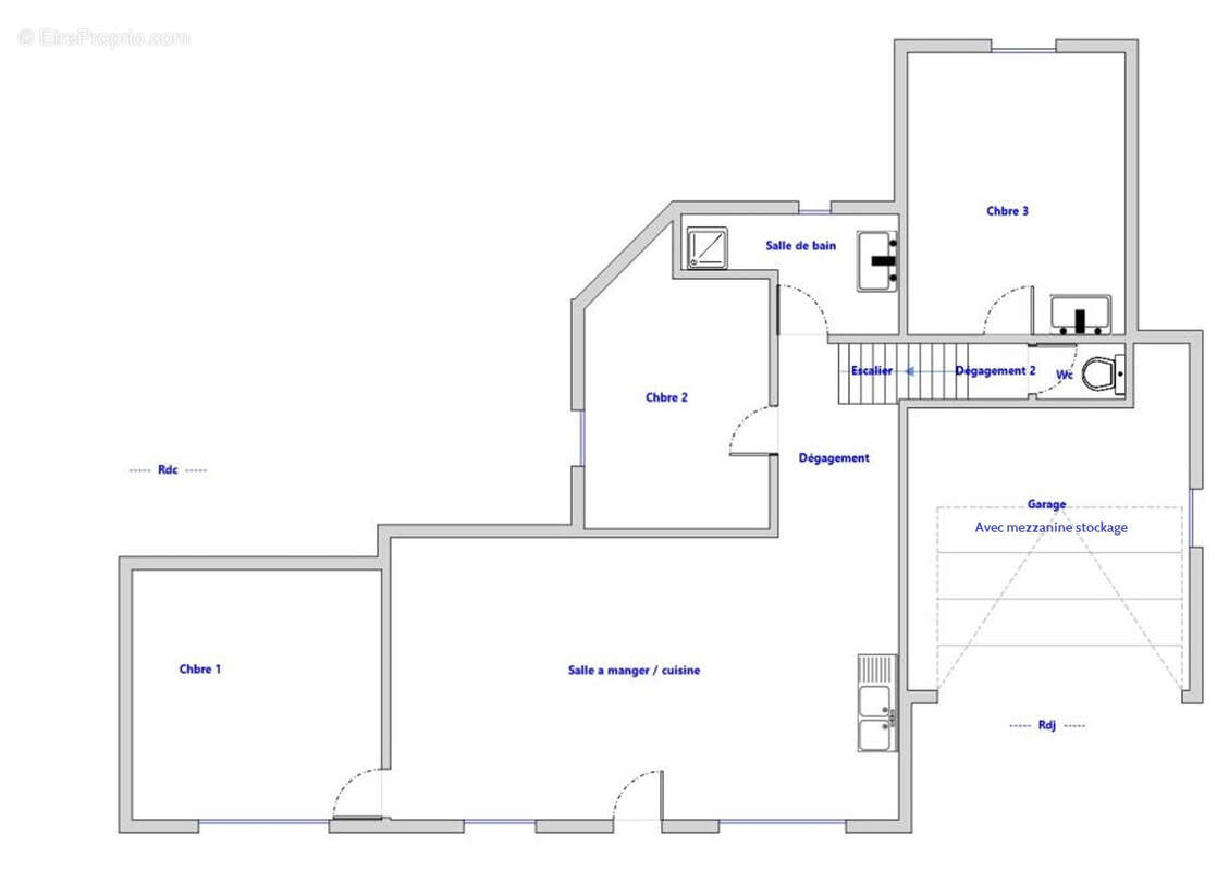
À proximité immédiate du centre-ville de Millau, dans une impasse, découvrez cette maison de 94 m2 habitables en parfait état, offrant confort et fonctionnalité au quotidien.
L’espace de vie se compose d’un séjour lumineux d’environ 35 m2 avec cuisine ouverte récente, idéal pour profiter d’un espace convivial et moderne.
La maison propose deux chambres en plain-pied, ainsi qu’une troisième chambre sur demi-niveau avec point d'eau, permettant de s’adapter à différents projets (bureau, chambre d’enfant, espace invité…).
Un garage avec portail électrique et mezzanine de rangement vient compléter l’ensemble ainsi qu'une place de stationnement.
Bénéficiant d’une rénovation globale réalisée il y a moins de dix ans, elle dispose de prestations de qualité, Chauffage au sol électrique basse consommation sur l'ensemble de la maison (possibilité de passer en PAC), une chambre climatisée, combles isolés, VMC, électricité et plomberie ont moins de dix ans également, fênêtres DV.
Construite sur vide sanitaire (environ 1,7m, idéal pour du stockage) , cette maison offre un excellent confort de vie et une bonne durabilité dans le temps.
À l’extérieur, vous profiterez d’une parcelle de 419 m2, agréable et facile à entretenir.
Une maison soignée, moderne et sans travaux — prête à vous accueillir !
Contactez-moi pour organiser une visite
Cette annonce vous est proposée par TASSIE Amandine - EI - NoRSAC: 815 408 315, Enregistré à Greffe du tribunal de commerce de RODEZ - Annonce rédigée et publiée par un Agent Mandataire -
Voir plus

Référence: 97487
Honoraires à la charge du vendeur.
Barème des honoraires
DPE
A
B
C
D
E
F
G
GES
A
B
C
D
E
F
G

Prêt immobilier

Vous souhaitez connaître votre capacité d’emprunt et trouver le meilleur crédit immobilier ?
Réaliser une simulation gratuite

Maison à MILLAU
Maison à MILLAU
Maison à MILLAU
Maison à MILLAU
Maison à MILLAU
Maison à MILLAU
Maison à MILLAU
Maison à MILLAU
Maison à MILLAU
Maison à MILLAU
Maison à MILLAU
Maison à MILLAU
Maison à MILLAU
Maison à MILLAU
Maison à MILLAU
Ce site est protégé par reCAPTCHA la Politique de confidentialité et les Conditions d’utilisation de Google s’appliquent.
Obtenir un prêt immobilier au meilleur taux ?

En poursuivant votre navigation sans modifier vos paramètres, vous acceptez l'utilisation de cookies susceptibles de réaliser des statistiques de visite. Cliquez ici pour plus d'informations