Bénéficiez des services de nos partenaires locaux soigneusement sélectionnés
pour vous accompagner dans votre parcours d'achat immobilier

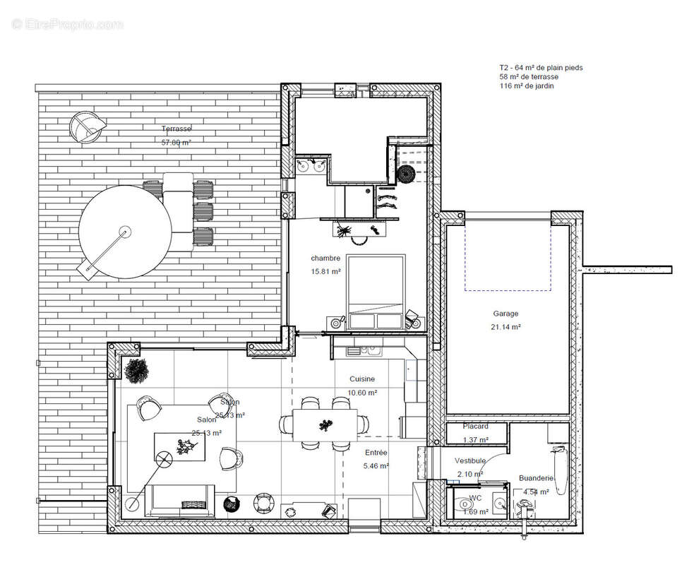
Limonest centre - appartement t2 de 64m2 en rez-de-jardin et parking

— Limonest 69760 —
250 000 €
64 m²
2 pièces
parkingbalcon/terrasse

Nos partenaires locaux
Au calme, Secteur Bois d'Ars-Agora, au COEUR DU VILLAGE DE LIMONEST, venez découvrir cette maison de 2024 d'environ 150 m2 habitables divisée en petite copropriété de deux appartements :
La maison est bâtie avec menuiseries, volets, crépis, arrivée des réseaux, portail, portes d'accès, clôture du terrain, chemin d'accès bétonné etc....

LES APPARTEMENTS SONT PERSONNALISABLES ET VISITABLES. Des plans sont disponibles et modifiables selon ses envies ET dans la limite des possibilités administratives et techniques.
L'appartement T2 de 64m2 habitables est proposé en rez-de-jardin avec une terrasse de 58m2 et un espace jardin de 116m2 + Un parking privatif.
Un T3 au 1er étage est également disponible à l'achat.
Les prestations :
-Menuiseries ALU de fabrication française sous DTA certifié CSBT. Vitrage gaz argon de marque KAWNEER avec rupteurs thermiques
-Volets electriques de marque française BUBENDORFF (vitrage A2P anti effraction lorsqu'il n'y a pas de volets)
-Portes pavillon avec serrure à 5 points
-Portail profilé ALU

L'intérieur est personnalisable à votre goût : choisissez votre isolation, vos matériaux, vos équipements, votre agencement, votre décoration !
Des plans sont disponibles pour vous accompagner dans ce projet de création : 70.000€ TTC de travaux de finition ont été budgétisés.

Pour visiter et vous projeter sur ce projet créatif, contactez directement Julie SILVY (agent commercial EI - RSAC 838469377) au [Coordonnées masquées]

PRIX DE VENTE 250.000€ FAI - Un devis chiffré de tous les travaux restants avec finitions a été établi pour 70.000€ TTC.

Copropriété de 2 lots d'habitation. L'environnement est très calme, vous êtes à 250 mètres des commerces de la rue principale, 600 mètres de l'Agora Pôle culturel, et quelques pas des Ecoles, Collège et Lycée. Le BUS 21 est à 3 minutes à pied. Plusieurs JUNIORS pour les collèges, JEAN PHILIPPE RAMEAU (public Champagne au Mont d'Or) - FROMENTE ST FRANCOIS (privé St Didier au Mont d'Or) - INSTITUTION NOTRE DAME DE BELLEGARDE (privé Neuville s/ Saône) et LES LAZARISTES LA SALLE (privé de Limonest) JD35 - JD77 - JD183 - JD186 - JD621 - JD623
Cette annonce vous est proposée par SILVY Julie - - NoRSAC: , Enregistré au Greffe du tribunal de commerce de Lyon
Voir plus

Bien en copropriété.
Honoraires à la charge du vendeur.
Barème des honoraires

Prêt immobilier

Vous souhaitez connaître votre capacité d’emprunt et trouver le meilleur crédit immobilier ?
Réaliser une simulation gratuite

Appartement à LIMONEST
Appartement à LIMONEST
Appartement à LIMONEST
Appartement à LIMONEST
Appartement à LIMONEST
Appartement à LIMONEST
Appartement à LIMONEST
Ce site est protégé par reCAPTCHA la Politique de confidentialité et les Conditions d’utilisation de Google s’appliquent.
Obtenir un prêt immobilier au meilleur taux ?

En poursuivant votre navigation sans modifier vos paramètres, vous acceptez l'utilisation de cookies susceptibles de réaliser des statistiques de visite. Cliquez ici pour plus d'informations