Bénéficiez des services de nos partenaires locaux soigneusement sélectionnés
pour vous accompagner dans votre parcours d'achat immobilier

Bois colombes - quartier chefson - parcelle de terrain de 138 m² avec permis de construire valide po

— Bois-Colombes 92270 —
550 000 €
138 m²

Nos partenaires locaux
Bois colombes : 8 minutes de la gare (ligne J) et future ligne de métro 15 :
Terrain à bâtir pour la construction d’une maison neuve de 130m² habitables avec 4 chambres.
Situé dans un environnement calme et recherché, découvrez ce superbe projet de maison familiale vendu avec permis de construire valant démolition et division parcellaire, purgé de tout recours des tiers.
Aucune copropriété, double stationnement privatif.

Composition du projet :
Au rez-de-chaussée :
• Belle pièce à vivre lumineuse de 30 m² avec cuisine ouverte sur le séjour
• Accès direct à une terrasse et un jardin exposé plein sud d’environ 50 m², parfait pour profiter des beaux jours

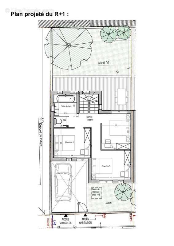
Au premier étage :
• Trois chambres confortables
• Salle de bains familiale
• WC séparé

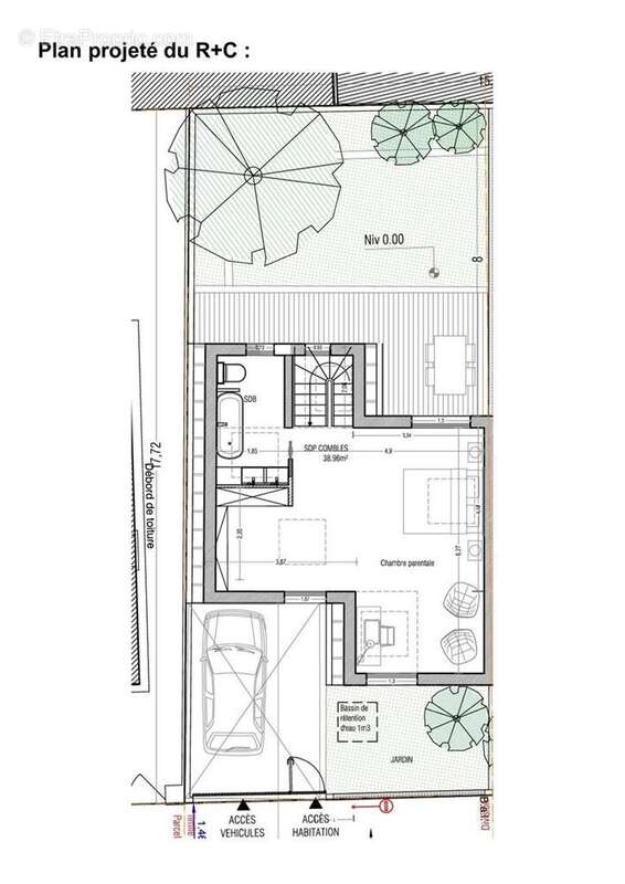
Au deuxième étage :
• Suite parentale spacieuse avec salle de bains privative
• WC séparé
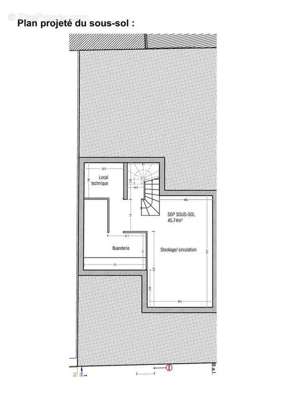
Sous-sol total de 45 m² :
• Buanderie, espace de stockage et local technique

Le tout sur une parcelle de 138 m² bien orientée, offrant calme, confort et indépendance, sans les contraintes d’une copropriété.
________________________________________
Annonce rédigée sous la responsabilité éditoriale de
Madame Anne COMPAIN, Agent commercial immatriculée au RSAC du Tribunal de Commerce de Nanterre sous le numéro 817 778 574.
Voir plus

Référence: 1733

Prêt immobilier

Vous souhaitez connaître votre capacité d’emprunt et trouver le meilleur crédit immobilier ?
Réaliser une simulation gratuite

Terrain à BOIS-COLOMBES
Terrain à BOIS-COLOMBES
Terrain à BOIS-COLOMBES
Terrain à BOIS-COLOMBES
Terrain à BOIS-COLOMBES
Terrain à BOIS-COLOMBES
Ce site est protégé par reCAPTCHA la Politique de confidentialité et les Conditions d’utilisation de Google s’appliquent.
Obtenir un prêt immobilier au meilleur taux ?

En poursuivant votre navigation sans modifier vos paramètres, vous acceptez l'utilisation de cookies susceptibles de réaliser des statistiques de visite. Cliquez ici pour plus d'informations