Maison 94m² à vougy

— Vougy 74130 —
390 000 €
94 m² / 240 m²
4 pièces
jardin

Iad France - Elodie Ferte ([Coordonnées masquées]) vous propose : Maisons neuves individuelles - 94 m² environ - Haute-Savoie (Vougy)

Lancement exclusif : découvrez un nouveau programme résidentiel composé d'une douzaine de maisons neuves, dont quatre mitoyennes et deux individuelles dans la première tranche.

Idéalement situées sur un plateau ensoleillé, dans un environnement verdoyant, calme et résidentiel, ces maisons restent à proximité de toutes les commodités.

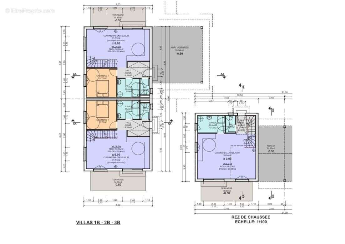
Chaque maison individuelle offre environ 94 m² environ habitables, comprenant :
oUne spacieuse pièce de vie d'environ 40 m² environ, lumineuse, avec cuisine ouverte,
oUn WC au rez-de-chaussée et un espace chaufferie,
oÀ l'étage : trois belles chambres et une salle de bain avec WC intégré.

À l'extérieur : abri voiture, jardin privatif de 200 à 300 m² environ, bardage moderne et stationnements visiteurs.

Les maisons répondent aux normes RE2020, garantissant une excellente performance énergétique, un confort optimal et des économies durables.

Construites par un acteur reconnu depuis plus de 30 ans en Haute-Savoie, ces maisons allient qualité, modernité et cadre de vie préservé. Possibilité de visiter des maisons déjà réalisées pour apprécier le savoir-faire du constructeur.

Prix de lancement : 390 000 ¤ (peintures, sols et terrasse inclus, hors cuisine).
Livraison prévue : 2026-2027.

Contactez-nous dès maintenant pour réserver votre maison dans ce cadre privilégié, entre nature et commodités.

Honoraires d'agence à la charge du vendeur. Bien non soumis au DPE. Les informations sur les risques auxquels ce bien est exposé sont disponibles sur le site Géorisques : www.georisques.gouv.fr. La présente annonce immobilière a été rédigée sous la responsabilité éditoriale de Mlle Elodie Ferte EI (ID 54516), mandataire indépendant en immobilier (sans détention de fonds), agent commercial de la SAS I@D France immatriculé au RSAC de annecy sous le numéro 893295824, titulaire de la carte de démarchage immobilier pour le compte de la société I@D France SAS.
Retrouvez tous nos biens sur notre site internet. www.iadfrance.fr.
Informations LOI ALUR :
Honoraires charge vendeur. (gedeon_6727_32155637)
Voir plus

Référence: 1875061-12
Honoraires à la charge du vendeur.

Prêt immobilier

Vous souhaitez connaître votre capacité d’emprunt et trouver le meilleur crédit immobilier ?
Réaliser une simulation gratuite

Photo 1 - Maison à VOUGY
Photo 1
Photo 2 - Maison à VOUGY
Photo 2
Photo 3 - Maison à VOUGY
Photo 3
Photo 4 - Maison à VOUGY
Photo 4
Photo 5 - Maison à VOUGY
Photo 5
Photo 6 - Maison à VOUGY
Photo 6
Photo 7 - Maison à VOUGY
Photo 7
Photo 8 - Maison à VOUGY
Photo 8
Ce site est protégé par reCAPTCHA la Politique de confidentialité et les Conditions d’utilisation de Google s’appliquent.
Obtenir un prêt immobilier au meilleur taux ?

En poursuivant votre navigation sans modifier vos paramètres, vous acceptez l'utilisation de cookies susceptibles de réaliser des statistiques de visite. Cliquez ici pour plus d'informations