Appartement 27m² à thiais

— Thiais 94320 —
135 000 €
27 m²
1 pièce
parkingbalcon/terrasse

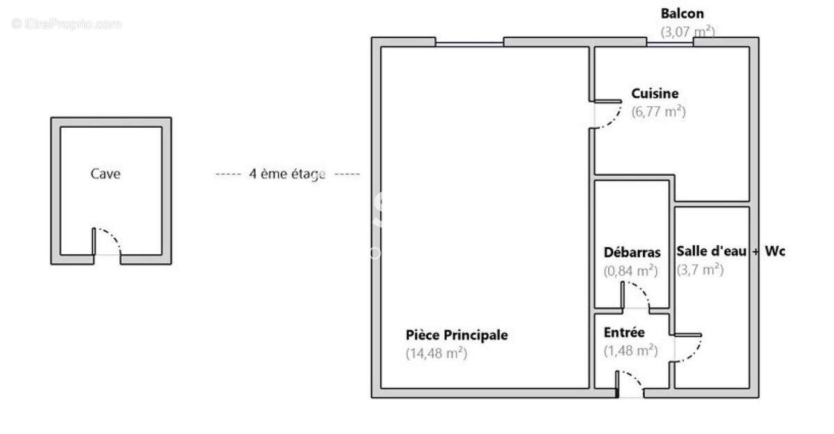
En plein centre-ville de Thiais, ce studio est situé au 4eme et dernier étage d'une résidence bien entretenue. À proximité immédiate des transports (métro et bus 393,183, 185, TVM et N71), des commerces et des services, il permet de tout faire à pied. Le TVM au pied de l'immeuble relie le métro 14 en moins de dix minutes. Thiais Village se trouve à cinq minutes et Belle Épine est accessible en sept minutes par le bus.

L'appartement s'ouvre sur une entrée avec débarras qui mène à une pièce à vivre d'environ 15 m², bien agencée et lumineuse, prolongée par une cuisine ouverte, aménagée et équipée qui donne sur le balcon avec une vue dégagée et sans vis-à-vis. La salle d'eau comprend un WC.

Une place de parking extérieure attitrée et une cave en sous-sol sont également comprises dans le prix.

Je reste disponible pour répondre à vos questions et organiser une visite selon vos disponibilités.

Le bien comprend 3 lots, et il est situé dans une copropriété de 40 lots (les charges courantes annuelles moyennes de copropriété sont de 2000 ¤ et le syndicat des copropriétaires ne fait pas l'objet d'une procédure citée à l'article L. 721-1 du code de la construction et de l'habitation).

Les informations sur les risques auxquels ce bien est exposé sont disponibles sur le site Géorisques : www.georisques.gouv.fr
Prix de vente : 135 000 ¤
Honoraires charge vendeur

Contactez votre conseiller SAFTI : Donia LALA, Tél. : [Coordonnées masquées], E-mail : [Coordonnées masquées] - EI - Agent commercial immatriculé au RSAC de Créteil sous le numéro 977904887.
Informations LOI ALUR :
Soumis au régime de copropriété.
Nombre de lots : 40.
Quote part annuelle(moyenne) : 2000 euros.
Honoraires charge vendeur. (gedeon_26118_32153104)
Voir plus

Référence: 757704
Bien en copropriété. Nombre de lots : 40. Charges de copropriété : 2000 €.
Honoraires à la charge du vendeur.
Barème des honoraires
DPE
A
B
C
D
E
F
G
GES
A
B
C
D
E
F
G

Prêt immobilier

Vous souhaitez connaître votre capacité d’emprunt et trouver le meilleur crédit immobilier ?
Réaliser une simulation gratuite

Photo 1 - Appartement à THIAIS
Photo 1
Photo 2 - Appartement à THIAIS
Photo 2
Photo 3 - Appartement à THIAIS
Photo 3
Photo 4 - Appartement à THIAIS
Photo 4
Photo 5 - Appartement à THIAIS
Photo 5
Photo 6 - Appartement à THIAIS
Photo 6
Ce site est protégé par reCAPTCHA la Politique de confidentialité et les Conditions d’utilisation de Google s’appliquent.
Obtenir un prêt immobilier au meilleur taux ?

En poursuivant votre navigation sans modifier vos paramètres, vous acceptez l'utilisation de cookies susceptibles de réaliser des statistiques de visite. Cliquez ici pour plus d'informations