Vente maison 5 pièces de 94m² - 95600 eaubonne

— Eaubonne 95600 —
429 000 €
94 m² / 379 m²
5 pièces
parkingjardin

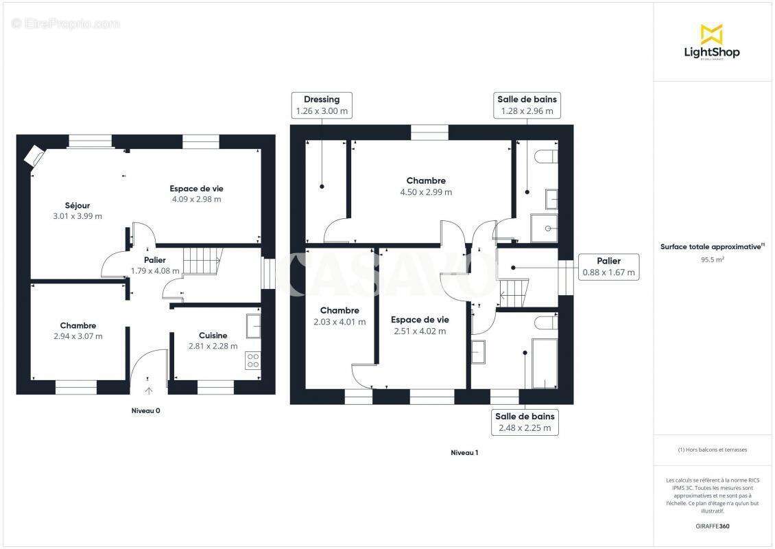
Casavo vous propose à la vente ce pavillon individuel de 94.0 m² sur un terrain de 379 m² localisé dans une rue calme et pavillonnaire du quartier recherché de l'Alliance d'Eaubonne.

Idéalement situé: A à 5 minutes à pieds de la gare du Champ de courses d'Enghien et 15 min de la gare d'Ermont Eaubonne. A 5 min des écoles François Rabelais et Paul Bert. A deux pas des commerces.

Cette maison de cachet type Meulière des années 20/30 se compose de:
Au rez de chaussée : Une entrée, un salon/salle à manger de 25 m² avec parquet massif et vue sur le jardin exposé Sud-Ouest, une cuisine séparée et aménagée, une chambre, un WC séparé en inter palier.

A l'étage: un palier dessert deux grandes chambres en suite avec leur parquet massif, une avec son dressing de 4 m² et sa salle d'eau avec WC et l'autre avec son bureau de 8 m² et sa salle de bain avec WC.

Au sous-sol semi enterré total: un garage traversant, une buanderie, chaufferie.

La maison est complétée par un beau jardin sans vis à vis avec abri de jardin.

Rafraichissement à prévoir pour cette maison de charme à l'emplacement parfait pour une vie de famille!

Chauffage fioul, chaudière de 2001 avec foyer en fonte
Taxe foncière : 2000€ par an

Ce bien est commercialisé par Casavo.

Intéressé par ce bien ? Plus d'informations sur le site de Casavo.
Voir plus

Référence: 46898
Honoraires à la charge du vendeur.
DPE
A
B
C
D
E
F
G
GES
A
B
C
D
E
F
G

Prêt immobilier

Vous souhaitez connaître votre capacité d’emprunt et trouver le meilleur crédit immobilier ?
Réaliser une simulation gratuite

Maison à EAUBONNE
Maison à EAUBONNE
Maison à EAUBONNE
Maison à EAUBONNE
Maison à EAUBONNE
Maison à EAUBONNE
Maison à EAUBONNE
Maison à EAUBONNE
Maison à EAUBONNE
Maison à EAUBONNE
Maison à EAUBONNE
Maison à EAUBONNE
Maison à EAUBONNE
Maison à EAUBONNE
Maison à EAUBONNE
Maison à EAUBONNE
Maison à EAUBONNE
Maison à EAUBONNE
Ce site est protégé par reCAPTCHA la Politique de confidentialité et les Conditions d’utilisation de Google s’appliquent.
Obtenir un prêt immobilier au meilleur taux ?

En poursuivant votre navigation sans modifier vos paramètres, vous acceptez l'utilisation de cookies susceptibles de réaliser des statistiques de visite. Cliquez ici pour plus d'informations