Maison de ville mitoyenne des deux côtes a neuves maisons

— Neuves-Maisons 54230 —
219 000 €
160 m²
4 pièces
balcon/terrassepiscine

Je vous propose cette maison mitoyenne des 2 côtes sur la commune de Neuves Maisons idéalement située à proximité du centre ville, des commerces et des transports en commun.
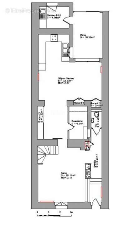
Au rez-de-chaussée , une entrée , un salon/séjour, une cuisine ouverte avec une buanderie, accédant sur une véranda disposant d'une cuisine d'été , le jardin avec une piscine hors sol et un WC indépendant.
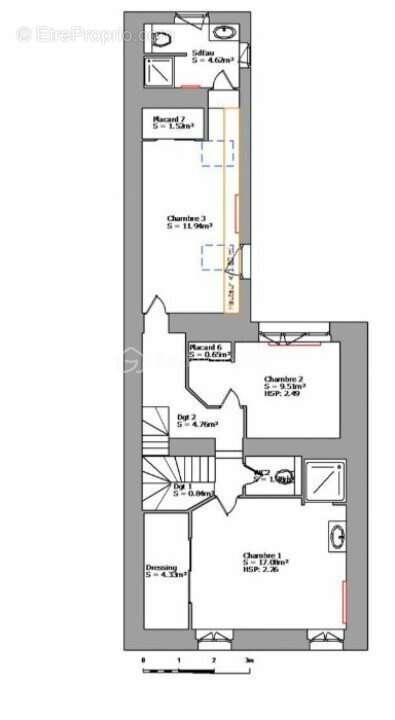
A l'étage , une grande suite parentale de 30m2 avec un dressing, une salle d'eau avec une douche à l'italienne et un wc indépendant, sur le second niveau en accédant grâce à 3 marches, une 2éme chambre avec placard, une 3ème chambre avec salle d'eau et un wc donnant accès à une terrasse et sur le dernier niveau une pièce mansardée de 26 m2 aménageable en chambre, bureau ou dressing ...
Le tout édifié sur un terrain de 202 m2 complété par une cave de 10m2.

Cette annonce référence 220049 vous est présentée par votre agent commercial BSK Immobilier LAURINE NIVOIX (EI) immatriculé au RSAC de TOULON (83000) sous le numéro 981[Coordonnées masquées]1.

Prix du bien : 219 000,00 €
Les honoraires d'agence sont à la charge du vendeur.

A propos des performances énergétiques :
Date de réalisation du diagnostic énergétique : 06/02/2224
Score DPE : 156 kWhEP/m²/an
Score GES : 31 kgepCO2/m²/an
Montant estimé des dépenses annuelles d'énergie pour un usage standard : entre 1480.00 € et 2070.00 € par an. Prix moyens des énergies indexés sur l'année 2024 (abonnements compris).

Les informations sur les risques auxquels ce bien est exposé sont disponibles sur le site Géorisques : www.georisques.gouv.fr
Voir plus

Référence: 220049
Honoraires à la charge du vendeur.
DPE
A
B
C
D
E
F
G
GES
A
B
C
D
E
F
G

Prêt immobilier

Vous souhaitez connaître votre capacité d’emprunt et trouver le meilleur crédit immobilier ?
Réaliser une simulation gratuite

Maison à NEUVES-MAISONS
Maison à NEUVES-MAISONS
Maison à NEUVES-MAISONS
Maison à NEUVES-MAISONS
Maison à NEUVES-MAISONS
Maison à NEUVES-MAISONS
Maison à NEUVES-MAISONS
Maison à NEUVES-MAISONS
Maison à NEUVES-MAISONS
Maison à NEUVES-MAISONS
Maison à NEUVES-MAISONS
Ce site est protégé par reCAPTCHA la Politique de confidentialité et les Conditions d’utilisation de Google s’appliquent.
Obtenir un prêt immobilier au meilleur taux ?

En poursuivant votre navigation sans modifier vos paramètres, vous acceptez l'utilisation de cookies susceptibles de réaliser des statistiques de visite. Cliquez ici pour plus d'informations