Bénéficiez des services de nos partenaires locaux soigneusement sélectionnés
pour vous accompagner dans votre parcours d'achat immobilier

A vendre exclusivite plouzane trinite maison 3 chambres

— Plouzane 29280 —
273 480 €
125 m² / 440 m²
6 pièces
parkingbalcon/terrassejardin

Nos partenaires locaux
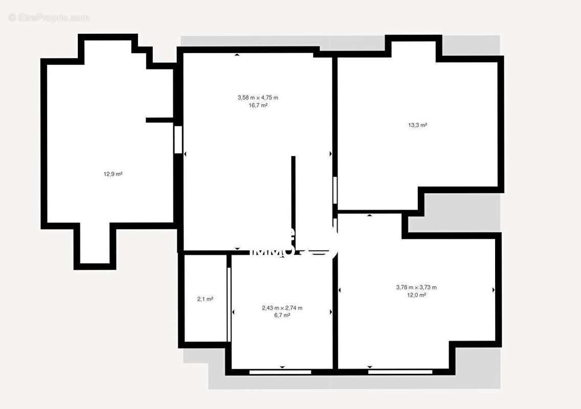
A VENDRE - EXCLUSIVITE - PLOUZANE TRINITE - Réf : PZ00290-ZR. Cette maison de 125 m² séduit par sa luminosité et la fluidité de ses espaces. L'entrée s'ouvre sur un salon séjour généreux avec accès direct au jardin. La cuisine, spacieuse, entièrement aménagée et équipée avec goût, communique elle aussi avec l'extérieur pour des repas dedans-dehors dès les beaux jours. Un cellier attenant et un WC avec lave-mains complètent le rez-de-chaussée. A l'étage, trois chambres confortables, un placard et une salle de bains familiale avec baignoire et douche. Le jardin de 440 m², agréable et idéalement exposé sud/ouest, promet de belles fins d'après-midi au soleil. Côté praticité, la maison dispose également d'un garage. Côté confort, chauffage électrique et poêle à bois pour une ambiance chaleureuse toute l'année. Située à proximité de plusieurs écoles, dont l'École primaire publique Coat Edern et le Collège de Kérallan, elle est idéale pour les familles. N'attendez plus pour visiter cette maison qui allie confort et praticité, contactez l'Agence Barraine IMMO à Plouzané pour plus d'informations. (6.00 % honoraires TTC à la charge de l'acquéreur.)
Voir plus

Référence: PZ00290-ZR
Honoraires d'agence de 6% à la charge de l'acquéreur
Barème des honoraires
DPE
A
B
C
D
E
F
G
GES
A
B
C
D
E
F
G

Prêt immobilier

Vous souhaitez connaître votre capacité d’emprunt et trouver le meilleur crédit immobilier ?
Réaliser une simulation gratuite

Maison à PLOUZANE
Maison à PLOUZANE
Maison à PLOUZANE
Maison à PLOUZANE
Maison à PLOUZANE
Maison à PLOUZANE
Maison à PLOUZANE
Maison à PLOUZANE
Maison à PLOUZANE
Maison à PLOUZANE
Maison à PLOUZANE
Maison à PLOUZANE
Maison à PLOUZANE
Maison à PLOUZANE
Maison à PLOUZANE
Maison à PLOUZANE
Maison à PLOUZANE
Maison à PLOUZANE
Maison à PLOUZANE
Maison à PLOUZANE
Ce site est protégé par reCAPTCHA la Politique de confidentialité et les Conditions d’utilisation de Google s’appliquent.
Obtenir un prêt immobilier au meilleur taux ?

En poursuivant votre navigation sans modifier vos paramètres, vous acceptez l'utilisation de cookies susceptibles de réaliser des statistiques de visite. Cliquez ici pour plus d'informations