Bénéficiez des services de nos partenaires locaux soigneusement sélectionnés
pour vous accompagner dans votre parcours d'achat immobilier

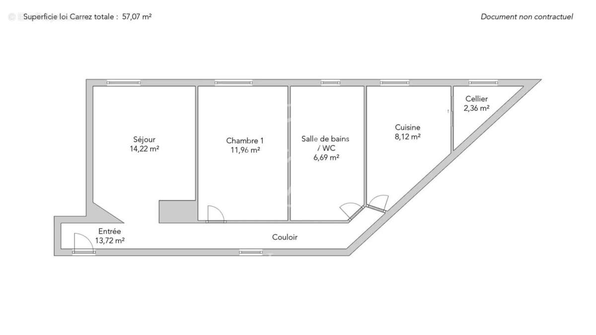
Boulogne-billancourt - reine / victor hugo - appartement à vendre - 2 pièces - 57,01m² carrez - 1 chambre - cuisine séparée.

— Boulogne-Billancourt 92100 —
480 000 €
57 m²
2 pièces
ascenseur

Nos partenaires locaux
Situé au sixième et dernier étage par ascenseur, cet élégant appartement traversant de 57,01m² loi Carrez séduit par sa vue dégagée et sa luminosité. En parfait état, il conjugue confort moderne et charme de l’ancien, notamment grâce à son beau parquet qui confère chaleur et authenticité.

Il comporte un salon lumineux, une chambre au calme, une cuisine fonctionnelle avec une pièce attenante idéale pour les rangements, ainsi qu'une salle de bains récemment refaite à neuf.

Sa distribution optimisée et ses espaces complémentaires en font un bien pratique et agréable à vivre au quotidien.

Idéalement situé à proximité des commerces et des transports, il offre un cadre de vie recherché, alliant praticité et sérénité.

Un appartement rare, prêt à accueillir ses nouveaux propriétaires.

Une cave complète ce bien.

EXCLUSIVITÉ
Voir plus

Référence: 5672JASPAS
Barème des honoraires
DPE
A
B
C
D
E
F
G
GES
A
B
C
D
E
F
G

Prêt immobilier

Vous souhaitez connaître votre capacité d’emprunt et trouver le meilleur crédit immobilier ?
Réaliser une simulation gratuite

Appartement à BOULOGNE-BILLANCOURT
Appartement à BOULOGNE-BILLANCOURT
Appartement à BOULOGNE-BILLANCOURT
Appartement à BOULOGNE-BILLANCOURT
Appartement à BOULOGNE-BILLANCOURT
Appartement à BOULOGNE-BILLANCOURT
Appartement à BOULOGNE-BILLANCOURT
Appartement à BOULOGNE-BILLANCOURT
Appartement à BOULOGNE-BILLANCOURT
Appartement à BOULOGNE-BILLANCOURT
Appartement à BOULOGNE-BILLANCOURT
Appartement à BOULOGNE-BILLANCOURT
Appartement à BOULOGNE-BILLANCOURT
Appartement à BOULOGNE-BILLANCOURT
Appartement à BOULOGNE-BILLANCOURT
Appartement à BOULOGNE-BILLANCOURT
Appartement à BOULOGNE-BILLANCOURT
Ce site est protégé par reCAPTCHA la Politique de confidentialité et les Conditions d’utilisation de Google s’appliquent.
Obtenir un prêt immobilier au meilleur taux ?

En poursuivant votre navigation sans modifier vos paramètres, vous acceptez l'utilisation de cookies susceptibles de réaliser des statistiques de visite. Cliquez ici pour plus d'informations