Bénéficiez des services de nos partenaires locaux soigneusement sélectionnés
pour vous accompagner dans votre parcours d'achat immobilier

Local artisanal / industriel / commercial / bureaux et showroom à vendre guingamp (22)

— Guingamp 22200 —
796 875 €
1 560 m²
18 pièces
parking

Nos partenaires locaux
Local commercial et artisanal / industriel exceptionnel à vendre - Guingamp (22200)

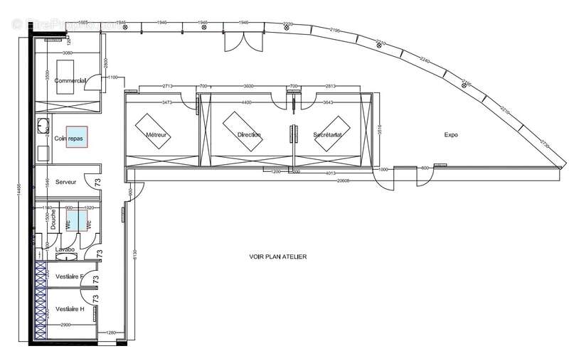
Saisissez une opportunité rare d'investir dans un ensemble immobilier professionnel de grande capacité modulable en parfait état. Situé à Guingamp, sur un axe stratégique avec une excellente visibilité, cet ensemble total de 1 560 m², réparti sur deux bâtiments divisibles, est idéal pour les entreprises à la recherche d'un espace fonctionnel, polyvalent et bien équipé.

Caractéristiques du bien :
1) Bâtiment principal (1 160 m²)

Surface atelier de 1 000 m² avec 2 quais poids lourds, portes sectionnelles PL motorisées.

Espace bureaux de 160 m² comprenant 6 bureaux confortables, 2 vestiaires, salle de pause et show-room.

Équipements techniques aux normes : Isolation double peau, tableau électrique 380 V, air comprimé, baie de brassage, chauffage gaz.

Libre de toute occupation – précédemment loué. (réelle opportunité pour exploitant ou investisseur).

2) Deuxième bâtiment (400 m²) :
Loué pour un revenu locatif annuel sécurisé de 15 600 € HT jusqu'en février 2029.

Comporte bureaux, salle de réunion, sanitaires avec douche, vestiaires, espace de stockage.

Atouts majeurs :
Cour enrobée, permettant un accès facile aux poids lourds et un stationnement optimisé.

Visibilité stratégique sur axe de circulation important à Guingamp.

Usage mixte possible : industriel, commercial, artisanal, logistique ou bureaux

Fort potentiel locatif découplé, garantissant un revenu immédiat et un investissement sécurisé

Espace modulable adapté aux besoins d'une entreprise moderne en pleine croissance

En résumé :
Cet ensemble immobilier récent et polyvalent se distingue par sa superficie exceptionnelle, ses installations de qualité et son emplacement stratégique. Il répond parfaitement aux besoins des industriels, artisans, logisticiens ou investisseurs souhaitant sécuriser un actif à fort rendement dans une zone dynamique de l'agglomération guingampaise.

Ne manquez pas cette chance unique de vous positionner au cœur de l'économie locale avec un bien prêt à être exploité ou loué. Contactez moi rapidement pour organiser une visite ou obtenir plus d'informations.

Les honoraires d'agence sont à la charge de l'acquéreur, soit 6,25% TTC du prix hors honoraires.
Les informations sur les risques auxquels ce bien est exposé sont disponibles sur le site Géorisques : www. georisques. gouv. fr.

Réseau Immobilier CAPIFRANCE - Votre agent commercial (RSAC N°888 663 200 - Greffe de RENNES) Tatiana LACOSTE Entrepreneur Individuel [Coordonnées masquées] - Réf.930508
Voir plus

Référence: 340932931470
DPE
A
B
C
D
E
F
G
GES
A
B
C
D
E
F
G

Prêt immobilier

Vous souhaitez connaître votre capacité d’emprunt et trouver le meilleur crédit immobilier ?
Réaliser une simulation gratuite

Commerce à GUINGAMP
Commerce à GUINGAMP
Commerce à GUINGAMP
Commerce à GUINGAMP
Commerce à GUINGAMP
Commerce à GUINGAMP
Commerce à GUINGAMP
Commerce à GUINGAMP
Commerce à GUINGAMP
Commerce à GUINGAMP
Commerce à GUINGAMP
Commerce à GUINGAMP
Commerce à GUINGAMP
Commerce à GUINGAMP
Commerce à GUINGAMP
Commerce à GUINGAMP
Commerce à GUINGAMP
Commerce à GUINGAMP
Commerce à GUINGAMP
Commerce à GUINGAMP
Commerce à GUINGAMP
Commerce à GUINGAMP
Commerce à GUINGAMP
Commerce à GUINGAMP
Commerce à GUINGAMP
Commerce à GUINGAMP
Commerce à GUINGAMP
Commerce à GUINGAMP
Ce site est protégé par reCAPTCHA la Politique de confidentialité et les Conditions d’utilisation de Google s’appliquent.
Obtenir un prêt immobilier au meilleur taux ?

En poursuivant votre navigation sans modifier vos paramètres, vous acceptez l'utilisation de cookies susceptibles de réaliser des statistiques de visite. Cliquez ici pour plus d'informations