A douai (59), appartement en résidence de type 3, 67m², 2 chambres, balcon et parking

— Douai 59500 —
158 500 €
67 m²
4 pièces
parkingascenseur

À Douai, découvrez cet appartement lumineux avec grand balcon et parking dans une résidence sécurisée.
Situé à proximité de toutes les commodités, au sein d'une belle résidence sécurisée en retrait de la chaussée, venez découvrir ce bel appartement sans vis-à-vis, doté d'un grand balcon et d'une place de parking privative.
L'accès à la résidence est entièrement sécurisé grâce à un portail d'entrée !
Un SAS d'entrée sécurise l'accès à l'immeuble !
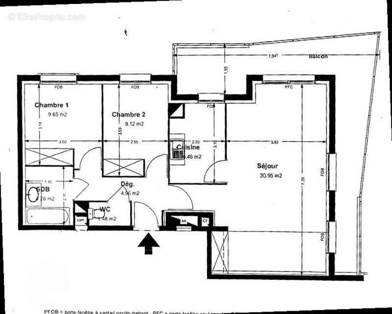
Situé au 4ème étage avec ascenseur, l'appartement sur un angle du bâtiment bénéficie d'une belle luminosité et se compose comme suit :
Un hall d'entrée qui distribue les différentes pièces:
- d'un côté, un salon-séjour spacieux de 30 m², avec accès au grand balcon, idéal pour profiter de l'extérieur, avec à coté la cuisine aménagée qui peut facilement être ouverte sur le séjour pour encore plus d'espace.
-De l'autre, les deux chambres sur parquet avec penderie intégrée, la salle de bain et les toilettes séparées!
Les menuiseries sont en double vitrage PVC avec volets, le chauffage est au gaz et collectif avec thermostat d'ambiance compris dans les charges avec l'eau.
Vous apprécierez :
- Ses belles prestations
- Sa luminosité
- Son grand balcon sans vis à vis
- Son environnement au calme

Un bien à visiter sans tarder !

Nombre de lots de la copropriété : 59, Montant moyen annuel de la quote-part de charges (budget prévisionnel)(CHAUFFAGE+ EAU + COPROPO) : 3000€ soit 250€ par mois. Les honoraires sont à la charge du vendeur.
Les informations sur les risques auxquels ce bien est exposé sont disponibles sur le site Géorisques : www. georisques. gouv. fr.

Réseau Immobilier CAPIFRANCE - Votre agent commercial (RSAC N°384 173 555 - Greffe de DOUAI) Serge BARGIACCHI Entrepreneur Individuel [Coordonnées masquées] - Réf.930135
Voir plus

Référence: 340939577144
Bien en copropriété. Nombre de lots : 59. Charges de copropriété : 250 €.
Honoraires à la charge du vendeur.
DPE
A
B
C
D
E
F
G
GES
A
B
C
D
E
F
G

Prêt immobilier

Vous souhaitez connaître votre capacité d’emprunt et trouver le meilleur crédit immobilier ?
Réaliser une simulation gratuite

Appartement à DOUAI
Appartement à DOUAI
Appartement à DOUAI
Appartement à DOUAI
Appartement à DOUAI
Appartement à DOUAI
Appartement à DOUAI
Appartement à DOUAI
Appartement à DOUAI
Appartement à DOUAI
Appartement à DOUAI
Appartement à DOUAI
Appartement à DOUAI
Ce site est protégé par reCAPTCHA la Politique de confidentialité et les Conditions d’utilisation de Google s’appliquent.
Obtenir un prêt immobilier au meilleur taux ?

En poursuivant votre navigation sans modifier vos paramètres, vous acceptez l'utilisation de cookies susceptibles de réaliser des statistiques de visite. Cliquez ici pour plus d'informations