Bénéficiez des services de nos partenaires locaux soigneusement sélectionnés
pour vous accompagner dans votre parcours d'achat immobilier

Appartement 83m² à montpellier

— Montpellier 34000 —
299 000 €
83 m²
4 pièces

Nos partenaires locaux
Vous aimez le charme de l'ancien, les biens de caractère, les appartements en dernier étage,...? Vous recherchez un appartement avec du potentiel dans l'écusson ?

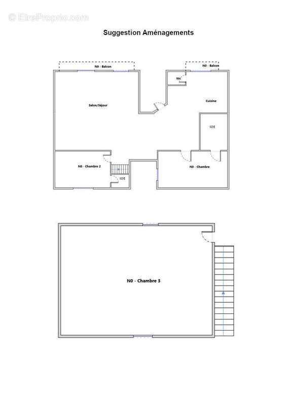
À quelques minutes du tramway Peyrou-Arc de Triomphe (ligne 4), en vente à Montpellier (34000), venez visiter cet appartement de 4 pièces de 83 m².
Il profite d'une vue dégagée et est orienté au sud-ouest.
Il est au 3e et dernier étage d'un petit immeuble en parfait état.
Il se situe dans le centre historique de Montpellier, à proximité de toutes les commodités (tram, commerce, facultés), de la Comédie et du Peyrou.

Il est composé de : cuisine, séjour, salon, 3 chambres dont une traversante en duplex, wc indépendant, salle d'eau. (Possibilité de créer une seconde salle d'eau).

Cet appartement atypique de 83m2 nécessite un rafraichissement intérieur. Les fenêtres sont récentes.

De nombreux travaux dans la copropriété ont été réalisé: ravalement de la façade, peinture des parties communes, révision de la toiture.

Pour toutes questions contactez Vincent Coudé au [Coordonnées masquées] (RSAC 814487815), spécialiste transaction RP et investissement locatif des quartiers Ecusson, Beaux Arts, Boutonnet, Arceaux, Aiguelongue, Les Aubes, Richter, Port Marianne, Antigone, Hôpitaux - Facultés, La Lironde, Alco, Chateau d'O, Malbosc, ...

Chers confrères et consoeurs de l'immobilier, si vous avez des acquéreurs qualifiés je travaille en inter-agences.

#ecusson #colocation #locationmeublee #lmnp #deficitfoncier

Honoraires à la charge du vendeur. Dans une copropriété de 10 lots. Quote-part moyenne du budget prévisionnel 1 300 €/an. Aucune procédure n'est en cours. Classe énergie C, Classe climat C Montant moyen estimé des dépenses annuelles d'énergie pour un usage standard, établi à partir des prix de l'énergie de l'année 2021 : entre 770.00 et 1090.00 €. Les informations sur les risques auxquels ce bien est exposé sont disponibles sur le site Géorisques : georisques.gouv.fr.

Votre conseiller Réseau ImmoForfait : Vincent COUDÉ
Agent commercial (Entrepreneur individuel à responsabilité limitée)
RSAC 814 487 815 RSAC Montpellier
RCP Serenis ACI03146
Voir plus

Référence: VA17207-IMMOFORFAIT
Bien en copropriété. Nombre de lots : 10. Charges de copropriété : 1300 €.
Honoraires à la charge du vendeur.
Barème des honoraires
DPE
A
B
C
D
E
F
G
GES
A
B
C
D
E
F
G

Prêt immobilier

Vous souhaitez connaître votre capacité d’emprunt et trouver le meilleur crédit immobilier ?
Réaliser une simulation gratuite

Appartement à MONTPELLIER
Appartement à MONTPELLIER
Appartement à MONTPELLIER
Appartement à MONTPELLIER
Appartement à MONTPELLIER
Appartement à MONTPELLIER
Appartement à MONTPELLIER
Appartement à MONTPELLIER
Ce site est protégé par reCAPTCHA la Politique de confidentialité et les Conditions d’utilisation de Google s’appliquent.
Obtenir un prêt immobilier au meilleur taux ?

En poursuivant votre navigation sans modifier vos paramètres, vous acceptez l'utilisation de cookies susceptibles de réaliser des statistiques de visite. Cliquez ici pour plus d'informations