Bénéficiez des services de nos partenaires locaux soigneusement sélectionnés
pour vous accompagner dans votre parcours d'achat immobilier

Terrain risoul

— Risoul 05600 —
123 000 €
751 m²
jardin

Nos partenaires locaux
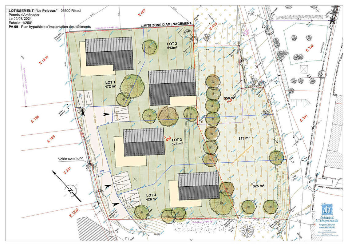
Terrain parcelle de 751m² dont 426m² constructible Le terrain sera vendu totalement viabilisé (électricité, eau potable, tout à l'égoût, télécom) avec route d'accès du lotissement commune Permis de construire à déposer par l'acquéreur ! Libre constructeur Au coeur du village de RIsoul, à quelques minutes de l'arrêt navette gratuite accès stations de ski Risoul/10mn accès station en voiture. A quelques minutes en voiture de Guillestre et ses commerces. Belle vue sur les montagnes et la vallée !
Voir plus

Référence: 28541
Honoraires à la charge du vendeur.
Barème des honoraires

Prêt immobilier

Vous souhaitez connaître votre capacité d’emprunt et trouver le meilleur crédit immobilier ?
Réaliser une simulation gratuite

Terrain à RISOUL
Terrain à RISOUL
Ce site est protégé par reCAPTCHA la Politique de confidentialité et les Conditions d’utilisation de Google s’appliquent.
Obtenir un prêt immobilier au meilleur taux ?

En poursuivant votre navigation sans modifier vos paramètres, vous acceptez l'utilisation de cookies susceptibles de réaliser des statistiques de visite. Cliquez ici pour plus d'informations