Bénéficiez des services de nos partenaires locaux soigneusement sélectionnés
pour vous accompagner dans votre parcours d'achat immobilier

Voir tous les partenaires locaux

Duplex 2 pièces de 58 m² - république beaux arts

— Lille 59000 —
323 000 €
58 m²
3 pièces

Nos partenaires locaux
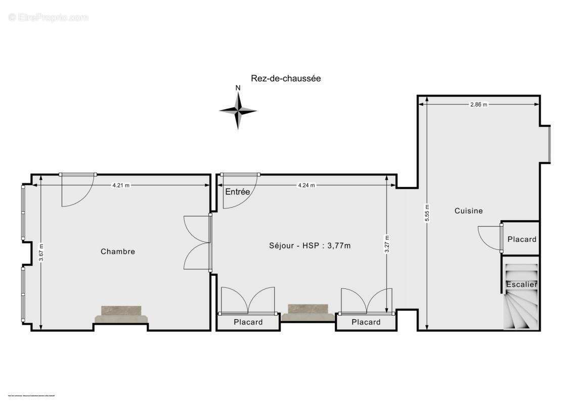
Liberkeys vous propose ce duplex plein de charme de 58,31 m² loi Carrez et 86,46 m² au sol, situé rue Jean Bart, à seulement 6 minutes à pied du parc Jean-Baptiste Lebas, 7 minutes du métro République Beaux-Arts, et à proximité immédiate de tous les commerces de la rue Solférino. Une adresse recherchée, vivante et pratique au quotidien.

L'appartement se trouve au rez-de-chaussée d'une petite copropriété bien tenue, avec de faibles charges de 109 € par mois.

Dès l'entrée, vous découvrez une belle pièce de vie qui rassemble salon et salle à manger pour un total d'environ 30 m², sublimée par une hauteur sous plafond généreuse et tout le charme de l'ancien : moulures, staf, parquet d'époque, luminaires stylisés…

Cet espace généreux permet très facilement de créer une seconde chambre indépendante, sans altérer la qualité de vie. Une configuration idéale si vous cherchez un véritable 3 pièces ou un appartement modulable selon vos besoins.

La cuisine ouverte équipée, spacieuse (14 m²), prolonge naturellement l'espace de vie et s'intègre parfaitement à l'esprit du lieu.

À l'étage, vous trouverez une salle de bains avec baignoire (5 m²) ainsi qu'une chambre dont la hauteur a été intelligemment exploitée grâce à une mezzanine accueillant un dressing confortable (5 m² au sol). L'espace nuit, cosy et fonctionnel, offre une vraie séparation des volumes.

Pour compléter l'ensemble : une grande cave privative de 14 m², très pratique pour du stockage ou pour créer un espace complémentaire type atelier ou rangement optimisé.

L'appartement est en bon état général et convient aussi bien à une résidence principale modulable en 2 ou 3 pièces, qu'à un investissement locatif, y compris en courte durée, grâce à sa configuration flexible et sa localisation au cœur de Lille.

Charges de copropriété : 109 € / mois
Taxe foncière: 770 €

Ce bien vous plaît ? Pensez à consulter la visite virtuelle et contactez moi directement votre conseiller. Lo Certo Sébastien, agent commercial immatriculé au RSAC de Lille sous le numéro 837791896. Référence annonce : DOM25060. Date de réalisation du diagnostic : 26/08/2025. Les honoraires sont à la charge du vendeur.
Voir plus

Référence: DOM25060
Honoraires à la charge du vendeur.
DPE
A
B
C
D
E
F
G
GES
A
B
C
D
E
F
G

Prêt immobilier

Vous souhaitez connaître votre capacité d’emprunt et trouver le meilleur crédit immobilier ?
Réaliser une simulation gratuite

Appartement à LILLE
Appartement à LILLE
Appartement à LILLE
Appartement à LILLE
Appartement à LILLE
Appartement à LILLE
Appartement à LILLE
Appartement à LILLE
Appartement à LILLE
Appartement à LILLE
Appartement à LILLE
Ce site est protégé par reCAPTCHA la Politique de confidentialité et les Conditions d’utilisation de Google s’appliquent.
Obtenir un prêt immobilier au meilleur taux ?

En poursuivant votre navigation sans modifier vos paramètres, vous acceptez l'utilisation de cookies susceptibles de réaliser des statistiques de visite. Cliquez ici pour plus d'informations