Appartement

— Chateauneuf-Grasse 06740 —
285 000 €
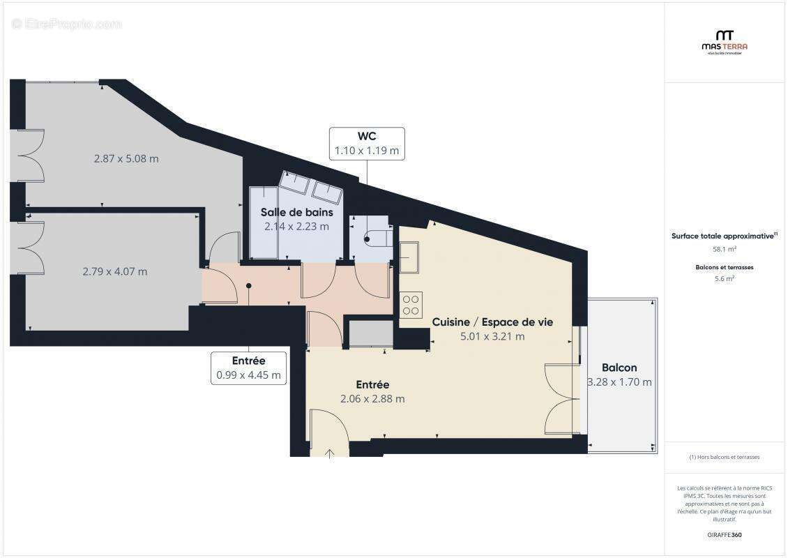
60 m²
3 pièces
parkingbalcon/terrasseascenseur

EXCLUSIVITÉ MAS TERRA IMMOBILIER, DERNIER ÉTAGE AVEC TERRASSE ET VUE DÉGAGÉE
À seulement quelques minutes à pied de la célèbre Place des Pins et de ses commerces de qualité, découvrez ce beau 3 pièces traversant de 60 m², situé au dernier étage d'une résidence récente (2021), avec commodités au pied de l'immeuble.
Ce bien se compose d'une pièce de vie lumineuse avec séjour et cuisine US ouverte, donnant accès à une terrasse exposée sud, offrant une vue dégagée.
Côté nuit, vous trouverez 2 chambres, une salle de bains, un WC.
SES POINTS POSITIFS : Appartement lumineux, dernier étage / résidence moderne et sécurisée / 2 places de stationnement en sous-sol et une cave
/ situation idéale : proche commerces, transports et centre-ville à pied.
N'hesitez pas à nous contacter au [Coordonnées masquées]
Les informations sur les risques auxquels ce bien est exposé sont disponibles sur le site Georisque : georisques. gouv. fr
Jean-Philippe Sue représentant de la SARL VISION MEDITERRANEEE IMMOBILIER MAGAGNOSC dont le siège social se situe 199 AVENUE AUGUSTE RENOIR, 06520 MAGAGNOSC, France - titulaire de la carte professionnelle CPI CPI [Coordonnées masquées]0 001 445 - CCI de NICE COTE DAZUR le 10/09/2024 - immatriculée au RCS de GRASSE sous le n°501041404 - immatriculée au Registre Spécial des Agents Commerciaux du Tribunal de Commerce de Grasse sous le n°501041404.
Siège social du mandant : effiCity, 48 avenue de Villiers - 75017 PARIS - Société par Actions Simplifiée, société au capital de 132 373,05 euros, immatriculée au RCS Paris 497 617 746 et titulaire de la Carte professionnelle CPI 75[Coordonnées masquées]02 025 - CCI Paris IDF - Caisse de Garantie : GALIAN Assurances 89 rue de la Boétie 75008 Paris
Voir plus

Référence: 198145
Bien en copropriété. Nombre de lots : 138. Charges de copropriété : 155 €.
Honoraires à la charge du vendeur.
Barème des honoraires
DPE
A
B
C
D
E
F
G
GES
A
B
C
D
E
F
G

Prêt immobilier

Vous souhaitez connaître votre capacité d’emprunt et trouver le meilleur crédit immobilier ?
Réaliser une simulation gratuite

Appartement à CHATEAUNEUF-GRASSE
Appartement à CHATEAUNEUF-GRASSE
Appartement à CHATEAUNEUF-GRASSE
Appartement à CHATEAUNEUF-GRASSE
Appartement à CHATEAUNEUF-GRASSE
Appartement à CHATEAUNEUF-GRASSE
Appartement à CHATEAUNEUF-GRASSE
Ce site est protégé par reCAPTCHA la Politique de confidentialité et les Conditions d’utilisation de Google s’appliquent.
Obtenir un prêt immobilier au meilleur taux ?

En poursuivant votre navigation sans modifier vos paramètres, vous acceptez l'utilisation de cookies susceptibles de réaliser des statistiques de visite. Cliquez ici pour plus d'informations