Bénéficiez des services de nos partenaires locaux soigneusement sélectionnés
pour vous accompagner dans votre parcours d'achat immobilier

Menton - val de gorbio - appartement trois pièces

— Menton 06500 —
280 000 €
59 m²
3 pièces
parkingbalcon/terrasse

Nos partenaires locaux
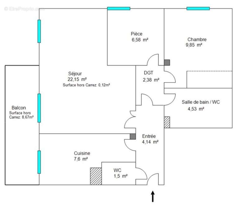
Venez découvrir ce trois pièces situé dans le quartier du Val de Gorbio à Menton dans un secteur très calme à quelques minutes de toutes les commodités.
Vous serez séduit par une petite copropriété de la fin des années 90, en très bon état.
L'appartement se trouve au 1er étage, il est complété d'une cave et d'un parking en rez de chaussée.
Le bien qui bénéficie d'une belle luminosité notamment sur le séjour et sa terrasse, mérite un petit rafraichissement pour délivrer tout son potentiel.
La cuisine séparée peut être ouverte sur le séjour pour un espace de vie très confortable.
Deux chambres (dont une petite) complètent cet appartement.
Une salle de bains avec toilette, et un WC séparé finissent de rendre ce bien complet.
Possibilité d'un second parking en supplément.
A voir sans tarder
Voir plus

Référence: 86443964
Barème des honoraires
DPE
A
B
C
D
E
F
G
GES
A
B
C
D
E
F
G

Prêt immobilier

Vous souhaitez connaître votre capacité d’emprunt et trouver le meilleur crédit immobilier ?
Réaliser une simulation gratuite

Appartement à MENTON
Appartement à MENTON
Appartement à MENTON
Appartement à MENTON
Appartement à MENTON
Appartement à MENTON
Appartement à MENTON
Appartement à MENTON
Appartement à MENTON
Appartement à MENTON
Appartement à MENTON
Appartement à MENTON
Appartement à MENTON
Appartement à MENTON
Appartement à MENTON
Ce site est protégé par reCAPTCHA la Politique de confidentialité et les Conditions d’utilisation de Google s’appliquent.
Obtenir un prêt immobilier au meilleur taux ?

En poursuivant votre navigation sans modifier vos paramètres, vous acceptez l'utilisation de cookies susceptibles de réaliser des statistiques de visite. Cliquez ici pour plus d'informations