Maison à rénover au calme absolu à saint cy r au mont d'or

— Saint-Cyr-Au-Mont-D'or 69450 —
1 045 000 €
154 m² / 1 815 m²
6 pièces
parkingbalcon/terrassejardin

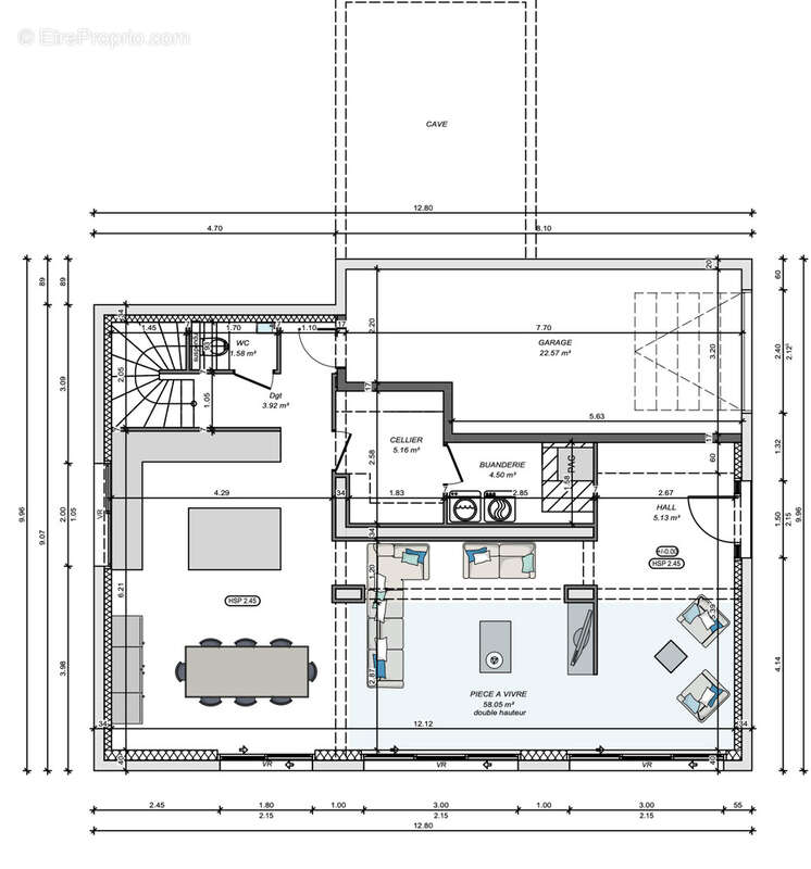
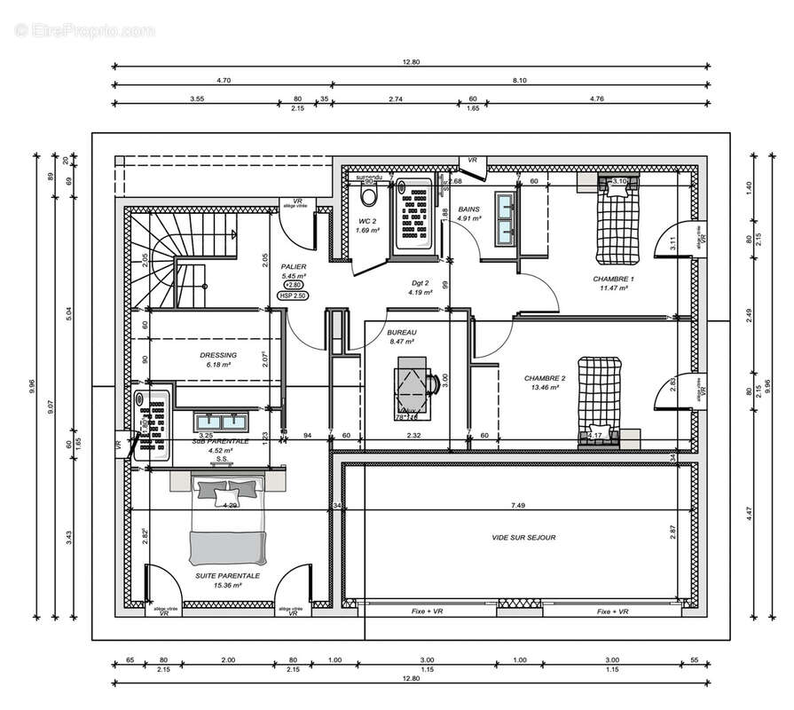
En EXCLUSIVITE chez Immobilière de Salvagny : Maison d'architecte des années 80, A RENOVER, édifiée sur un magnifique terrain de 1 826 m2 au CALME absolu et en limite de ZONE NATURELLE.
Située au sein d'un petit lotissement, la maison est principalement orientée Sud vous permettant ainsi de profiter d'un maximum de lumière et d'une superbe vue sur le jardin. Cette maison offre plusieurs possibilités en termes de rénovation et le terrain est facilement piscinable. Les bus et les commerces de proximité (village de Collonges) sont accessibles à pied.
Avec notre partenaire ARLOGIS rénovation, nous vous proposons un projet complet de rénovation de la maison existante avec des prestations haut de gamme (menuiseries aluminium, isolation avec de fortes performances au confort d'été, pompe à chaleur air/eau, plancher chauffant raffraichissant. Sanitaires de qualité, carrelage grand format rectfié, parquet contrecollée... etc.). Objectif un DPE en A avec des performances équivalent à la norme RE2020 de la maison neuve. Projet soumis aux aides à la rénovation avec Ma Prime Rénov et ECO PTZ.
Pour plus de renseignements et visites : Sylvie MACHADO - Immobilière de Salvagny by Pierrefeu Immobilier
Implantée depuis 2015, Immobilière de Salvagny by Pierrefeu Immobilier est une agence experte dans les domaines suivants : VENTE, ACHAT, LOCATION, GESTION et SYNDIC DE COPROPRIETE. La dimension humaine est au coeur de notre action commerciale. Nous partageons des valeurs fondées autour de la PROXIMITE, de l’EFFICACITE et de la CONVIVIALITE. Parce que chaque projet de vie est unique, nous vous offrons un service personnalisé pour être plus proche de vos attentes.
Voir plus

Référence: 604
Bien en copropriété. Charges de copropriété : 160 €.
Honoraires à la charge du vendeur.
Barème des honoraires
DPE
A
B
C
D
E
F
G
GES
A
B
C
D
E
F
G

Prêt immobilier

Vous souhaitez connaître votre capacité d’emprunt et trouver le meilleur crédit immobilier ?
Réaliser une simulation gratuite

Maison à SAINT-CYR-AU-MONT-D'OR
Maison à SAINT-CYR-AU-MONT-D'OR
Maison à SAINT-CYR-AU-MONT-D'OR
Maison à SAINT-CYR-AU-MONT-D'OR
Maison à SAINT-CYR-AU-MONT-D'OR
Maison à SAINT-CYR-AU-MONT-D'OR
Maison à SAINT-CYR-AU-MONT-D'OR
Ce site est protégé par reCAPTCHA la Politique de confidentialité et les Conditions d’utilisation de Google s’appliquent.
Obtenir un prêt immobilier au meilleur taux ?

En poursuivant votre navigation sans modifier vos paramètres, vous acceptez l'utilisation de cookies susceptibles de réaliser des statistiques de visite. Cliquez ici pour plus d'informations