Bénéficiez des services de nos partenaires locaux soigneusement sélectionnés
pour vous accompagner dans votre parcours d'achat immobilier

Investissement locatif – carquefou - résidence cap west - carquefou maubreuil- 6% de rentabilité.

— Carquefou 44470 —
95 000 €
40 m²
2 pièces
parking

Nos partenaires locaux
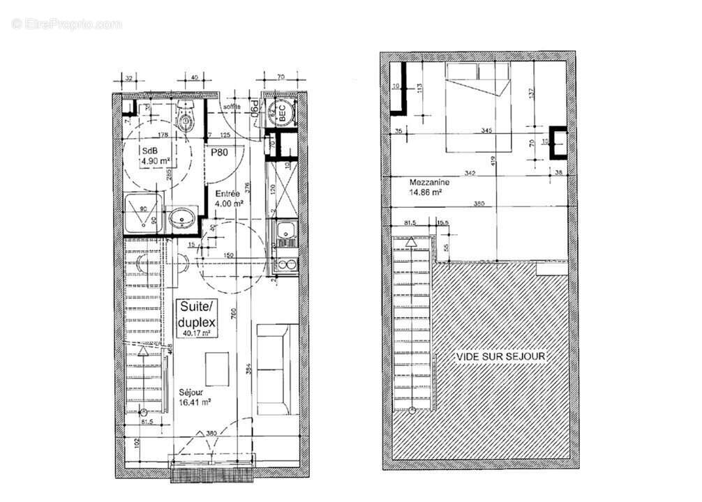
Réalisez un investissement locatif sécurisé en résidence de tourisme sans souci de gestion : le produit idéal pour vous constituer un patrimoine immobilier tout en bénéficiant d'une rentabilité sécurisée par des loyers stables, dès l'acquisition. • Loyer annuel HT : 5 731 € • Rentabilité : 6% • Gestionnaire : Cap West Vous bénéficiez du statut fiscal LMNP amortissable, permettant une exonération d'impôt sur vos revenus locatifs. Le bien est exploité par un gestionnaire professionnel Cap West, engagé par un bail commercial, vous assurant le versement des loyers dès l'acquisition, que le logement soit loué ou non. Description du bien : Ce T2 en duplex situé au 3ème étage offre une disposition optimisée avec une entrée dotée de placards, une kitchenette, un séjour prolongé par un balcon, une salle d'eau avec wc, une chambre en mezzanine. À l'extérieur : un stationnement privatif. Aucune condition particulière d'occupation pour le propriétaire. À propos de la résidence : La résidence Cap West Maubreuil est une résidence de tourisme 1 étoile, idéalement située à Carquefou (5 allée de Maubreuil, 44470), en lisière de forêt et au calme. À seulement 8 km de Nantes, elle se trouve à 12 km de la gare de Nantes et à 22 km de l'aéroport Nantes-Atlantique, proche d'un axe autoroutier (A11/E6 sortie Carquefou centre) et desservie par les lignes 85 bus et 1 tramway Haluchère-Batignolles, ce qui constitue un atout majeur pour son attractivité. Cette résidence compte 111 appartements meublés, du studio au T3, destinés à des séjours de courte, moyenne ou longue durée. Elle accueille une clientèle de tourisme et d'affaires, avec des prestations para-hôtelières : accueil, parking extérieur privé, laverie, salle de sport, vidéosurveillance, sécurité, Wi-Fi, accès PMR À propos du gestionnaire occupant : Cap West, filiale du groupe West Finance (créé en 2008), est spécialisé dans la gestion de résidences d'affaires et de tourisme. Il gère 31 résidences, principalement dans l'Ouest et en Île-de-France, et bénéficie de 25 ans d'expérience dans l'immobilier hôtelier. Sa fiabilité, son expertise dans le segment LMNP et la qualité de ses emplacements en font un gestionnaire de référence. Les diagnostics sont en cours de réalisation. Le coin du LMNP - Clément Courant agent basé à NEUILLY SUR SEINE - [Coordonnées masquées] - Plus d'informations sur www.lecoindulmnp.fr réf. 26308 Bien soumis au statut juridique de la Copropriété. Charges annuelles de copropriété (Montant moyen annuel quote-part du budget prévisionnel vendeur) : 1 412 €. Pas de procédure en cours. Prix TTC et Honoraires à charge vendeur TTC
Voir plus

Référence: 26308
Bien en copropriété. Charges de copropriété : 1412 €.
Honoraires à la charge du vendeur.
Barème des honoraires

Prêt immobilier

Vous souhaitez connaître votre capacité d’emprunt et trouver le meilleur crédit immobilier ?
Réaliser une simulation gratuite

Appartement à CARQUEFOU
Appartement à CARQUEFOU
Appartement à CARQUEFOU
Ce site est protégé par reCAPTCHA la Politique de confidentialité et les Conditions d’utilisation de Google s’appliquent.
Obtenir un prêt immobilier au meilleur taux ?

En poursuivant votre navigation sans modifier vos paramètres, vous acceptez l'utilisation de cookies susceptibles de réaliser des statistiques de visite. Cliquez ici pour plus d'informations