Neuf - appartement tours christ roi 3 pièce(s) 58.60 m2 + parking

— Tours 37100 —
229 000 €
59 m²
3 pièces
parkingbalcon/terrasseascenseur

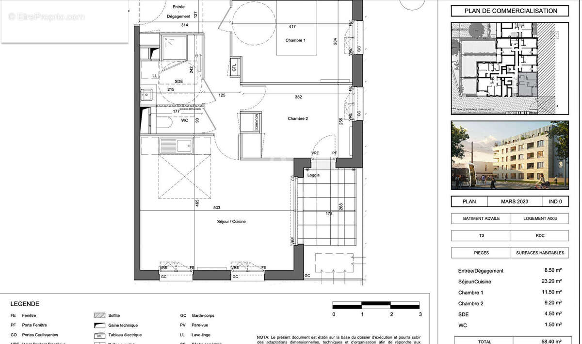
Appartement T3 neuf - 58,6 m² - Loggia- Parking - Idéal Profession Libérale NOUVEAUTÉ EMPLACEMENT DE CHOIX - FRAIS DE NOTAIRE OFFERT Situé rue Pinguet Guinon, à proximité immédiate de l'école Christ Roi et au coeur d'un quartier vivant et bien desservi, cet appartement neuf, jamais habité, en rez-de-chaussée d'une résidence récente offre un emplacement idéal pour une profession libérale (médecin, infirmier, podologue, orthophoniste, psychologue etc. Grâce à son accès de plain-pied, sa visibilité et la facilité de stationnement dans le secteur, les lieux se prêtent parfaitement à une activité recevant du public, sous réserve de l'accord de la copropriété. Le bien se compose de : Une entrée avec rangements, Une pièce de vie lumineuse avec cuisine meublée et équipée, Une loggia de 4,7 m², idéale pour créer un espace d'attente ou une zone de pause, Un WC séparé, Deux chambres (possibilité bureau, salle de consultation, salle de soins), Une salle d'eau moderne. En sous-sol, vous disposez d'un emplacement de parking privatif. Les + : Neuf jamais habité - FRAIS DE NOTAIRE OFFERT Rez-de-chaussée, accès direct Adapté à une activité libérale ou paramédicale Cuisine équipée Balcon-loggia Parking en sous-sol Résidence neuve, sécurisée Libre immédiatement Un bien polyvalent, parfait en habitation classique ou pour une installation professionnelle dans un quartier recherché. A découvrir sans tarder ! Copropriété de 90 lots - dont 50 lots habitation. (Pas de procédure en cours). Charges annuelles : 930 euros.
Voir plus

Référence: 587
Bien en copropriété. Nombre de lots : 90. Charges de copropriété : 930 €.
Honoraires à la charge du vendeur.
Barème des honoraires
DPE
A
B
C
D
E
F
G
GES
A
B
C
D
E
F
G

Prêt immobilier

Vous souhaitez connaître votre capacité d’emprunt et trouver le meilleur crédit immobilier ?
Réaliser une simulation gratuite

Appartement à TOURS
Appartement à TOURS
Appartement à TOURS
Appartement à TOURS
Appartement à TOURS
Appartement à TOURS
Appartement à TOURS
Appartement à TOURS
Appartement à TOURS
Appartement à TOURS
Appartement à TOURS
Appartement à TOURS
Ce site est protégé par reCAPTCHA la Politique de confidentialité et les Conditions d’utilisation de Google s’appliquent.
Obtenir un prêt immobilier au meilleur taux ?

En poursuivant votre navigation sans modifier vos paramètres, vous acceptez l'utilisation de cookies susceptibles de réaliser des statistiques de visite. Cliquez ici pour plus d'informations