Bénéficiez des services de nos partenaires locaux soigneusement sélectionnés
pour vous accompagner dans votre parcours d'achat immobilier

Roubaix: immeuble d’activités / bureaux – 1 670 m² loué –commercial, industriel, coworking, studio, ateliers

— Roubaix 59100 —
399 000 €
1 679 m²
15 pièces

Nos partenaires locaux
Retour à la vente – Dossier sérieux uniquement à l'étude.

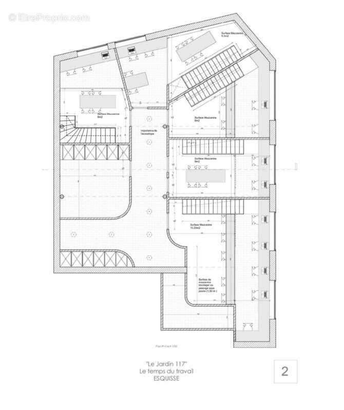
Immeuble à usage professionnel situé à Roubaix, dans un bâtiment en copropriété classé au patrimoine industriel.

Déjà réhabilité, le bien offre de multiples possibilités : activité industrielle, tertiaire, Ateliers, stockage, Studio ou coworking.

Caractéristiques principales :

- Surface : 1 670 m² (3 niveaux + sous-sol)
- 13 bureaux de 10 à 55 m²
- Plateau de 200 m² à aménager en open-space ou plusieurs unités de bureaux
- 300 m² de stockage au RDC - accès déchargement
- Accès camion / portes sectionnelles
- 500 m² en sous-sol avec monte-charge fonctionnel
- Espaces partagés : cuisine, coin détente, coworking
- RJ45, chauffage électrique individuel,

Informations financières :

- Revenus actuels : 7 518 € CC / mois (baux précaires avec possibilité de transformer en baux commerciaux)
- Prévisionnel loyers bureaux: 9000€ CC
- Taxe foncière : 14 129 €
- Charges copropriété : 365 €/mois (Eau Chaude/Froide, assurance...)
- Électricité/chauffage individuelle : env. 1 200 €/mois

Dossier complet sur demande
- DPE : 278 (D) GES : 7 (C)
- Prix : 399 000 € FAI (honoraires inclus à la charge de l’acquéreur)
- georisques.gouv.fr
Voir plus
DPE
A
B
C
D
E
F
G
GES
A
B
C
D
E
F
G

Prêt immobilier

Vous souhaitez connaître votre capacité d’emprunt et trouver le meilleur crédit immobilier ?
Réaliser une simulation gratuite

Appartement à ROUBAIX
Appartement à ROUBAIX
Appartement à ROUBAIX
Appartement à ROUBAIX
Appartement à ROUBAIX
Appartement à ROUBAIX
Appartement à ROUBAIX
Appartement à ROUBAIX
Appartement à ROUBAIX
Appartement à ROUBAIX
Appartement à ROUBAIX
Appartement à ROUBAIX
Appartement à ROUBAIX
Ce site est protégé par reCAPTCHA la Politique de confidentialité et les Conditions d’utilisation de Google s’appliquent.
Obtenir un prêt immobilier au meilleur taux ?

En poursuivant votre navigation sans modifier vos paramètres, vous acceptez l'utilisation de cookies susceptibles de réaliser des statistiques de visite. Cliquez ici pour plus d'informations