Bénéficiez des services de nos partenaires locaux soigneusement sélectionnés
pour vous accompagner dans votre parcours d'achat immobilier

Appartement 114m² à chatelaillon-plage

— Chatelaillon-Plage 17340 —
966 500 €
114 m²
4 pièces
parkingbalcon/terrasseascenseur

Nos partenaires locaux
Iad France - Pierre Magerand ([Coordonnées masquées]) vous propose : Appartement T4 avec balcon et vue océan à Châtelaillon-Plage.

Située boulevard de la Mer, au cOEur d'un environnement côtier exceptionnel, la résidence contemporaine Villa Marine conjugue élégance architecturale et confort de vie. Face à l'océan, à proximité immédiate de la plage, des commerces, des transports, du marché couvert et des équipements de loisirs, cette adresse offre un cadre paisible et privilégié à seulement 10 minutes de La Rochelle. Disponible 2027.

Un appartement raffiné :
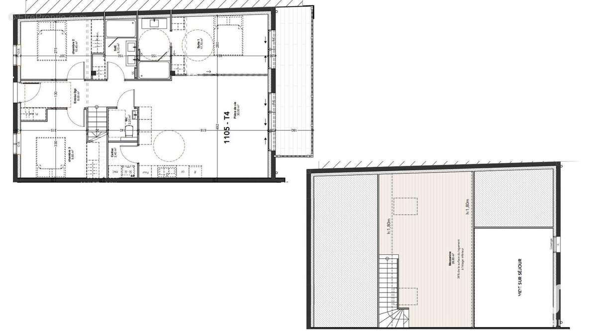
Situé au 1 er étage, cet appartement T4 de 114 m² environ habitables se prolonge par un balcon de 13 m² environ.

- Pièce de vie de 30 m² environ.
- Trois chambres confortables.
- Salles d'eau modernes.
- Une mezzanine de 29 m² environ.
- Annexes incluses : deux parkings extérieurs privatifs.

De belles prestations :
- Pompe à chaleur pour chauffage et eau chaude.
- Terrasses habillées de dalles sur plots, jardin engazonné.
- Résidence sécurisée avec contrôle d'accès, aménagements paysagers soignés et qualité architecturale haut de gamme.

L'art de vivre à Châtelaillon-Plage :
- Face à l'océan, sur la plus belle section du front de mer.
- À quelques minutes du marché couvert, des restaurants, du casino et du centre de thalassothérapie.
- Accès rapide à la gare SNCF (9 min à pied) et à La Rochelle (10 km).
- Environnement préservé, ambiance conviviale toute l'année.

N'hésitez pas à me contacter pour plus d'informations ou pour un accompagnement sur mesure.

Honoraires d'agence à la charge du vendeur. Bien non soumis au DPE. Les informations sur les risques auxquels ce bien est exposé sont disponibles sur le site Géorisques : www.georisques.gouv.fr. La présente annonce immobilière a été rédigée sous la responsabilité éditoriale de M. Pierre Magerand EI (ID 86098), mandataire indépendant en immobilier (sans détention de fonds), agent commercial de la SAS I@D France immatriculé au RSAC de Cusset sous le numéro 938729175, titulaire de la carte de démarchage immobilier pour le compte de la société I@D France SAS.
Retrouvez tous nos biens sur notre site internet. www.iadfrance.fr.
Informations LOI ALUR :
Honoraires charge vendeur. (gedeon_6727_32187503)
Voir plus

Référence: 1823666-4
Honoraires à la charge du vendeur.

Prêt immobilier

Vous souhaitez connaître votre capacité d’emprunt et trouver le meilleur crédit immobilier ?
Réaliser une simulation gratuite

Photo 1 - Appartement à CHATELAILLON-PLAGE
Photo 1
Photo 2 - Appartement à CHATELAILLON-PLAGE
Photo 2
Photo 3 - Appartement à CHATELAILLON-PLAGE
Photo 3
Photo 4 - Appartement à CHATELAILLON-PLAGE
Photo 4
Photo 5 - Appartement à CHATELAILLON-PLAGE
Photo 5
Photo 6 - Appartement à CHATELAILLON-PLAGE
Photo 6
Ce site est protégé par reCAPTCHA la Politique de confidentialité et les Conditions d’utilisation de Google s’appliquent.
Obtenir un prêt immobilier au meilleur taux ?

En poursuivant votre navigation sans modifier vos paramètres, vous acceptez l'utilisation de cookies susceptibles de réaliser des statistiques de visite. Cliquez ici pour plus d'informations