Bénéficiez des services de nos partenaires locaux soigneusement sélectionnés
pour vous accompagner dans votre parcours d'achat immobilier

Christophe michaudelle – exlusivite - capifrance vous propose proche de lizy sur ourcq à dhuisy : maison 4 chambres - 6 pièces -

— Lizy-Sur-Ourcq 77440 —
178 500 €
141 m² / 913 m²
6 pièces
parkingbalcon/terrassejardin

Nos partenaires locaux
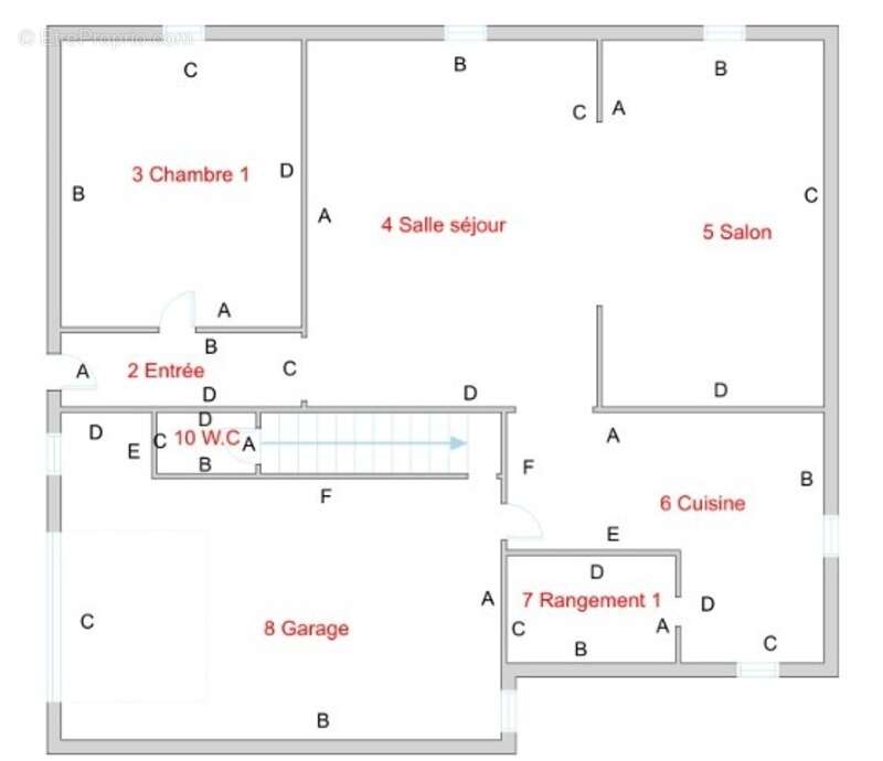
Christophe Michaudelle – EXLUSIVITE - CAPIFRANCE vous propose proche de LIZY SUR OURCQ à DHUISY : maison 4 chambres - 6 pièces - 141 m² - Terrasse et jardins - garage - pièce buanderie

Je vous propose cette charmante maison familiale, lumineuse et bien exposée (est ouest).
Des travaux sont à prévoir.
Fonctionnelle avec ses nombreux rangements et ses nombreuses grandes chambres. 5ème chambre possible.

Un VRAI COUP DE COEUR pour le charme et le potentiel de cette bâtisse.

Cette maison se compose :

Au RDC :
Un hall d'entrée – une pièce buanderie (13m² : chambre possible) - un double séjour avec insert bois - cuisine aménagée avec arrière cuisine et accès terrasse et jardin, également accès au grand garage

A mi étage :
1er WC séparé

Au 1er étage :
4 chambres dont 3 grandes chambres (dont une avec son espace mezzanine), un bureau, salle d'eau (douche, baignoire, lavabo et avec un second WC)
Greniers

Sous sol : une cave voutée (ancienne cuve à fioul présente)

Extérieur :
Jardin plat et clos avec abris
Garage (accès plain pied par l'extérieur)
Un 2d jardin 600m² environ non attenant

Vous êtes intéressés, vous avez besoin d'informations complémentaires ?
Contactez moi, je serai ravi de vous faire découvrir cette belle maison.

Autres informations :
Chaudière électrique
Fenêtre PVC double vitrage avec volet roulant électrique et moustiquaire
2 greniers
Accès transport à pied
Ecoles desservies par les bus scolaires (RPI)
A 10 km pôle médical et de la ligne P Lizy sur Ourcq accès Paris gare de l'est (48 min), commerces (boulangerie à 4 km)

A 40 kms du Val d'Europe / Gare TGV et RER A à 38 kms
A 48 kms de l'Aéroport de Roissy Charles de Gaulle
A 4 kms de l'autoroute A4
Les honoraires sont à la charge du vendeur.
Logement à consommation énergétique excessive : classe G
Les informations sur les risques auxquels ce bien est exposé sont disponibles sur le site Géorisques : www. georisques. gouv. fr.

Réseau Immobilier CAPIFRANCE - Votre agent commercial (RSAC N°807 514 039 - Greffe de MEAUX) Christophe MICHAUDELLE Entrepreneur Individuel à Responsabilité Limitée [Coordonnées masquées] - Réf.931070
Voir plus

Référence: 340930541051
Honoraires à la charge du vendeur.
DPE
A
B
C
D
E
F
G
GES
A
B
C
D
E
F
G

Prêt immobilier

Vous souhaitez connaître votre capacité d’emprunt et trouver le meilleur crédit immobilier ?
Réaliser une simulation gratuite

Maison à LIZY-SUR-OURCQ
Maison à LIZY-SUR-OURCQ
Maison à LIZY-SUR-OURCQ
Maison à LIZY-SUR-OURCQ
Maison à LIZY-SUR-OURCQ
Maison à LIZY-SUR-OURCQ
Maison à LIZY-SUR-OURCQ
Maison à LIZY-SUR-OURCQ
Maison à LIZY-SUR-OURCQ
Maison à LIZY-SUR-OURCQ
Maison à LIZY-SUR-OURCQ
Maison à LIZY-SUR-OURCQ
Maison à LIZY-SUR-OURCQ
Maison à LIZY-SUR-OURCQ
Maison à LIZY-SUR-OURCQ
Maison à LIZY-SUR-OURCQ
Maison à LIZY-SUR-OURCQ
Maison à LIZY-SUR-OURCQ
Maison à LIZY-SUR-OURCQ
Maison à LIZY-SUR-OURCQ
Maison à LIZY-SUR-OURCQ
Maison à LIZY-SUR-OURCQ
Maison à LIZY-SUR-OURCQ
Maison à LIZY-SUR-OURCQ
Maison à LIZY-SUR-OURCQ
Maison à LIZY-SUR-OURCQ
Maison à LIZY-SUR-OURCQ
Maison à LIZY-SUR-OURCQ
Maison à LIZY-SUR-OURCQ
Maison à LIZY-SUR-OURCQ
Maison à LIZY-SUR-OURCQ
Ce site est protégé par reCAPTCHA la Politique de confidentialité et les Conditions d’utilisation de Google s’appliquent.
Obtenir un prêt immobilier au meilleur taux ?

En poursuivant votre navigation sans modifier vos paramètres, vous acceptez l'utilisation de cookies susceptibles de réaliser des statistiques de visite. Cliquez ici pour plus d'informations