Bénéficiez des services de nos partenaires locaux soigneusement sélectionnés
pour vous accompagner dans votre parcours d'achat immobilier

Investissement locatif – bailly - romainvilliers – résidence center parcs villages nature paris - 6.61% de rentabilité

— Bailly-Romainvilliers 77700 —
255 000 €
62 m²
3 pièces

Nos partenaires locaux
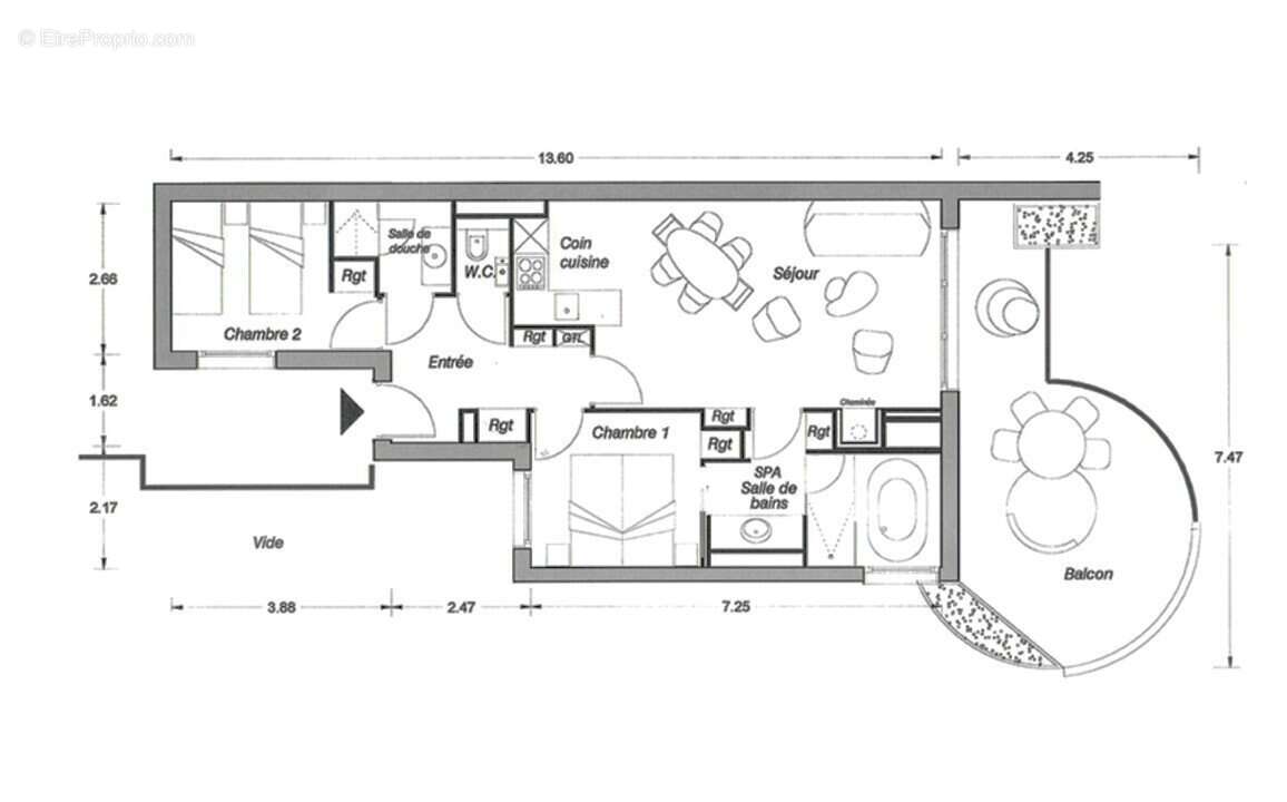
Réalisez un investissement locatif sécurisé, en résidence de tourisme sans souci de gestion : le produit idéal pour vous constituer un patrimoine immobilier tout en bénéficiant d'une rentabilité sécurisée par des loyers stables, dès l'acquisition. • Loyer annuel HT : 16 856 € • Rentabilité : 6,61 % • Gestionnaire : Center Parcs (Pierre Vacances) Vous bénéficiez du statut fiscal LMNP amortissable, permettant une exonération d'impôt sur vos revenus locatifs. Le bien est exploité par un gestionnaire professionnel Center Parcs (Pierre Vacances), engagé par un bail commercial, vous assurant le versement des loyers dès l'acquisition, que le logement soit loué ou non. Description du bien : Cet appartement T3 situé au 1er étage offre un agencement fonctionnel et agréable : une large entrée avec rangements, un séjour-cuisine de 26m2 donnant sur une terrasse de 20m², une chambre parentale ouvrant sur salle de bains Spa de 8,6m2, une seconde chambre avec rangement, une salle d'eau, un wc indépendant. À propos de la résidence : La résidence Villages Nature Paris est une résidence de tourisme, idéalement située à Bailly-Romainvilliers, à proximité de Disneyland Paris et du centre commercial Val d'Europe. Elle accueille une clientèle de loisirs et propose des hébergements meublés avec services para-hôteliers. Son emplacement à 10 minutes de la gare de Marne-la-Vallée–Chessy et à 30 minutes de Paris, proche des transports et des axes autoroutiers, lui confère une forte attractivité. L'établissement propose des prestations complètes : accueil, restauration, parc aquatique, spa, activités de loisirs, Wi-Fi, jardin, parking. La copropriété comprend 1 061 appartements et cottages. À propos du gestionnaire occupant : Center Parcs (Pierre Vacances) exploite 30 domaines en Europe, dont 7 en France, avec une expertise reconnue dans la gestion de résidences de tourisme et un engagement fort en faveur du développement durable. Le coin du LMNP - Maxence Vulpas agent basé à NEUILLY SUR SEINE - [Coordonnées masquées] - Plus d'informations sur [Coordonnées masquées] réf. 25309 Bien soumis au statut juridique de la Copropriété. Pas de procédure en cours. Prix TTC et Honoraires à charge vendeur TTC
Voir plus

Référence: 25309
Bien en copropriété.
Honoraires à la charge du vendeur.
Barème des honoraires
DPE
A
B
C
D
E
F
G
GES
A
B
C
D
E
F
G

Prêt immobilier

Vous souhaitez connaître votre capacité d’emprunt et trouver le meilleur crédit immobilier ?
Réaliser une simulation gratuite

Appartement à BAILLY-ROMAINVILLIERS
Appartement à BAILLY-ROMAINVILLIERS
Appartement à BAILLY-ROMAINVILLIERS
Appartement à BAILLY-ROMAINVILLIERS
Appartement à BAILLY-ROMAINVILLIERS
Appartement à BAILLY-ROMAINVILLIERS
Appartement à BAILLY-ROMAINVILLIERS
Appartement à BAILLY-ROMAINVILLIERS
Appartement à BAILLY-ROMAINVILLIERS
Appartement à BAILLY-ROMAINVILLIERS
Appartement à BAILLY-ROMAINVILLIERS
Appartement à BAILLY-ROMAINVILLIERS
Appartement à BAILLY-ROMAINVILLIERS
Appartement à BAILLY-ROMAINVILLIERS
Ce site est protégé par reCAPTCHA la Politique de confidentialité et les Conditions d’utilisation de Google s’appliquent.
Obtenir un prêt immobilier au meilleur taux ?

En poursuivant votre navigation sans modifier vos paramètres, vous acceptez l'utilisation de cookies susceptibles de réaliser des statistiques de visite. Cliquez ici pour plus d'informations