Bénéficiez des services de nos partenaires locaux soigneusement sélectionnés
pour vous accompagner dans votre parcours d'achat immobilier

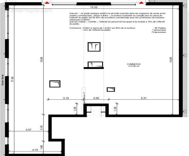
Commerce 212m² à saint-aubin-sur-mer

— Saint-Aubin-Sur-Mer 14750 —
398 800 €
212 m²

Nos partenaires locaux
TH2CT Grand Ouest vous présente une opportunité commerciale prémium.

Emplacement stratégique en entrée de ville, sur un rond-point très fréquenté, offrant une visibilité exceptionnelle..

Local commercial de 212 m² en pied d'immeuble d'une résidence neuve de standing, à seulement 500 m de la plage et du coeur de Saint-Aubin-sur-Mer.

Possibilité de division en 2 cellules.

Vitrine en angle offrant une large visibilité naturelle et un fort impact commercial.

3 places privatives incluses + stationnement public immédiat.

Idéal pour une enseigne recherchant un emplacement premium en zone littorale dynamique: services, santé, restauration légère, commerce

Disponibilité: 4eme T 2027

CONDITIONS FINANCIÈRES DE LA VENTE

Prix net vendeur: 376 300 € HT
Honoraires agence : 22 500 € HT charge acquéreur

? Renseignements & commercialisation :Matthieu Parisot – TH2CT Grand Ouest[Coordonnées masquées] / [Coordonnées masquées]

Honoraires inclus de 5.98% HT à la charge de l'acquéreur. Prix hors honoraires 376 300 € HT. Dans une copropriété de 59 lots. Aucune procédure n'est en cours. Non soumis au DPE. Les informations sur les risques auxquels ce bien est exposé sont disponibles sur le site Géorisques : georisques.gouv.fr.

Votre conseiller TH2 C&T : Matthieu PARISOT
Agent commercial (Entreprise individuelle)
Voir plus

Référence: VP535-TH2
Bien en copropriété. Nombre de lots : 59.
Honoraires d'agence de 5.98% à la charge de l'acquéreur
Barème des honoraires

Prêt immobilier

Vous souhaitez connaître votre capacité d’emprunt et trouver le meilleur crédit immobilier ?
Réaliser une simulation gratuite

Commerce à SAINT-AUBIN-SUR-MER
Commerce à SAINT-AUBIN-SUR-MER
Commerce à SAINT-AUBIN-SUR-MER
Commerce à SAINT-AUBIN-SUR-MER
Commerce à SAINT-AUBIN-SUR-MER
Commerce à SAINT-AUBIN-SUR-MER
Ce site est protégé par reCAPTCHA la Politique de confidentialité et les Conditions d’utilisation de Google s’appliquent.
Obtenir un prêt immobilier au meilleur taux ?

En poursuivant votre navigation sans modifier vos paramètres, vous acceptez l'utilisation de cookies susceptibles de réaliser des statistiques de visite. Cliquez ici pour plus d'informations