Bénéficiez des services de nos partenaires locaux soigneusement sélectionnés
pour vous accompagner dans votre parcours d'achat immobilier

Maison 145m² à villers-bocage

— Villers-Bocage 14310 —
345 000 €
145 m² / 650 m²
6 pièces
jardin

Nos partenaires locaux
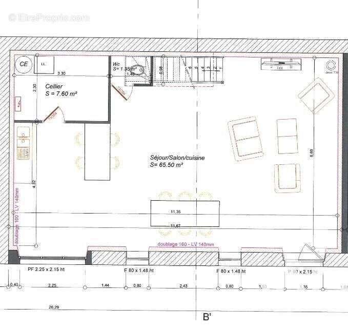
Iad France - Juliane Courgenouil vous propose : À seulement 5 km de Villers-Bocage, commune offrant commerces, écoles et services médicaux, découvrez cette maison en pierres qui sera entièrement rénovée.
Avec près de 145 m² habitables, le rez-de-chaussée propose une pièce de vie d'environ 70 m² ouverte sur une cuisine neuve, aménagée et équipée, idéale pour recevoir, ainsi qu'un cellier et un WC.
À l'étage, 4 chambres, une salle de bains neuve et un WC complètent l'ensemble.
Le terrain d'environ 650 m² offre un extérieur agréable pour profiter des beaux jours.
La rénovation, réalisée avec des matériaux de qualité, assure confort, performance et respect du cachet d'origine.
Une opportunité rare : contactez-moi pour une visite !

Honoraires d'agence à la charge du vendeur.
Information d'affichage énergétique sur ce bien : classe ENERGIE C indice 142 et classe CLIMAT A indice 4. Les informations sur les risques auxquels ce bien est exposé, y compris l'obligation légale de débroussaillement, sont disponibles sur le site Géorisques : http://www.georisques.gouv.fr.
La présente annonce immobilière a été rédigée sous la responsabilité éditoriale de Mme Juliane Courgenouil mandataire indépendant en immobilier (sans détention de fonds), agent commercial de la SAS I@D France immatriculé au RSAC de Caen sous le numéro 979625506, titulaire de la carte de démarchage immobilier pour le compte de la société I@D France SAS.
Informations LOI ALUR :
Honoraires charge vendeur. (gedeon_6727_32190727)
Voir plus

Référence: 1874116
Honoraires à la charge du vendeur.
DPE
A
B
C
D
E
F
G
GES
A
B
C
D
E
F
G

Prêt immobilier

Vous souhaitez connaître votre capacité d’emprunt et trouver le meilleur crédit immobilier ?
Réaliser une simulation gratuite

Photo 1 - Maison à VILLERS-BOCAGE
Photo 1
Photo 2 - Maison à VILLERS-BOCAGE
Photo 2
Photo 3 - Maison à VILLERS-BOCAGE
Photo 3
Photo 4 - Maison à VILLERS-BOCAGE
Photo 4
Photo 5 - Maison à VILLERS-BOCAGE
Photo 5
Photo 6 - Maison à VILLERS-BOCAGE
Photo 6
Ce site est protégé par reCAPTCHA la Politique de confidentialité et les Conditions d’utilisation de Google s’appliquent.
Obtenir un prêt immobilier au meilleur taux ?

En poursuivant votre navigation sans modifier vos paramètres, vous acceptez l'utilisation de cookies susceptibles de réaliser des statistiques de visite. Cliquez ici pour plus d'informations