Bénéficiez des services de nos partenaires locaux soigneusement sélectionnés
pour vous accompagner dans votre parcours d'achat immobilier

Appartement 53m² à saint-malo

— Saint-Malo 35400 —
259 000 €
53 m²
2 pièces
parkingbalcon/terrasseascenseur

Nos partenaires locaux
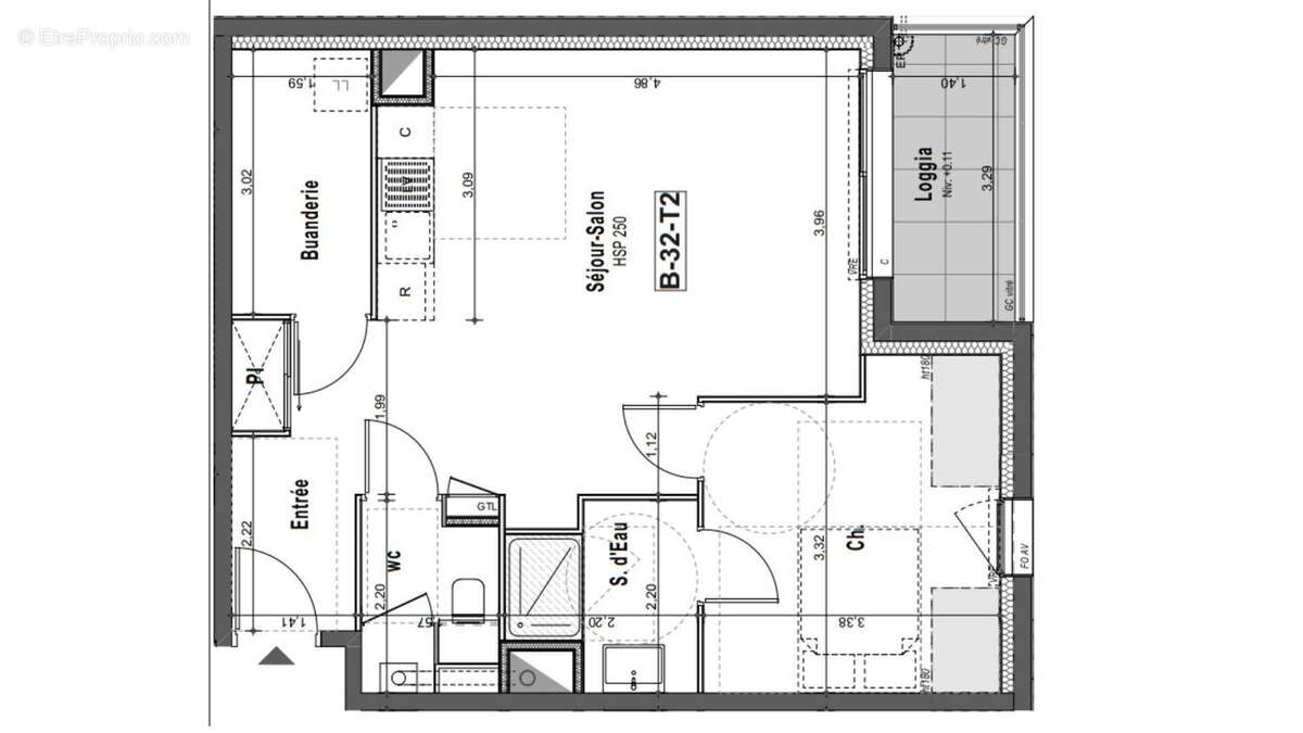
Iad France - Sarah Rozière ([Coordonnées masquées]) vous propose : Appartement T2 avec loggia à Saint-Malo.

Située rue des Antilles, au cOEur d'un environnement vivant et parfaitement connecté, la résidence contemporaine Éméralia conjugue élégance architecturale et confort de vie. À proximité immédiate de l'hippodrome, des commerces, des transports, des écoles et des plages de la Côte d'Émeraude, cette adresse offre un cadre agréable à seulement quelques minutes d'Intra-Muros. Disponible 2027.

Un appartement raffiné :
Situé au 3 ème étage, cet appartement T2 de 53 m² environ habitables se prolonge par une loggia de 5 m² environ.

- Séjour / cuisine de 26 m² environ.
- Une chambre confortable.
- Salle d'eau moderne.
- Annexes incluses : un parking privatif

De belles prestations :
- Menuiseries aluminium / PVC bicolores avec vitrage isolant thermique et acoustique.
- Chauffage et eau chaude par chaudière individuelle gaz à condensation.
- Résidence sécurisée avec visiophone, contrôle d'accès Vigik et ascenseur.
- Parkings couverts, locaux vélos et aménagements paysagers soignés.

L'art de vivre à Saint-Malo :
- À proximité immédiate du quartier de l'Hippodrome.
- À 10 minutes à vélo des plages et de la côte d'Émeraude.
- À 15 minutes à pied de la gare SNCF.
- Commerces, restaurants, marché, écoles et parcs accessibles en quelques minutes.

N'hésitez pas à me contacter pour plus d'informations ou pour un accompagnement sur mesure.

Honoraires d'agence à la charge du vendeur. Bien non soumis au DPE. Les informations sur les risques auxquels ce bien est exposé sont disponibles sur le site Géorisques : www.georisques.gouv.fr. La présente annonce immobilière a été rédigée sous la responsabilité éditoriale de Mlle Sarah Rozière EI (ID 83696), mandataire indépendant en immobilier (sans détention de fonds), agent commercial de la SAS I@D France immatriculé au RSAC de Clermont-Ferrand sous le numéro 978616993, titulaire de la carte de démarchage immobilier pour le compte de la société I@D France SAS.
Retrouvez tous nos biens sur notre site internet. www.iadfrance.fr.
Informations LOI ALUR :
Honoraires charge vendeur. (gedeon_6727_32191208)
Voir plus

Référence: 1890513-9
Honoraires à la charge du vendeur.

Prêt immobilier

Vous souhaitez connaître votre capacité d’emprunt et trouver le meilleur crédit immobilier ?
Réaliser une simulation gratuite

Photo 1 - Appartement à SAINT-MALO
Photo 1
Photo 2 - Appartement à SAINT-MALO
Photo 2
Photo 3 - Appartement à SAINT-MALO
Photo 3
Photo 4 - Appartement à SAINT-MALO
Photo 4
Photo 5 - Appartement à SAINT-MALO
Photo 5
Photo 6 - Appartement à SAINT-MALO
Photo 6
Photo 7 - Appartement à SAINT-MALO
Photo 7
Photo 8 - Appartement à SAINT-MALO
Photo 8
Ce site est protégé par reCAPTCHA la Politique de confidentialité et les Conditions d’utilisation de Google s’appliquent.
Obtenir un prêt immobilier au meilleur taux ?

En poursuivant votre navigation sans modifier vos paramètres, vous acceptez l'utilisation de cookies susceptibles de réaliser des statistiques de visite. Cliquez ici pour plus d'informations