Maison 3 pièces ( 2 chambres ) sans jardin

— Malesherbes 45300 —
84 900 €
62 m²
3 pièces

/ Visite virtuelle sur demande /

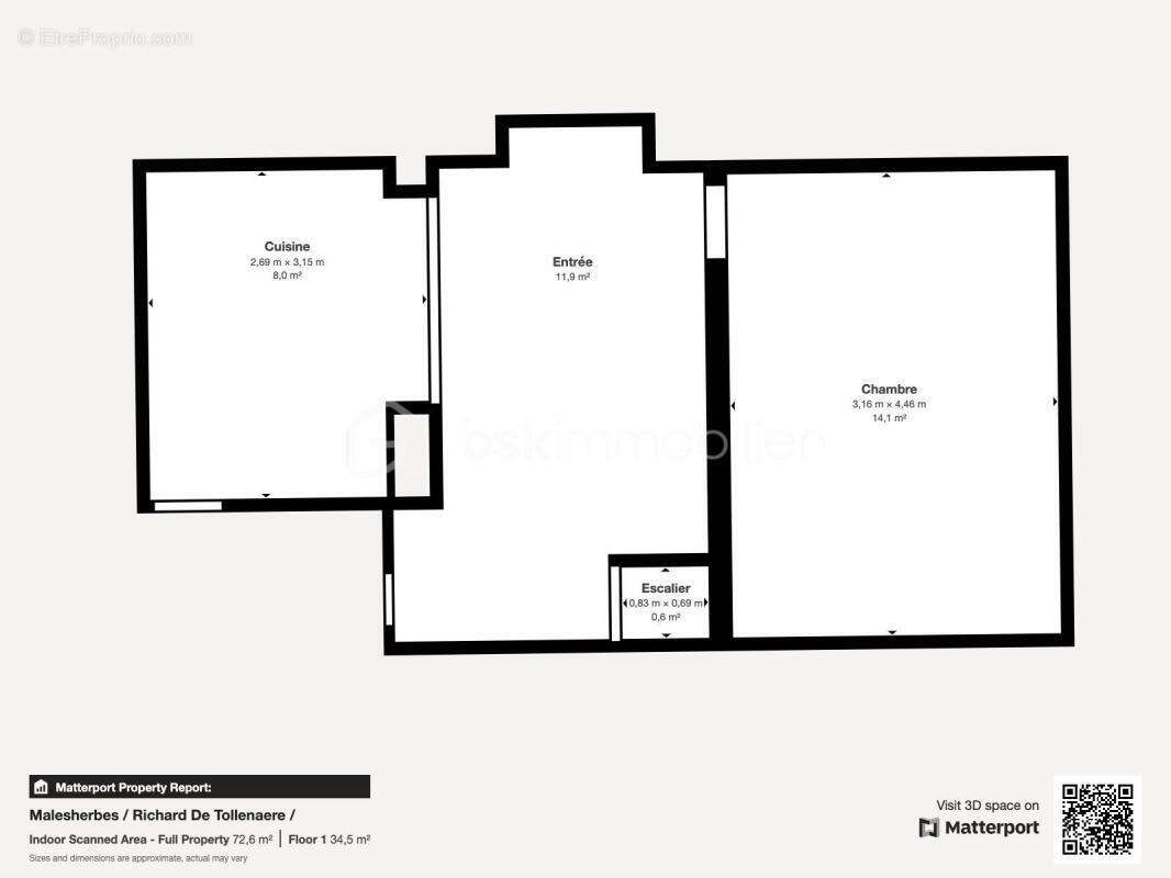
En hyper centre, venez découvrir ce duplex rénové. Il comprenant une entrée (sas), une pièce de vie avec cuisine ouverte, un salon.
A l'étage un palier desservant une salle d'eau avec wc et deux chambres.

Idéal premier achat ou investissement locatif.

Cette annonce référence 280355 vous est présentée par votre agent commercial BSK Immobilier RICHARD DE TOLLENAERE (EIRL) immatriculé au RSAC de ORLEANS (45100) sous le numéro 53942071100027.

Prix du bien : 84 900,00 €
Les honoraires d'agence sont à la charge du vendeur.

A propos des performances énergétiques :
Date de réalisation du diagnostic énergétique : 05/07/2022
Score DPE : 325 kWhEP/m²/an
Score GES : 10 kgepCO2/m²/an
Montant estimé des dépenses annuelles d'énergie pour un usage standard : entre 1240.00 € et 1720.00 € par an. Prix moyens des énergies indexés sur l'année 2021 (abonnements compris).

Les informations sur les risques auxquels ce bien est exposé sont disponibles sur le site Géorisques : www.georisques.gouv.fr
Voir plus

Référence: 280355
Honoraires à la charge du vendeur.
DPE
A
B
C
D
E
F
G
GES
A
B
C
D
E
F
G

Prêt immobilier

Vous souhaitez connaître votre capacité d’emprunt et trouver le meilleur crédit immobilier ?
Réaliser une simulation gratuite

Maison à MALESHERBES
Maison à MALESHERBES
Maison à MALESHERBES
Maison à MALESHERBES
Maison à MALESHERBES
Maison à MALESHERBES
Maison à MALESHERBES
Maison à MALESHERBES
Ce site est protégé par reCAPTCHA la Politique de confidentialité et les Conditions d’utilisation de Google s’appliquent.
Obtenir un prêt immobilier au meilleur taux ?

En poursuivant votre navigation sans modifier vos paramètres, vous acceptez l'utilisation de cookies susceptibles de réaliser des statistiques de visite. Cliquez ici pour plus d'informations