Bénéficiez des services de nos partenaires locaux soigneusement sélectionnés
pour vous accompagner dans votre parcours d'achat immobilier

Local/bureau à vendre tarbes (65)

— Tarbes 65000 —
530 000 €
249 m²
1 pièce
parking

Nos partenaires locaux
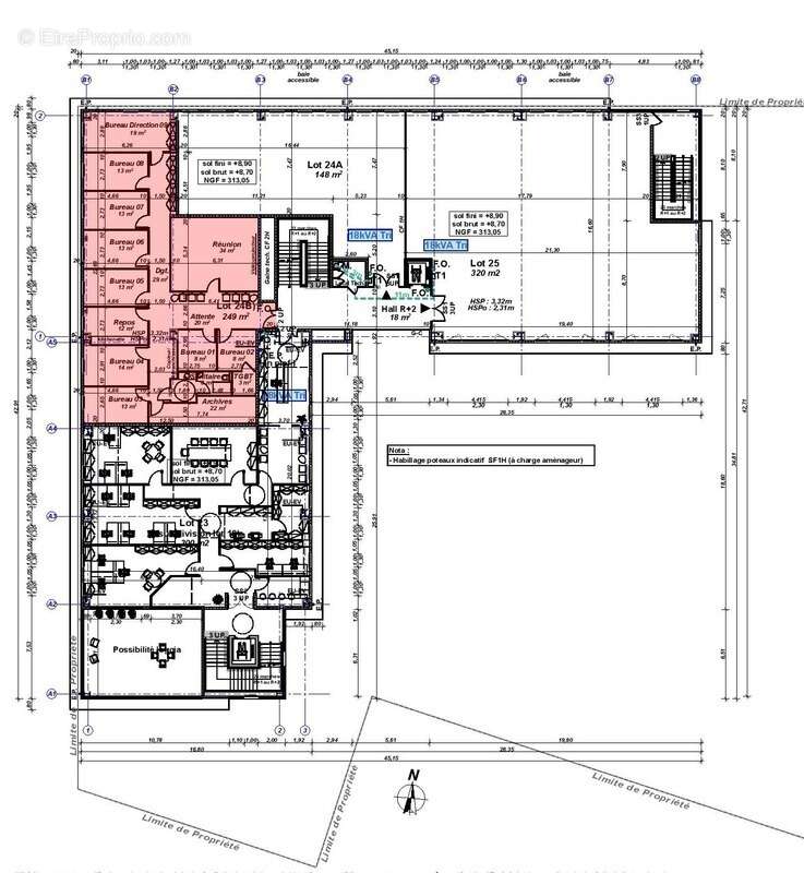
Au cœur du quartier de l'Arsenal à Tarbes, l'un des pôles d'activités et de loisirs les plus fréquentés, découvrez ce très bel espace de 249 m², situé au deuxième étage d'un immeuble accueillant déjà diverses professions (dentistes, prothésistes, restaurants, professions libérales…).

Le local, livré hors d'air / hors d'eau et de plain-pied, bénéficie d'une belle luminosité ainsi que d'une vue dégagée. Entièrement modulable, il peut être aménagé selon vos besoins.

L'accès s'effectue par deux ascenseurs et un large escalier. Plusieurs parkings gratuits, offrant environ 2 000 places, se trouvent à proximité immédiate.

Je me tiens à votre disposition pour une visite riche en perspectives. Les honoraires sont à la charge du vendeur.
Les informations sur les risques auxquels ce bien est exposé sont disponibles sur le site Géorisques : www. georisques. gouv. fr.

Réseau Immobilier CAPIFRANCE - Votre agent commercial (RSAC N°503 643 413 - Greffe de TARBES) Laurent DURROUX Entrepreneur Individuel [Coordonnées masquées] - Réf.931115
Voir plus

Référence: 340930950488
Honoraires à la charge du vendeur.

Prêt immobilier

Vous souhaitez connaître votre capacité d’emprunt et trouver le meilleur crédit immobilier ?
Réaliser une simulation gratuite

Commerce à TARBES
Commerce à TARBES
Commerce à TARBES
Commerce à TARBES
Ce site est protégé par reCAPTCHA la Politique de confidentialité et les Conditions d’utilisation de Google s’appliquent.
Obtenir un prêt immobilier au meilleur taux ?

En poursuivant votre navigation sans modifier vos paramètres, vous acceptez l'utilisation de cookies susceptibles de réaliser des statistiques de visite. Cliquez ici pour plus d'informations