Bénéficiez des services de nos partenaires locaux soigneusement sélectionnés
pour vous accompagner dans votre parcours d'achat immobilier

Appartement

— Saint-Cloud 92210 —
545 000 €
85 m²
4 pièces
balcon/terrasseascenseur

Nos partenaires locaux
92210 - SAINT CLOUD - MONTRETOUT
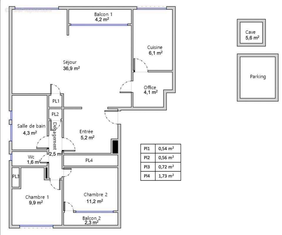
4 PIÈCES – 2 CHAMBRES – 85,5 m² – CAVE - PARKING

Efficity, leader de l'estimation en ligne, vous propose ce bel appartement de 85,5 m², situé au 2ème étage sur cour d'une résidence récente au coeur de la nature à Saint Cloud.

L'appartement s'ouvre sur une belle entrée desservant une grande pièce de vie de 37 m² exposée Est avec un balcon de 4 m² donnant sur la cour arborée de la résidence. Une cuisine séparée et aménagée de 9 m² complète cet espace de vie, baigné de lumière.
Un couloir dessert ensuite le coin nuit qui se compose de :
- deux chambres de 13 m² et 10 m² avec rangements intégrés, dont une avec son propre point d'eau et l'autre avec son propre balcon de 2,4 m²,
- une salle de bains,
- ainsi que des WC séparés.
Une cave saine ainsi qu'un boxe ouvert au sous-sol complètent ce bien.

L'appartement dispose d'un très beau potentiel avec une vue dégagée sur les arbres et la nature, tout en étant idéalement situé, au calme, à proximité des commerces et écoles (sectorisation Montretout). Cinéma et piscine à 5-6 min et marché des Avelines à 10-15 min à pieds.
L'immeuble est sécurisé et bien entretenu.

Transports : Gare de Saint Cloud à 10 min à pieds (lignes L et U, futur métro 15), bus 160, 360, 471, et dans un périmètre plus élargi, tram T2 et métro 10.
Les informations sur les risques auxquels ce bien est exposé sont disponibles sur le site Georisque : georisques. gouv. fr
Victoire Martini - EI - est Agent Commercial mandataire en immobilier, immatriculé au Registre Spécial des Agents Commerciaux du Tribunal de Commerce de Paris 15e Arrondissement sous le n°920241007.
Siège social du mandant : effiCity, 48 avenue de Villiers - 75017 PARIS - Société par Actions Simplifiée, société au capital de 132 373,05 euros, immatriculée au RCS Paris 497 617 746 et titulaire de la Carte professionnelle CPI 75[Coordonnées masquées]02 025 - CCI Paris IDF - Caisse de Garantie : GALIAN Assurances 89 rue de la Boétie 75008 Paris
Voir plus

Référence: 199292
Bien en copropriété. Nombre de lots : 160. Charges de copropriété : 285 €.
Honoraires à la charge du vendeur.
Barème des honoraires
DPE
A
B
C
D
E
F
G
GES
A
B
C
D
E
F
G

Prêt immobilier

Vous souhaitez connaître votre capacité d’emprunt et trouver le meilleur crédit immobilier ?
Réaliser une simulation gratuite

Appartement à SAINT-CLOUD
Appartement à SAINT-CLOUD
Appartement à SAINT-CLOUD
Appartement à SAINT-CLOUD
Appartement à SAINT-CLOUD
Appartement à SAINT-CLOUD
Appartement à SAINT-CLOUD
Appartement à SAINT-CLOUD
Appartement à SAINT-CLOUD
Appartement à SAINT-CLOUD
Appartement à SAINT-CLOUD
Appartement à SAINT-CLOUD
Ce site est protégé par reCAPTCHA la Politique de confidentialité et les Conditions d’utilisation de Google s’appliquent.
Obtenir un prêt immobilier au meilleur taux ?

En poursuivant votre navigation sans modifier vos paramètres, vous acceptez l'utilisation de cookies susceptibles de réaliser des statistiques de visite. Cliquez ici pour plus d'informations