Bénéficiez des services de nos partenaires locaux soigneusement sélectionnés
pour vous accompagner dans votre parcours d'achat immobilier

Courdimanche – grande maison familiale 7/8 pièces avec jardin arboré, sous-sol total et belles prestations

— Courdimanche 95800 —
499 000 €
186 m² / 1 030 m²
7 pièces
parkingbalcon/terrassejardin

Nos partenaires locaux
Bienvenue chez Abriculteurs, l’agence familiale qui s’engage à un service d’exception. Découvrez une présentation soignée de ce bien : des photos du programme et un plan détaillé pour vous projeter. Faites confiance à notre expertise pour transformer vos projets immobiliers en réussites remarquables.

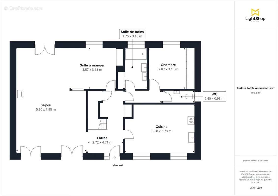
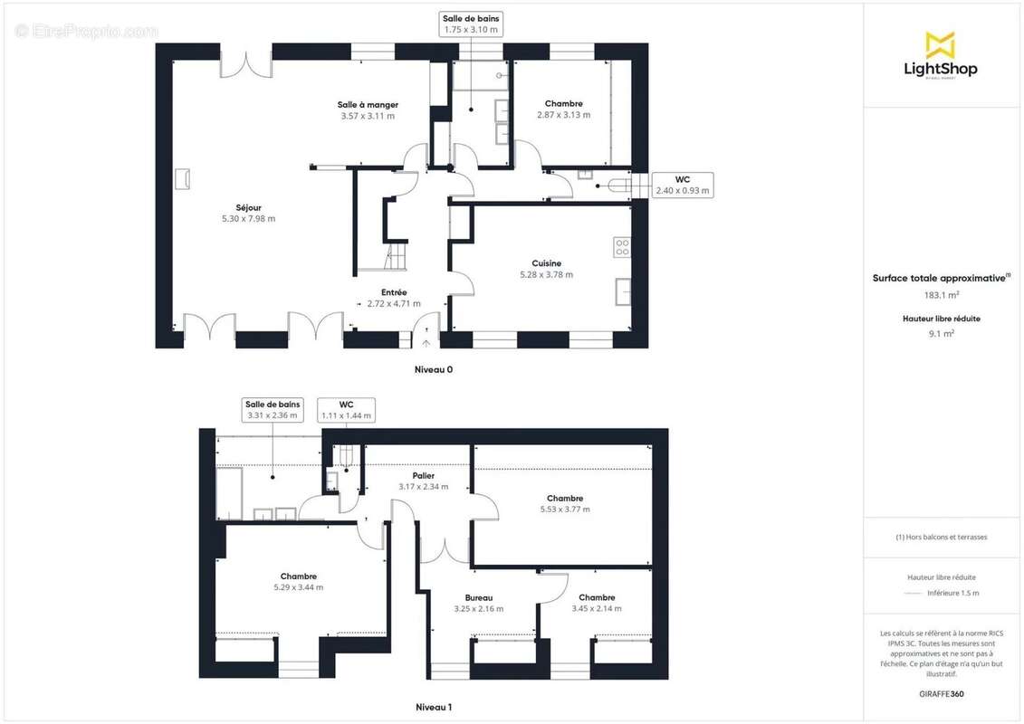
A vendre, une spacieuse maison de près de 190 m² habitables, édifiée en 1978 sur une parcelle paysagée de plus de 1 000 m².

Située Rue Raymond Berrivin, au cœur d’un quartier calme et recherché de Courdimanche, elle séduit par ses volumes généreux, sa luminosité traversante (Nord-Est / Sud-Ouest) et son excellent état d’entretien.

Rez-de-jardin :
- Vaste entrée avec dégagement
- Cuisine indépendante équipée de 20 m²
- Triple séjour traversant de 53 m², lumineux, ouvrant sur une terrasse et un jardin arboré sans vis-à-vis (noisetiers, cerisiers…)
- Une chambre
- Salle d’eau
- WC séparés

Étage :
- 3 à 4 chambres selon vos besoins
- Salle de bain
- Second WC séparé

Confort & équipements :
- Chauffage : radiateurs à fluide végétal type norvégien et poêle à bois
- Double vitrage + volets roulants aluminium neufs
- Isolation complète (intérieure, extérieure, toiture et façade Ouest)
- VMC neuve


Sous-sol total de 100 m² (hauteur 2 m) :
- Garage, atelier, buanderie et espaces de stockage
- Ballon d’eau chaude Atlantic 300 L (2022)
- Adoucisseur d’eau

Atouts supplémentaires :
- Maison très bien entretenue
- HSP : 2,70 m
- Portail et porte de garage motorisés
- Nombreux rangements
- Façade et toiture en parfait état
- Consommations très faibles : env. 800 €/an électricité, 200 €/an eau, 10 stères bois/an
- 2 abris à bois (20 stères)
- Stationnement jusqu’à 6 véhicules sur la parcelle
- Bonus : possibilité d’acquérir gracieusement 0,5 ha de bois pour une autonomie en bois de chauffage


Cadre de vie et proximité
À 100 m : boulangerie, tabac, poste, cabinet médical, coiffeur
Supérette en cours d’ouverture
Carrefour Market à 10 min à pied
Écoles maternelle et primaire dans le village
Gare de Cergy-le-Haut à 15–20 min à pied

Taxe foncière : 2 850 €/an
Une maison familiale idéale, alliant confort, espace et praticité, dans un environnement calme, verdoyant et proche de toutes commodités.
Contactez-nous pour organiser une visite !

Prix de vente : 499 000€ TTC (Honoraires Abriculteurs à la charge du vendeur)


Les informations sur les risques auxquels ce bien est exposé sont disponibles sur le site Géorisques : : www.georisques.gouv.fr

Annonce rédigée sous la responsabilité éditoriale de Mme Audrey HEISER , agent commercial (EI), immatriculé au RSAC de PONTOISE sous le n° 517 949 368, sans détention de fonds, agissant pour le compte de la SARL Abriculteurs immobilier, au capital de 5 000 €, immatriculée sous le SIREN n° 837 704 584, titulaire de la carte professionnelle n° CPI 75[Coordonnées masquées]25 842 délivrée par la CCI de Paris Île-de-France, dont le représentant légal est M. Adrien Piot, ayant son siège social au 12 rue des Halles, 75001 Paris.
Voir plus

Référence: AHVM3139
Barème des honoraires
DPE
A
B
C
D
E
F
G
GES
A
B
C
D
E
F
G

Prêt immobilier

Vous souhaitez connaître votre capacité d’emprunt et trouver le meilleur crédit immobilier ?
Réaliser une simulation gratuite

Maison à COURDIMANCHE
Maison à COURDIMANCHE
Maison à COURDIMANCHE
Maison à COURDIMANCHE
Maison à COURDIMANCHE
Maison à COURDIMANCHE
Maison à COURDIMANCHE
Maison à COURDIMANCHE
Maison à COURDIMANCHE
Maison à COURDIMANCHE
Maison à COURDIMANCHE
Maison à COURDIMANCHE
Maison à COURDIMANCHE
Maison à COURDIMANCHE
Maison à COURDIMANCHE
Maison à COURDIMANCHE
Maison à COURDIMANCHE
Maison à COURDIMANCHE
Maison à COURDIMANCHE
Maison à COURDIMANCHE
Maison à COURDIMANCHE
Ce site est protégé par reCAPTCHA la Politique de confidentialité et les Conditions d’utilisation de Google s’appliquent.
Obtenir un prêt immobilier au meilleur taux ?

En poursuivant votre navigation sans modifier vos paramètres, vous acceptez l'utilisation de cookies susceptibles de réaliser des statistiques de visite. Cliquez ici pour plus d'informations