Bénéficiez des services de nos partenaires locaux soigneusement sélectionnés
pour vous accompagner dans votre parcours d'achat immobilier

Terrain viabilisé

— Oberdorf 68960 —
100 000 €
726 m²

Nos partenaires locaux
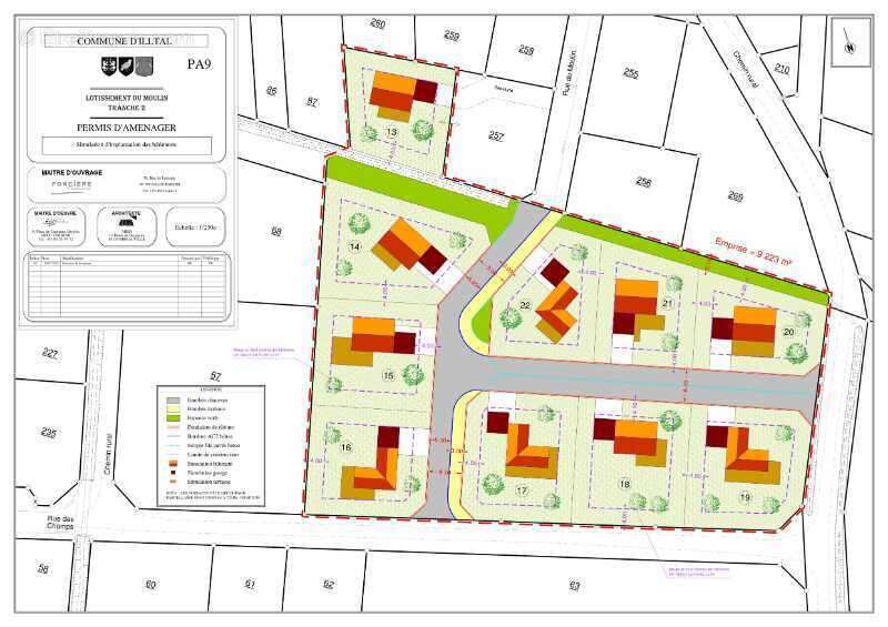
Terrain à bâtir sur la commune d'ILLTAL, Lot N°14
Très belle opportunité au centre du village a proximité de la SUISSE beau terrain viabilisé de 726 m2
TERRAIN LIBRE DE CONSTRUCTION et d'ARCHITECTE
Découvrez ce magnifique terrain entièrement viabilisé situé à Dannemarie bourgade avec toutes les commodités 
Idéal pour construire la maison de vos rêves ( possibilité de réaliser un plain pied)

Dans un environnement paisible, nous vous proposons de construire votre maison sur un terrain de 726 m2 viabilisé.

Accès à 5 minutes d' Hirsingue
Particularités :
Terrain profitant d'une belle exposition toute la journée
Terrain prêt à bâtir viabilisé et borné
Eau potable, eaux usées, gaz, électricité et télécom
Récupération des eaux pluviales sur la parcelle
Voirie et tous réseaux aménagés
Haute qualité des équipements
Services de proximité
Commerces ,écoles, cantine, garderie, transport en communs, maison médicale ou médecins et spécialistes
Nombreuses associations sportives et culturel.

Information selon décret 2022-1289 commune d' Illtal / risques naturels inondation et mouvements de terrain consultable sur le site www.Georisques.

REF;1_5_552
Voir plus

Référence: 1_5_552

Prêt immobilier

Vous souhaitez connaître votre capacité d’emprunt et trouver le meilleur crédit immobilier ?
Réaliser une simulation gratuite

Terrain à OBERDORF
Terrain à OBERDORF
Terrain à OBERDORF
Ce site est protégé par reCAPTCHA la Politique de confidentialité et les Conditions d’utilisation de Google s’appliquent.
Obtenir un prêt immobilier au meilleur taux ?

En poursuivant votre navigation sans modifier vos paramètres, vous acceptez l'utilisation de cookies susceptibles de réaliser des statistiques de visite. Cliquez ici pour plus d'informations