Bénéficiez des services de nos partenaires locaux soigneusement sélectionnés
pour vous accompagner dans votre parcours d'achat immobilier

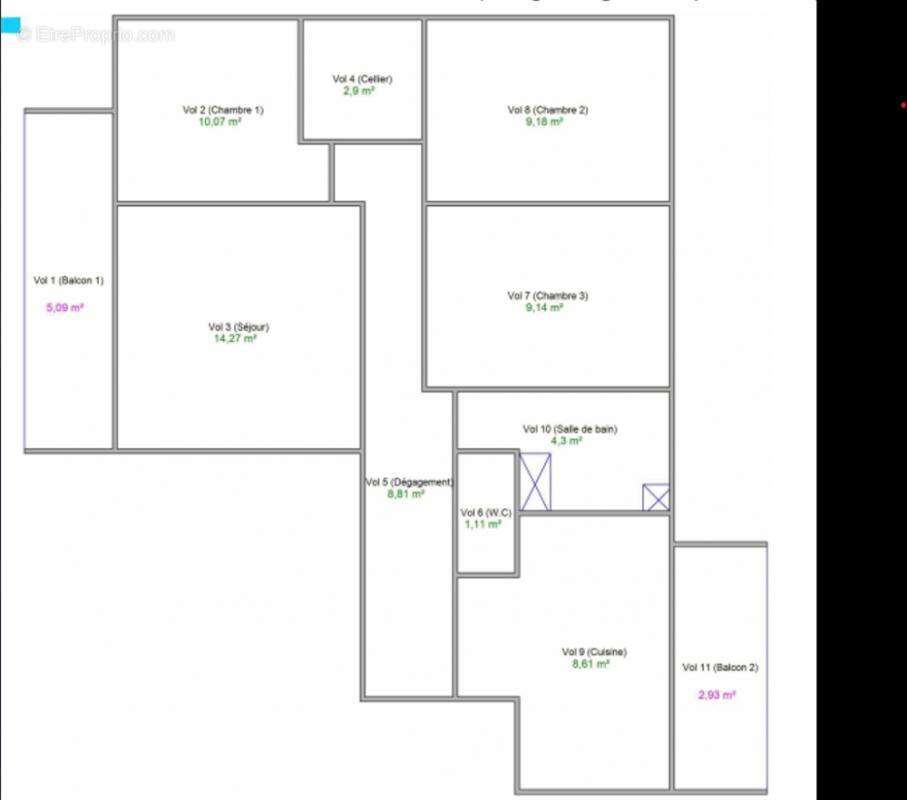
Appartement roanne - 4 pièces - 68 m2

— Roanne 42300 —
65 000 €
68 m²
4 pièces
parkingbalcon/terrasse

Nos partenaires locaux
Situé au 2ème étage d'une copropriété calme et bien entretenue, cet appartement de type T4 offre de beaux volumes et un fort potentiel de personnalisation.
Il comprend : une entrée, une cuisine indépendante ouvrant sur une loggia, une salle d'eau, wc séparé, un séjour lumineux avec balcon, sans vis-à-vis et trois chambres
L'ensemble est à rafraîchir, permettant à l'acquéreur d'aménager selon ses envies.

Pour toute information complémentaire ou organiser une visite, contactez Marine GALLEGO au [Coordonnées masquées]

Copropriété de 132 lots - dont 62 lots habitation. (Pas de procédure en cours).

Charges annuelles : 2820 euros.
Marine GALLEGO (EI) Agent Commercial - Numéro RSAC : - .
Voir plus

Référence: 1700
Bien en copropriété. Nombre de lots : 132. Charges de copropriété : 235 €.
Honoraires à la charge du vendeur.
DPE
A
B
C
D
E
F
G
GES
A
B
C
D
E
F
G

Prêt immobilier

Vous souhaitez connaître votre capacité d’emprunt et trouver le meilleur crédit immobilier ?
Réaliser une simulation gratuite

Appartement à ROANNE
Appartement à ROANNE
Appartement à ROANNE
Appartement à ROANNE
Appartement à ROANNE
Appartement à ROANNE
Appartement à ROANNE
Appartement à ROANNE
Appartement à ROANNE
Ce site est protégé par reCAPTCHA la Politique de confidentialité et les Conditions d’utilisation de Google s’appliquent.
Obtenir un prêt immobilier au meilleur taux ?

En poursuivant votre navigation sans modifier vos paramètres, vous acceptez l'utilisation de cookies susceptibles de réaliser des statistiques de visite. Cliquez ici pour plus d'informations