Bénéficiez des services de nos partenaires locaux soigneusement sélectionnés
pour vous accompagner dans votre parcours d'achat immobilier

Comme une maison ! duplex de 7 pièces avec terrasse & jardin - lamarck-caulaincourt

— Paris-18e 75018 —
2 600 000 €
198 m²
6 pièces
balcon/terrassejardin

Nos partenaires locaux
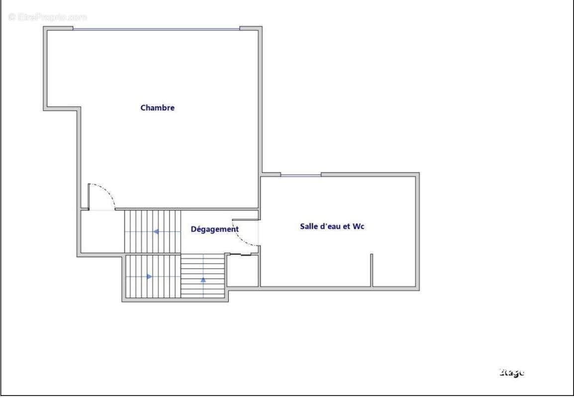
Situé rue Caulaincourt, au cœur de Montmartre, ce duplex de 186,32 m² Carrez se vit comme une véritable maison grâce à ses nombreux extérieurs. Triple exposition assurant une belle luminosité tout au long de la journée.

Au 2ème étage d'un ancien hôtel particulier, ce duplex s'articule autour d'un patio : grande pièce de réception de 41 m²(double séjour), une cuisine ouverte sur la salle à manger de 22 m², ainsi que trois chambres (13, 12 et 15 m²), un bureau, une salle de bain, une salle d'eau.
WC séparés & de nombreux rangements.
Poêle à bois fonctionnel dans le séjour.
Balcon & terrasse.
À l'étage supérieur, un espace indépendant (chambre, salle de bain et WC) est idéal pour plus de calme et de confort.

Le quartier est particulièrement recherché : à quelques pas des métros Lamarck-Caulaincourt, Blanche et Place de Clichy, des écoles réputées, des commerces et des restaurants. Les Jardins du Sacré-Cœur et le cimetière de Montmartre se trouvent également à proximité.

Les charges de copropriété sont de 2 780 € par trimestre (charges communes et chauffage) et la taxe foncière est de 2860 €.

Un bien rare offrant une qualité de vie exceptionnelle dans l'un des secteurs les plus prisés du 18ᵉ arrondissement. Ravalement récent.

Hosman s'efforce de réinventer l'agence immobilière en offrant un service innovant et transparent aux acheteurs et aux vendeurs. Nos frais d'agence sont de 52,000 euros au pourcentage à la charge de l'acheteur.
Si vous êtes un professionnel de l'immobilier (agent, mandataire ou chasseur immobilier), sachez que toutes les annonces Hosman sont ouvertes à la collaboration. N'hésitez pas à nous contacter pour en discuter.
Voir plus

Référence: 914c2e
Bien en copropriété. Charges de copropriété : 926 €.
DPE
A
B
C
D
E
F
G
GES
A
B
C
D
E
F
G

Prêt immobilier

Vous souhaitez connaître votre capacité d’emprunt et trouver le meilleur crédit immobilier ?
Réaliser une simulation gratuite

Appartement à PARIS-18E
Appartement à PARIS-18E
Appartement à PARIS-18E
Appartement à PARIS-18E
Appartement à PARIS-18E
Appartement à PARIS-18E
Appartement à PARIS-18E
Appartement à PARIS-18E
Appartement à PARIS-18E
Appartement à PARIS-18E
Appartement à PARIS-18E
Appartement à PARIS-18E
Appartement à PARIS-18E
Appartement à PARIS-18E
Appartement à PARIS-18E
Appartement à PARIS-18E
Ce site est protégé par reCAPTCHA la Politique de confidentialité et les Conditions d’utilisation de Google s’appliquent.
Obtenir un prêt immobilier au meilleur taux ?

En poursuivant votre navigation sans modifier vos paramètres, vous acceptez l'utilisation de cookies susceptibles de réaliser des statistiques de visite. Cliquez ici pour plus d'informations