Bénéficiez des services de nos partenaires locaux soigneusement sélectionnés
pour vous accompagner dans votre parcours d'achat immobilier

Exclusivité - boulogne-billancourt - appartement familial de 4 pièces, grande terrasse exposée plein sud, parking et cave.

— Boulogne-Billancourt 92100 —
1 090 000 €
103 m²
4 pièces
parkingbalcon/terrasseascenseur

Nos partenaires locaux
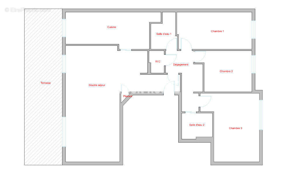
L'Agence Maison Rouge de Boulogne vous présente en exclusivité un bel appartement familial situé dans une résidence de standing calme et sécurisée. Il est situé à proximité des commerces, des établissements scolaires et du métro des lignes 9 et 10. Avec l'avantage d'être seul sur le palier, cet appartement 4 pièces, en bon état, d'une surface de 103 m2 Carrez dispose d'une grande terrasse de 27 m² orientée plein sud avec une vue dégagée sur le jardin privé de la copropriété (soit 112m2 en surfaces pondérées). Il se compose d'un double séjour, d'une grande cuisine dînatoire de près de 14 m² entièrement équipée donnant directement sur la terrasse également. Il est possible d'ouvrir la cuisine sur le séjour créant une pièce de vie de plus de 50m2. L'espace nuit, bien séparé de la pièce de vie, assure une grande tranquillité. Il se compose de trois belles chambres avec dressing ou armoire, de deux salles d'eau dont une avec wc, et d'un wc invité, de nombreux placards de rangement, possibilité d'une 4e chambre dans le double séjour. Une place de parking et une cave dans l'immeuble complètent ce bien. Prix FAI : 1 090 000 euros dont 3.81 % honoraires TTC à la charge de l'acquéreur. Copropriété de 87 lots - dont 28 lots habitation. (Pas de procédure en cours). Charges annuelles : 2864 euros. Sabine HADDAD (EI) Agent Commercial - Numéro RSAC : - .
Voir plus

Référence: 33058
Bien en copropriété. Nombre de lots : 87. Charges de copropriété : 2864 €.
Honoraires d'agence de 3.81% à la charge de l'acquéreur
Barème des honoraires
DPE
A
B
C
D
E
F
G
GES
A
B
C
D
E
F
G

Prêt immobilier

Vous souhaitez connaître votre capacité d’emprunt et trouver le meilleur crédit immobilier ?
Réaliser une simulation gratuite

Appartement à BOULOGNE-BILLANCOURT
Appartement à BOULOGNE-BILLANCOURT
Appartement à BOULOGNE-BILLANCOURT
Appartement à BOULOGNE-BILLANCOURT
Appartement à BOULOGNE-BILLANCOURT
Appartement à BOULOGNE-BILLANCOURT
Appartement à BOULOGNE-BILLANCOURT
Appartement à BOULOGNE-BILLANCOURT
Appartement à BOULOGNE-BILLANCOURT
Appartement à BOULOGNE-BILLANCOURT
Appartement à BOULOGNE-BILLANCOURT
Appartement à BOULOGNE-BILLANCOURT
Appartement à BOULOGNE-BILLANCOURT
Appartement à BOULOGNE-BILLANCOURT
Appartement à BOULOGNE-BILLANCOURT
Appartement à BOULOGNE-BILLANCOURT
Appartement à BOULOGNE-BILLANCOURT
Ce site est protégé par reCAPTCHA la Politique de confidentialité et les Conditions d’utilisation de Google s’appliquent.
Obtenir un prêt immobilier au meilleur taux ?

En poursuivant votre navigation sans modifier vos paramètres, vous acceptez l'utilisation de cookies susceptibles de réaliser des statistiques de visite. Cliquez ici pour plus d'informations