Bénéficiez des services de nos partenaires locaux soigneusement sélectionnés
pour vous accompagner dans votre parcours d'achat immobilier

Lambesc : maison familial de 110 m² avec sous-sol aménagé de 50 m²

— Lambesc 13410 —
498 000 €
110 m² / 403 m²
5 pièces
parkingbalcon/terrassejardin

Nos partenaires locaux
Bienvenue chez Abriculteurs, l’agence familiale qui s’engage à un service d’exception. Découvrez une présentation soignée de ce bien : des photos pro, un plan détaillé et une visite virtuelle immersive pour vous projeter. Faites confiance à notre expertise pour transformer vos projets immobiliers en réussites remarquables.

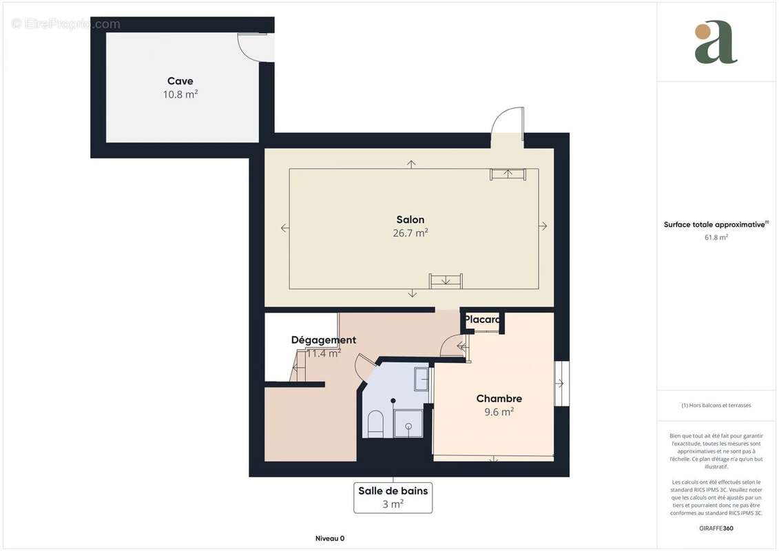
Maison familiale T5 de 110 m² avec sous-sol aménagé de 50 m² sur un terrain de 403 m² à Lambesc (13410).
Proche des commerces, écoles et infrastructures sportives.

Au rez-de-chaussée, un espace de vie de 64 m² lumineux avec cuisine ouverte, cheminée et bibliothèque sur mesure. Une terrasse, un cellier et un WC complètent ce niveau.

À l’étage, trois chambres avec placards intégrés et une salle de bains avec WC composent l’espace nuit.

Le rez-de-jardin propose un espace indépendant avec une quatrième chambre, un salon donnant directement sur l'extérieur, une salle d’eau avec WC et une buanderie.

À l’extérieur, le jardin offre un cadre calme et agréable, idéal pour les moments de détente en famille. Une cave de 10 m² complète le bien, offrant un espace de stockage supplémentaire.

Côté stationnement, la maison dispose d’un garage de 30 m² et d’une place de parking devant la maison.

Maison fonctionnelle et bien agencée, offrant de beaux volumes et un potentiel d’aménagement pour accueillir confortablement une famille.

Les + du bien :
- espace de vie lumineux de 64 m²
- sous-sol aménagé de 50 m²
- climatisation réversible
- fibre optique
- menuiseries PVC double vitrage
- garage de 30 m² et cave de 10 m²

À noter :
- Etat du bien : rafraichissement à prévoir
- Eau de ville
- Tout à l’égout
- Taxe foncière : 1 600 € / an

Consommation conventionnelle (kWhEP/m2.an) : 161 kWh/m²/an (C)
Estimation des émissions (kg CO2/m2.an) : 5 kgCO2/m²/an (A)
Coût de l'énergie min / max : entre 1360€ et 1920€
Année de référence des prix : 2021, 2022, 2023

Prix de vente : 480 000 € TTC (hors honoraires agence)

Honoraires à la charge de l'acquéreur de 18 000 € représentant un total de 498 000 € (honoraires d'agence inclus), soit 3,75 % du prix de vente.

Ce bien a retenu votre intérêt ? Pour organiser la visite avec nous, rien de plus simple, prenez rendez-vous en ligne au moment qui vous convient le mieux.

Les informations sur les risques auxquels ce bien est exposé sont disponibles sur le site Géorisques : www.georisques.gouv.fr

Annonce rédigée sous la responsabilité éditoriale de M. RICHIER Matthieu , agent commercial (EI), immatriculé au RSAC de Salon-de-Provence sous le n° 850 335 530, sans détention de fonds, agissant pour le compte de la SARL Abriculteurs immobilier, au capital de 5 000 €, immatriculée sous le SIREN n° 837 704 584, titulaire de la carte professionnelle n° CPI 75[Coordonnées masquées]25 842 délivrée par la CCI de Paris Île-de-France, dont le représentant légal est M. Adrien Piot, ayant son siège social au 12 rue des Halles, 75001 Paris.
Voir plus

Référence: MRVM3151
Barème des honoraires
DPE
A
B
C
D
E
F
G
GES
A
B
C
D
E
F
G

Prêt immobilier

Vous souhaitez connaître votre capacité d’emprunt et trouver le meilleur crédit immobilier ?
Réaliser une simulation gratuite

Maison à LAMBESC
Maison à LAMBESC
Maison à LAMBESC
Maison à LAMBESC
Maison à LAMBESC
Maison à LAMBESC
Maison à LAMBESC
Maison à LAMBESC
Maison à LAMBESC
Maison à LAMBESC
Maison à LAMBESC
Maison à LAMBESC
Maison à LAMBESC
Maison à LAMBESC
Maison à LAMBESC
Maison à LAMBESC
Maison à LAMBESC
Maison à LAMBESC
Maison à LAMBESC
Maison à LAMBESC
Maison à LAMBESC
Maison à LAMBESC
Maison à LAMBESC
Maison à LAMBESC
Maison à LAMBESC
Maison à LAMBESC
Maison à LAMBESC
Maison à LAMBESC
Maison à LAMBESC
Ce site est protégé par reCAPTCHA la Politique de confidentialité et les Conditions d’utilisation de Google s’appliquent.
Obtenir un prêt immobilier au meilleur taux ?

En poursuivant votre navigation sans modifier vos paramètres, vous acceptez l'utilisation de cookies susceptibles de réaliser des statistiques de visite. Cliquez ici pour plus d'informations