Bénéficiez des services de nos partenaires locaux soigneusement sélectionnés
pour vous accompagner dans votre parcours d'achat immobilier

Appartement 110m² à angers

— Angers 49000 —
220 000 €
110 m²
6 pièces
parkingbalcon/terrasseascenseuraccès handicapé

Nos partenaires locaux
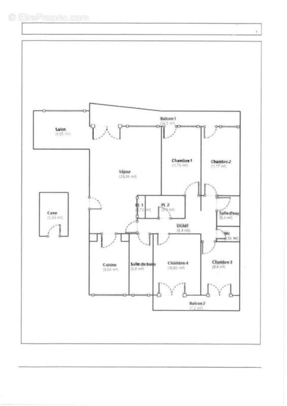
STRASBOURG - CHEVROLLIER - Grand Appartement de type VI - STRASBOURG - CHEVROLLIER - Découvrez cet appartement traversant de type VI d'environ 110 m² situé au 5ème étage d'une résidence avec ascenseur.
L'appartement, très lumineux, est composé d'une entrée avec placard, un double séjour exposé sud-ouest donnant accès à un balcon, une cuisine séparée, un couloir avec placard, quatre chambres donnant toutes sur un balcon, une salle de bain, une salle d'eau avec WC, un WC séparé.
Un parking et une cave en sous-sol complètent ce bien. Situé à seulement 2 minutes à pied du tram et 15 minutes de la gare et du marché de la place La Fayette.
Copropriété de 155 lots principaux.
Contact : Jean-Pascal NORMAND 6 88 17 37 63. Le bien est soumis au statut de la copropriété , la copropriété comporte 155 lots , la quote-part budget prévisionnel (dépenses courantes) est de 3 630,00 euros/an.
Montant estimé des dépenses annuelles d'énergie pour un usage standard : entre 1 470 et 2 040 euros.
Voir plus

Référence: 1465
DPE
A
B
C
D
E
F
G
GES
A
B
C
D
E
F
G

Prêt immobilier

Vous souhaitez connaître votre capacité d’emprunt et trouver le meilleur crédit immobilier ?
Réaliser une simulation gratuite

  - Appartement à ANGERS
  - Appartement à ANGERS
  - Appartement à ANGERS
  - Appartement à ANGERS
  - Appartement à ANGERS
Ce site est protégé par reCAPTCHA la Politique de confidentialité et les Conditions d’utilisation de Google s’appliquent.
Obtenir un prêt immobilier au meilleur taux ?

En poursuivant votre navigation sans modifier vos paramètres, vous acceptez l'utilisation de cookies susceptibles de réaliser des statistiques de visite. Cliquez ici pour plus d'informations