Bénéficiez des services de nos partenaires locaux soigneusement sélectionnés
pour vous accompagner dans votre parcours d'achat immobilier

Clohars carnoet - le pouldu - appartement t3 de 55m² vendu meuble avec parking prive

— Clohars-Carnoet 29360 —
229 240 €
55 m²
3 pièces
parking

Nos partenaires locaux
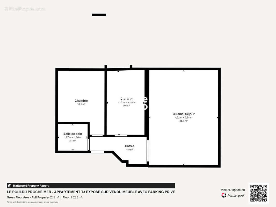
VENDU MEUBLE AVEC PARKING - LA MER A 100 METRES Découvrez cet appartement charmant de 55 m² situé au premier étage d'un immeuble ancien en pierre, construit en 1904, à seulement 100 mètres de la mer dans le secteur prisé du Pouldu à Clohars Carnoët. Ce bien, en bon état, comprend une pièce à vivre de 26 m² exposée plein sud avec une cuisine américaine aménagée et équipée, une salle d'eau avec fenetre et deux chambres au calme. Le chauffage est individuel électrique et les fenetres en PVC double vitrage. Immeuble muni de la fibre optique et d'un digicode. Cave et place de parking privative dans cour fermée avec barrière. Charges annuelles 614.52 euros. Petite copropriété de 9 lots principaux gérée par votre agence BARRAINE IMMO LORIENT. DPE classe D. A proximité, vous trouverez des restaurants, des écoles publiques, un bureau de poste, ainsi qu'un supermarché, ce qui rend cet appartement idéal pour une vie pratique et agréable. Prix de vente : 229240 euros frais d'agence inclus. Charge acquéreur. Contactez l'Agence Barraine IMMO Lorient pour plus d'informations. (4.20 % honoraires TTC à la charge de l'acquéreur.) Copropriété de 9 lots (Pas de procédure en cours). Charges annuelles : 614.52 euros.
Voir plus

Référence: LT00369-MB
Bien en copropriété. Nombre de lots : 9. Charges de copropriété : 614 €.
Honoraires d'agence de 4.2% à la charge de l'acquéreur
Barème des honoraires
DPE
A
B
C
D
E
F
G
GES
A
B
C
D
E
F
G

Prêt immobilier

Vous souhaitez connaître votre capacité d’emprunt et trouver le meilleur crédit immobilier ?
Réaliser une simulation gratuite

Appartement à CLOHARS-CARNOET
Appartement à CLOHARS-CARNOET
Appartement à CLOHARS-CARNOET
Appartement à CLOHARS-CARNOET
Appartement à CLOHARS-CARNOET
Appartement à CLOHARS-CARNOET
Appartement à CLOHARS-CARNOET
Appartement à CLOHARS-CARNOET
Appartement à CLOHARS-CARNOET
Appartement à CLOHARS-CARNOET
Appartement à CLOHARS-CARNOET
Appartement à CLOHARS-CARNOET
Appartement à CLOHARS-CARNOET
Appartement à CLOHARS-CARNOET
Appartement à CLOHARS-CARNOET
Appartement à CLOHARS-CARNOET
Appartement à CLOHARS-CARNOET
Appartement à CLOHARS-CARNOET
Appartement à CLOHARS-CARNOET
Appartement à CLOHARS-CARNOET
Ce site est protégé par reCAPTCHA la Politique de confidentialité et les Conditions d’utilisation de Google s’appliquent.
Obtenir un prêt immobilier au meilleur taux ?

En poursuivant votre navigation sans modifier vos paramètres, vous acceptez l'utilisation de cookies susceptibles de réaliser des statistiques de visite. Cliquez ici pour plus d'informations