Appartement 40m² à saint-jean-de-braye

— Saint-Jean-De-Braye 45800 —
122 500 €
40 m²
2 pièces
parkingbalcon/terrasse

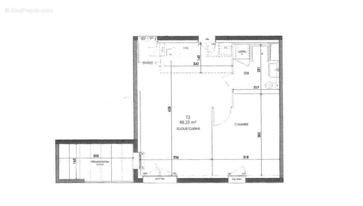
Iad France - Aurélie Martinez vous propose : Saint-Jean-de-Braye, F2 de 40 m² situé dans une résidence fermée et sécurisée de 2019.

Au 2e et dernier étage d'une petite copropriété de 11 lots, cet appartement lumineux dispose d'une place de parking privative et ne nécessite aucun travaux. Un bien parfait pour un premier achat comme pour un investissement locatif.

Il offre un séjour agréable avec cuisine ouverte, une chambre spacieuse avec placards intégrés, une salle d'eau moderne équipée d'un pare-douche, d'un sèche-serviette et de WC, ainsi qu'une terrasse couverte avec une très belle vue dégagée.

La résidence est récente et particulièrement bien entretenue. Quant à l'appartement, il profite d'une excellente performance énergétique.

À découvrir sans attendre !

La presente annonce immobiliere vise 2 lots situés dans une copropriété de 24 lots au total et ne faisant l'objet d'aucune procédure en cours citée à l'article L. 721-1 du code de la construction et de l'habitation. Montant moyen mensuel de charges déclaré par le vendeur : 113.33¤ par mois (soit 1360 ¤ annuel). Honoraires d'agence à la charge du vendeur.
Information d'affichage énergétique sur ce bien : classe ENERGIE C indice 114 et classe CLIMAT C indice 23. Les informations sur les risques auxquels ce bien est exposé, y compris l'obligation légale de débroussaillement, sont disponibles sur le site Géorisques : http://www.georisques.gouv.fr.
La présente annonce immobilière a été rédigée sous la responsabilité éditoriale de Mme Aurélie Martinez mandataire indépendant en immobilier (sans détention de fonds), agent commercial de la SAS I@D France immatriculé au RSAC de ORLEANS sous le numéro 838337889, titulaire de la carte de démarchage immobilier pour le compte de la société I@D France SAS.
Informations LOI ALUR :
Soumis au régime de copropriété.
Nombre de lots : 24.
Quote part annuelle(moyenne) : 1360 euros.
Honoraires charge vendeur. (gedeon_6727_32203061)
Voir plus

Référence: 1888273
Bien en copropriété. Nombre de lots : 24. Charges de copropriété : 1360 €.
Honoraires à la charge du vendeur.
DPE
A
B
C
D
E
F
G
GES
A
B
C
D
E
F
G

Prêt immobilier

Vous souhaitez connaître votre capacité d’emprunt et trouver le meilleur crédit immobilier ?
Réaliser une simulation gratuite

Photo 1 - Appartement à SAINT-JEAN-DE-BRAYE
Photo 1
Photo 2 - Appartement à SAINT-JEAN-DE-BRAYE
Photo 2
Photo 3 - Appartement à SAINT-JEAN-DE-BRAYE
Photo 3
Photo 4 - Appartement à SAINT-JEAN-DE-BRAYE
Photo 4
Photo 5 - Appartement à SAINT-JEAN-DE-BRAYE
Photo 5
Photo 6 - Appartement à SAINT-JEAN-DE-BRAYE
Photo 6
Photo 7 - Appartement à SAINT-JEAN-DE-BRAYE
Photo 7
Photo 8 - Appartement à SAINT-JEAN-DE-BRAYE
Photo 8
Ce site est protégé par reCAPTCHA la Politique de confidentialité et les Conditions d’utilisation de Google s’appliquent.
Obtenir un prêt immobilier au meilleur taux ?

En poursuivant votre navigation sans modifier vos paramètres, vous acceptez l'utilisation de cookies susceptibles de réaliser des statistiques de visite. Cliquez ici pour plus d'informations