Bénéficiez des services de nos partenaires locaux soigneusement sélectionnés
pour vous accompagner dans votre parcours d'achat immobilier

Appartement 61m² à tours

— Tours 37000 —
219 000 €
61 m²
3 pièces

Nos partenaires locaux
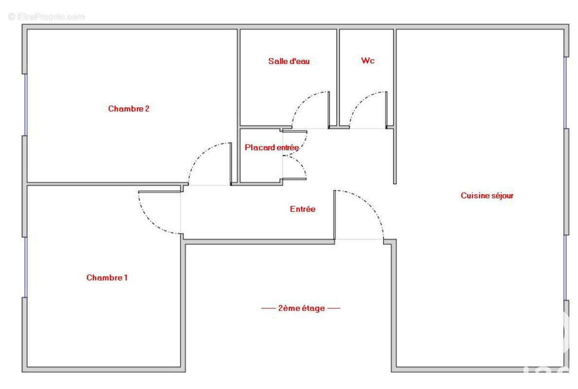
Iad France - Audrey Cortabitarte vous propose : Appartement en hyper centre de TOURS, idéal pour une vie citadine !
Situé au 2ème étage, ce T3 traversant se compose d'une spacieuse entrée avec placard, d'un séjour avec cuisine ouverte aménagée de plus 25 m² !
Vous trouverez ensuite un wc séparé, une salle d'eau avec une arrivée d'eau pour la machine à laver.
Pour l'espace nuit, vous découvrirez 2 chambres lumineuses au calme avec volets roulants électriques.
Une cave et un droit au stationnement complètent le bien.

La presente annonce immobiliere vise 2 lots situés dans une copropriété de 12 lots au total et ne faisant l'objet d'aucune procédure en cours citée à l'article L. 721-1 du code de la construction et de l'habitation. Montant moyen mensuel de charges déclaré par le vendeur : 166.67¤ par mois (soit 2000 ¤ annuel). Honoraires d'agence à la charge du vendeur.
Information d'affichage énergétique sur ce bien : classe ENERGIE C indice 161 et classe CLIMAT B indice 8. Les informations sur les risques auxquels ce bien est exposé, y compris l'obligation légale de débroussaillement, sont disponibles sur le site Géorisques : http://www.georisques.gouv.fr.
La présente annonce immobilière a été rédigée sous la responsabilité éditoriale de Mme Audrey Cortabitarte mandataire indépendant en immobilier (sans détention de fonds), agent commercial de la SAS I@D France immatriculé au RSAC de TOURS sous le numéro 841367550, titulaire de la carte de démarchage immobilier pour le compte de la société I@D France SAS.
Informations LOI ALUR :
Soumis au régime de copropriété.
Nombre de lots : 12.
Quote part annuelle(moyenne) : 2000 euros.
Honoraires charge vendeur. (gedeon_6727_32203529)
Voir plus

Référence: 1893201
Bien en copropriété. Nombre de lots : 12. Charges de copropriété : 2000 €.
Honoraires à la charge du vendeur.
DPE
A
B
C
D
E
F
G
GES
A
B
C
D
E
F
G

Prêt immobilier

Vous souhaitez connaître votre capacité d’emprunt et trouver le meilleur crédit immobilier ?
Réaliser une simulation gratuite

Photo 1 - Appartement à TOURS
Photo 1
Photo 2 - Appartement à TOURS
Photo 2
Photo 3 - Appartement à TOURS
Photo 3
Photo 4 - Appartement à TOURS
Photo 4
Photo 5 - Appartement à TOURS
Photo 5
Photo 6 - Appartement à TOURS
Photo 6
Photo 7 - Appartement à TOURS
Photo 7
Photo 8 - Appartement à TOURS
Photo 8
Ce site est protégé par reCAPTCHA la Politique de confidentialité et les Conditions d’utilisation de Google s’appliquent.
Obtenir un prêt immobilier au meilleur taux ?

En poursuivant votre navigation sans modifier vos paramètres, vous acceptez l'utilisation de cookies susceptibles de réaliser des statistiques de visite. Cliquez ici pour plus d'informations