Bénéficiez des services de nos partenaires locaux soigneusement sélectionnés
pour vous accompagner dans votre parcours d'achat immobilier

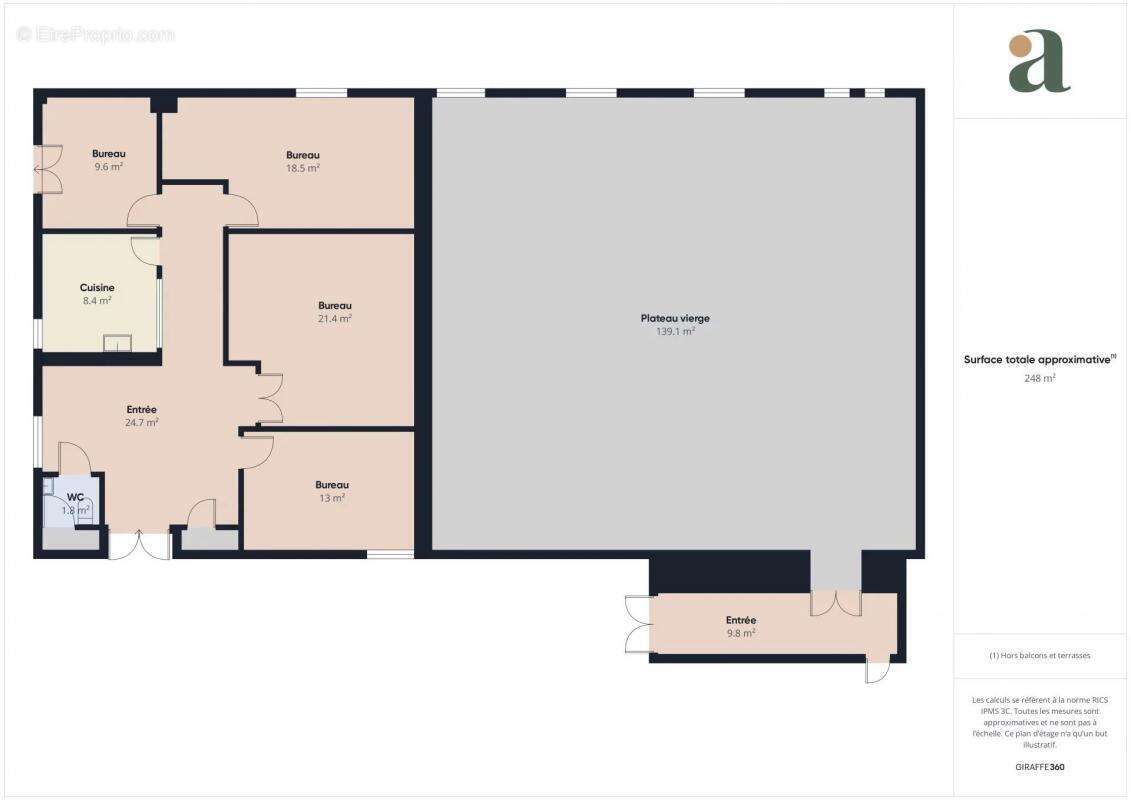
A vendre, ensemble de bureaux 268m2 à marseille 15ème (13015)

— Marseille-15e 13015 —
439 000 €
295 m²

Nos partenaires locaux
Bienvenue chez une agence familiale qui s'engage à un service d'exception. Découvrez une présentation soignée de ce bien : des photos pro, un plan détaillé et une visite virtuelle immersive pour vous projeter. Faites confiance à notre expertise pour transformer vos projets immobiliers en réussites remarquables.

Découvrez ces locaux commerciaux offrant une excellente opportunité d'investissement. À proximité immédiate des transports en commun, des grands axes routiers et de toutes les commodités, cet emplacement stratégique garantit une belle visibilité et un accès facilité.

Le bien se compose d'une première partie indépendante accueillant 4 bureaux, un espace attente et une salle de repos/cuisine. Ces bureaux sont loués à une activité tertiaire. La seconde partie également indépendante est un plateau de 136 m2 à rafraîchir et organiser en fonction des besoins.
Enfin, le dernier espace de 28m2 est également loué à un entrepreneur en tant que bureau.
Les occupants sont stables, assurant ainsi un revenu locatif immédiat et sécurisé.

Avec un environnement en pleine évolution et une demande croissante pour les espaces professionnels dans ce secteur, cette acquisition représente un placement pérenne à fort potentiel.

Les + du bien :
- Les occupants sont stables, assurant ainsi un revenu locatif immédiat et sécurisé.
- accessibilité simple, réseaux autoroutiers à proximité
- bureaux dans une enceinte fermée et sécurisée, places de parking disponibles

- Etat du bien : le plateau de 136m2 est à rafraîchir, les bureaux loués sont déjà rénovés
- Le bien est soumis au statut de copropriété
- 17 lots dont 12 lots à usage d'habitation, de bureaux ou de commerces.

Prix de vente : 439 000 € TTC

Ce bien a retenu votre intérêt ? Pour organiser la visite, prenez rendez-vous en ligne au moment qui vous convient le mieux.

Les informations sur les risques auxquels ce bien est exposé sont disponibles sur le site Géorisques : www.georisques.gouv.fr

Ce bien n'est potentiellement pas concerné par un tel risque.

La présente annonce immobilière a été rédigée sous la responsabilité éditoriale d'une personne.

SARL Abriculteurs immobilier au capital de 5 000,00 € immatriculée sous le numéro de SIREN 837704584 dont le représentant légal est une personne.

Bien présenté par Agences de France par délégation.
Agences de France – SIREN : 899413603 – Titulaire de la carte T : 29[Coordonnées masquées]00009 non habilité à percevoir des fonds
Voir plus

Référence: getkey_u_499711166
Honoraires à la charge du vendeur.

Prêt immobilier

Vous souhaitez connaître votre capacité d’emprunt et trouver le meilleur crédit immobilier ?
Réaliser une simulation gratuite

Commerce à MARSEILLE-15E
Commerce à MARSEILLE-15E
Commerce à MARSEILLE-15E
Commerce à MARSEILLE-15E
Commerce à MARSEILLE-15E
Commerce à MARSEILLE-15E
Commerce à MARSEILLE-15E
Commerce à MARSEILLE-15E
Commerce à MARSEILLE-15E
Commerce à MARSEILLE-15E
Commerce à MARSEILLE-15E
Commerce à MARSEILLE-15E
Commerce à MARSEILLE-15E
Commerce à MARSEILLE-15E
Commerce à MARSEILLE-15E
Ce site est protégé par reCAPTCHA la Politique de confidentialité et les Conditions d’utilisation de Google s’appliquent.
Obtenir un prêt immobilier au meilleur taux ?

En poursuivant votre navigation sans modifier vos paramètres, vous acceptez l'utilisation de cookies susceptibles de réaliser des statistiques de visite. Cliquez ici pour plus d'informations