Bénéficiez des services de nos partenaires locaux soigneusement sélectionnés
pour vous accompagner dans votre parcours d'achat immobilier

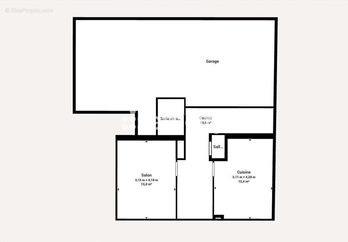
Maison 120m² à bron

— Bron 69500 —
250 000 €
120 m² / 390 m²
5 pièces
parkingjardin

Nos partenaires locaux
69120 VAULX-EN-VELIN / SEPT CHEMINS – MAISON ANNÉES 30 – 72 M² CARREZ / ENV. 120 M² UTILES – 2 À 5 CHAMBRES POSSIBLES – EXPOSITION EST/OUEST - AVEC TRAVAUX

// VISITE VIRTUELLE ACCESSIBLE A VISIONNER AVANT LA PRISE DE RDV - TRAVAUX DE RENOVATION A PREVOIR //

Vous rêvez de devenir propriétaire d'une maison individuelle ? Cette maison pourrait bien être votre chance de concrétiser ce projet de vie ! Léonore Pillon et Efficity, l'agence qui estime votre bien en ligne, vous propose en exclusivité cette charmante maison des années 30, située rue Roger Salengro, à la limite de Bron et Vaulx-en-Velin, tout proche de la route de Genas et du centre commercial Carrefour Sept Chemins.

Vous serez immédiatement séduits par le charme de l'ancien : belle hauteur sous plafond, grandes ouvertures, placards d'époque… Et surtout par le potentiel d'aménagement qu'offre ce bien, idéal pour un projet de rénovation personnalisé.

Un beau potentiel à révéler pour les amateurs de travaux :
•Maison de 72 m² Carrez élevée sur une grande cave de 32 m²,
•Un garage de 50 m² pouvant être divisé pour agrandir l'espace de vie (environ 30m2 de surface habitable et 20m2 de garage),
•Des combles aménageables (env. 30 m² au sol) dont une petite partie en surface carrez avec plus de 1,80 m de hauteur,
•Actuellement composée de 2 chambres, la maison peut être réagencée jusqu'à 4 ou 5 chambres, sans devoir agrandir ou demande de permis de construire,
•Surface utile après travaux estimée à env. 120 m² (aujourd'hui 72m2 habitables)
•Dans le jardin, une cuisine d'été fermée avec salle d'eau vous permettra de profiter pleinement des extérieurs ou d'être modifiée en salle d'eau donnant sur la chambre parentale.

Des travaux importants de rénovation intérieure sont à prévoir, mais aussi une belle opportunité de créer un cocon à votre image.
Le gros œuvre semble sain, la base est là – à vous d'écrire la suite !
•A moderniser : électricité, chauffage au fuel, cuisine, salle de bains, sols, murs, porte d'entrée et de garage, etc.
•Les fenêtres en double vitrage sont récentes et équipées de volets roulants à l'étage.
•Façade en bon état.
Prévoir une enveloppe minimale de 50 000 € de travaux, selon le projet envisagé et votre implication personnelle dans le projet.

Le confort de vie : le tout est complété par un petit jardin, parfait pour profiter des beaux jours, jardiner ou installer un espace détente.
•Parcelle traversante de 390 m², exposée est-ouest,
•Jardin au calme à l'ouest, en fond d'impasse privative, le jardin est inaccessible depuis la rue pour plus de tranquillité
•Possibilité de stationner un ou deux véhicules dans la cour à l'avant, en plus du garage.

Commodités accessibles à pied :
Centre commercial Carrefour Sept Chemins face à la maison, commerces de proximité, boulangerie, restauration, écoles et transports (Lignes de Bus 24, 25, 28, 52, 68, C15, notamment raccordées à Vaulx en Velin la Soie métro A et tramway).

Ce bien s'adresse particulièrement à :
•Des primo-accédants cherchant à accéder à la propriété avec travaux sans compromis sur le charme.
•Des artisans ou bricoleurs souhaitant un projet sur mesure
•Des marchands de biens à la recherche d'une opportunité dans un secteur en mutation.

Prix de vente : 250 000 € FAI (plus enveloppe travaux à prévoir au moins 50 000€ et plus pour aménager en 4 ou 5 chambres)
Taxe foncière : 988€/ an

Disponible pour une visite, n'hésitez pas à me contacter pour en parler ! Visite uniquement sur présentation d'une simulation bancaire.
Les informations sur les risques auxquels ce bien est exposé sont disponibles sur le site Georisque : georisques. gouv. fr
Léonore Pillon - EI - est Agent Commercial mandataire en immobilier, immatriculé au Registre Spécial des Agents Commerciaux du Tribunal de Commerce de Lyon 2e Arrondissement sous le n°920346194.
Siège social du mandant : effiCity, 48 avenue de Villiers - 75017 PARIS - Société par Actions Simplifiée, société au capital de 132 373,05 euros, immatriculée au RCS Paris 497 617 746 et titulaire de la Carte professionnelle CPI 75[Coordonnées masquées]02 025 - CCI Paris IDF - Caisse de Garantie : GALIAN Assurances 89 rue de la Boétie 75008 Paris
Voir plus

Référence: 199577
Honoraires d'agence de 5.26% à la charge de l'acquéreur
Barème des honoraires
DPE
A
B
C
D
E
F
G
GES
A
B
C
D
E
F
G

Prêt immobilier

Vous souhaitez connaître votre capacité d’emprunt et trouver le meilleur crédit immobilier ?
Réaliser une simulation gratuite

Maison à BRON
Maison à BRON
Maison à BRON
Maison à BRON
Maison à BRON
Maison à BRON
Maison à BRON
Maison à BRON
Maison à BRON
Maison à BRON
Maison à BRON
Maison à BRON
Maison à BRON
Ce site est protégé par reCAPTCHA la Politique de confidentialité et les Conditions d’utilisation de Google s’appliquent.
Obtenir un prêt immobilier au meilleur taux ?

En poursuivant votre navigation sans modifier vos paramètres, vous acceptez l'utilisation de cookies susceptibles de réaliser des statistiques de visite. Cliquez ici pour plus d'informations