Bénéficiez des services de nos partenaires locaux soigneusement sélectionnés
pour vous accompagner dans votre parcours d'achat immobilier

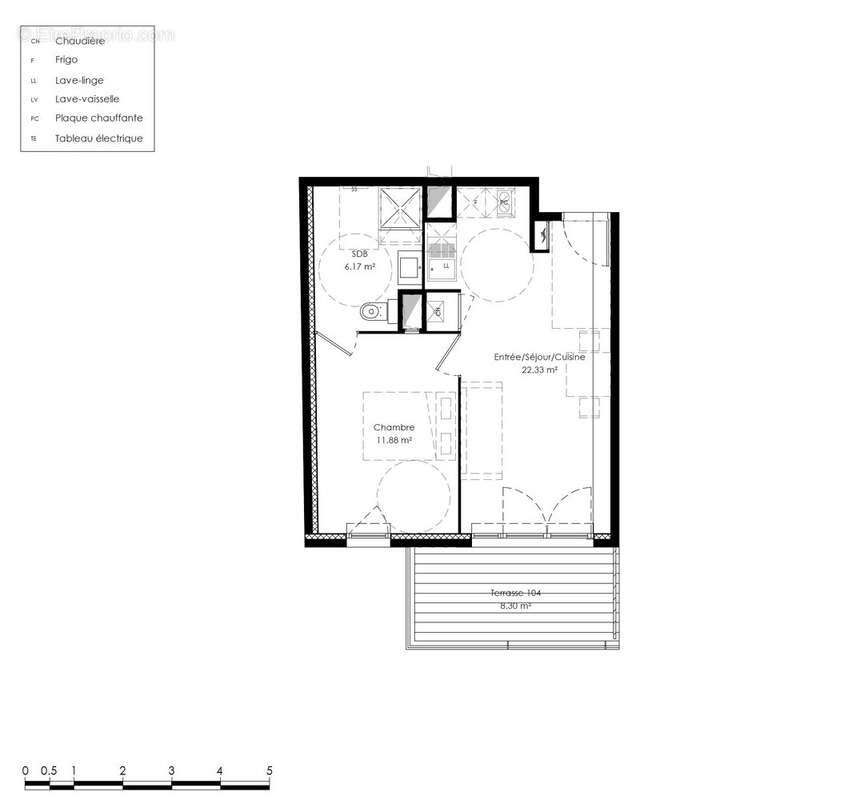
2 pièces de 40,38 m2 au 3ème et dernier étage

— Toulon 83000 —
166 536 €
40 m²
2 pièces
parkingbalcon/terrasseascenseur

Nos partenaires locaux
Disponible dernier T2

A 6 minutes du centre ville, de la gare de TOULON et du port.
Nombreuses écoles maternelles, collèges à moins de 7min à pied et nombreux commerces de centre ville à proximité.

Profitez du Prêt à Taux Zéro (PTZ) , d'une TVA réduite à 5,5 % et des taux bancaires favorables pour devenir propriétaire pour le prix d'un loyer.

Cet appartement neuf est livrable immédiatement donc l'investissement est rentable tout de suite.

Nous vous proposons un appartement de 2 pièces de 40,38 m2 au 3ème et dernier étage composé d’un séjour-cuisine donnant sur sa terrasse de 8,30 m2 exposée sud ouest, d’une chambre et d’une salle d’eau.
Prestations de qualité.
Parking possible en plus. Prix sur demande
Honoraires à charge vendeur. Barème sur le site de l'agence
Voir plus

Référence: 85995342
Barème des honoraires

Prêt immobilier

Vous souhaitez connaître votre capacité d’emprunt et trouver le meilleur crédit immobilier ?
Réaliser une simulation gratuite

Appartement à TOULON
Appartement à TOULON
Appartement à TOULON
Appartement à TOULON
Appartement à TOULON
Ce site est protégé par reCAPTCHA la Politique de confidentialité et les Conditions d’utilisation de Google s’appliquent.
Obtenir un prêt immobilier au meilleur taux ?

En poursuivant votre navigation sans modifier vos paramètres, vous acceptez l'utilisation de cookies susceptibles de réaliser des statistiques de visite. Cliquez ici pour plus d'informations